
Omschrijving
Zeer royale maisonnettewoning van maar liefst 118 m² woonoppervlak.
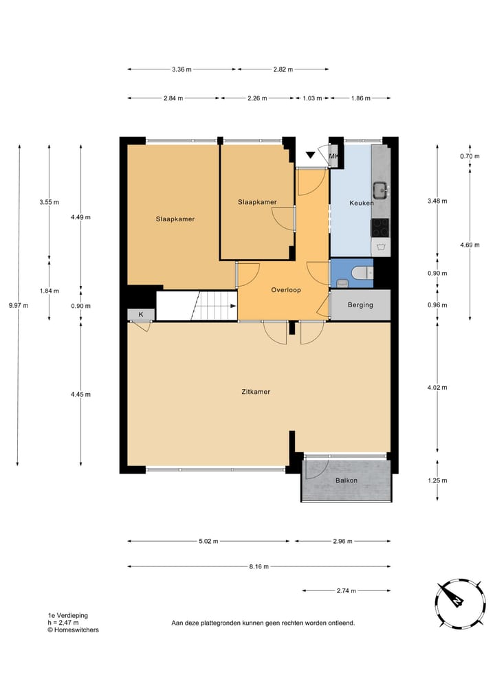
Licht, zonnig en royaal ingedeeld 5-kamerappartement met lichte living, keuken, 4 slaapkamers, badkamer en een heerlijk balkon op het zuidwesten.
Indeling:
Verzorgde, afgesloten hoofdentree met brievenbussen en bellentableau. Via de lift of trap bereikt u de 1e etage.
Entree van het appartement: hal, gang, berging, toilet met fontein. Lichte woon-/eetkamer met bergkast en aangrenzende toegang tot het balkon aan de voorzijde, gelegen op het zuidwesten. Eenvoudig keukenblok.
Twee slaapkamers aan de achterzijde.
Vaste trap naar de begane grond met twee slaapkamers aan de voorzijde.
Badkamer voorzien van douche en wastafel.
Aanvullende informatie:
Woonoppervlakte ca. 118 m²
Inhoud ca. 377 m³
Bouwjaar 1964
Maandelijkse VvE-bijdrage: € 339,30
Voorschot stookkosten: € 132,34 per maand
Energielabel C
Projectnotaris (Quadrant) en verkoopvoorwaarden van de verkoper van toepassing i.v.m. projectmatige verkoop
Vanwege het bouwjaar zijn de ouderdoms-, materialen-, niet-bewoners- en "as is, where is"-clausules van toepassing
Voor de indeling en maatvoering wordt verwezen naar de plattegronden
Gelegen op eigen grond
Oplevering in overleg
De woning is uitstekend gelegen tegenover winkelcentrum ‘Bogaard Stadscentrum’, waar u terechtkunt voor al uw dagelijkse boodschappen. Daarnaast is er een uitstekende openbaarvervoersverbinding op loopafstand (bus, tram en NS-station Rijswijk), en bent u binnen no-time bij de uitvalswegen (A4, A12, A13). Bovendien ligt het appartement op korte afstand van het gezellige oude centrum van Rijswijk.
"Bovenstaande informatie is door ons met de grootst mogelijke zorgvuldigheid samengesteld. Er wordt echter geen aansprakelijkheid aanvaard voor enige onvolledigheid, onjuistheid of anderszins, noch voor de gevolgen daarvan. Alle opgegeven maten en oppervlakten zijn indicatief. De woning is gemeten met gebruikmaking van de Meetinstructie, gebaseerd op de normen zoals vastgelegd in NEN 2580. De Meetinstructie is bedoeld om op een eenduidige manier een indicatie van de gebruiksoppervlakte te geven. Deze methode sluit verschillen in meetuitkomsten niet volledig uit, bijvoorbeeld door interpretatieverschillen, afrondingen of beperkingen bij het uitvoeren van de meting."
Kenmerken
Overdracht
- Laatste vraagprijs
- € 325.000 kosten koper
- Vraagprijs per m²
- € 2.754
- Status
- Verkocht
- Bijdrage VvE
- € 339,30 per maand
Bouw
- Soort appartement
- Maisonnette (service flat)
- Soort bouw
- Bestaande bouw
- Bouwjaar
- 1964
- Soort dak
- Plat dak
Oppervlakten en inhoud
- Gebruiksoppervlakten
- Wonen
- 118 m²
- Gebouwgebonden buitenruimte
- 3 m²
- Inhoud
- 377 m³
Indeling
- Aantal kamers
- 7 kamers (4 slaapkamers)
- Aantal badkamers
- 1 badkamer en 1 apart toilet
- Badkamervoorzieningen
- Douche en wastafel
- Aantal woonlagen
- 2 woonlagen
- Voorzieningen
- Lift, natuurlijke ventilatie, en TV kabel
- Gelegen op
- 1e woonlaag
Energie
- Energielabel
- Isolatie
- Dubbel glas
- Verwarming
- Blokverwarming
- Warm water
- Geiser
Kadastrale gegevens
- RIJSWIJK D 6796
- Kadastrale kaart
- Eigendomssituatie
- Volle eigendom
Buitenruimte
- Ligging
- In centrum en vrij uitzicht
- Balkon/dakterras
- Balkon aanwezig
Bergruimte
- Schuur/berging
- Inpandig
Parkeergelegenheid
- Soort parkeergelegenheid
- Betaald parkeren, openbaar parkeren en parkeervergunningen
VvE checklist
- Inschrijving KvK
- Ja
- Jaarlijkse vergadering
- Ja
- Periodieke bijdrage
- Ja (€ 339,30 per maand)
- Reservefonds aanwezig
- Ja
- Onderhoudsplan
- Ja
- Opstalverzekering
- Ja
Foto's 33
© 2001-2026 funda
































