Dit huis op Funda: https://www.funda.nl/detail/koop/rijswijk-zh/huis-geestbrugweg-89/43664366/

Omschrijving
Sfeervol 8-kamer herenhuis met aan de achterzijde uitgebouwde tweede verdieping, veel originele details en een zonnige, diepe achtertuin van maar liefst 15 meter diep met berging. Dit fijne familiehuis dat al ruim 50 jaar in het bezit is van de familie, biedt vele mogelijkheden om er een prachtig thuis van te maken.
Ideaal gesitueerd ten opzichte van het historische centrum van zowel Rijswijk als Voorburg, direct nabij uitvalswegen, scholen, sportfaciliteiten, parken, stations en openbaar vervoer.
Indeling:
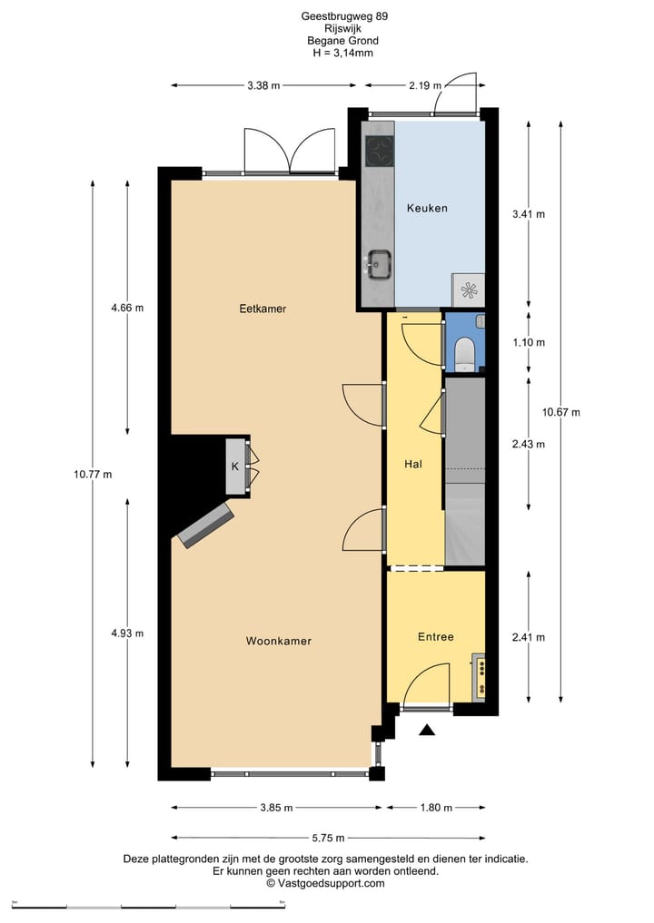
Ruime voortuin; entree; ruime vestibule met meterkast en garderobe; gang met diepe kast; toilet met fontein. Sfeervolle woon-/eetkamer gescheiden door een semi-suite, kasten, gashaarden en openslaande deuren naar de diepe achtertuin. Gesloten keuken met granito aanrechtblad en diverse inbouwapparatuur en toegang tot de achtertuin. De zonnige en vrij gelegen achtertuin van 15 meter diep maakt de begane grond compleet.
Eerste verdieping:
Overloop met tweede toilet. Aan de voorzijde bevindt zich een ruime slaapkamer met vaste kast en wastafel en een naastgelegen kabinet dat goed dienst kan doen als werk- of studeerkamer. Aan de achterzijde bevindt zich ook een ruime slaapkamer met toegang tot het balkon. De naastgelegen badkamer heeft een bad, wastafel, badgeiser en een wasmachineaansluiting.
Tweede verdieping:
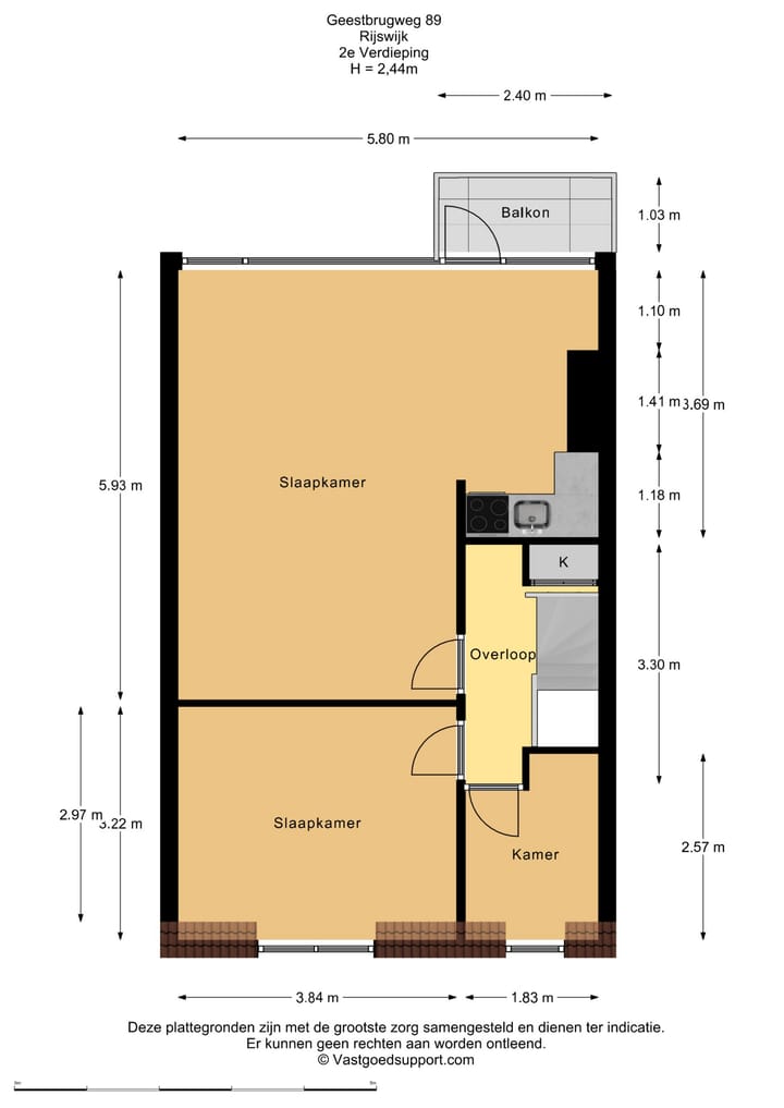
Overloop met kast en toegang tot een grote slaapkamer aan de voorzijde en een naastgelegen kabinet met Sanibroyeur toilet dat ook goed dienst kan doen als werk- en/of studeerkamer. Aan de achterzijde ligt een zeer grote L-vormige slaapkamer waar ook een eenvoudige kitchenette zich bevindt. Deze slaapkamer heeft een uitbouw over de volledige achterzijde en toegang tot een balkon.
Bijzonderheden;
- Bouwjaar 1926
- Energielabel F
- Gelegen op 181 m² eigen grond
- Verwarming d.m.v. gaskachels en warmwater d.m.v. keukenboiler en badgeiser
- Elektriciteit met verdeelkast met 6 groepen
- Deels voorzien van dubbel glas, glas-in-lood en enkel glas
- De woonoppervlakte is ca. 170 m². De inhoud is ca. 621 m³
- Zie de plattegronden voor de indeling en complete maatvoering
- Boedelnotaris Notariaat Van Sprundel
- Oplevering in overleg, kan snel
- Verkoopvoorwaarden Janson Makelaardij van toepassing
Heeft u interesse in deze woning? Overweeg dan om uw eigen NVM-aankoopmakelaar in te schakelen. Uw NVM-aankoopmakelaar komt op voor uw belang en bespaart u tijd, geld en zorgen. Adressen van collega NVM-aankoopmakelaars vindt u op Funda.
Kenmerken
Overdracht
- Oorspronkelijke vraagprijs
- € 698.000 kosten koper
- Laatste vraagprijs
- € 639.000 kosten koper
- Vraagprijs per m²
- € 3.759
- Status
- Verkocht
Bouw
- Soort woonhuis
- Herenhuis, tussenwoning
- Soort bouw
- Bestaande bouw
- Bouwjaar
- 1926
- Soort dak
- Samengesteld dak bedekt met bitumineuze dakbedekking en pannen
Oppervlakten en inhoud
- Gebruiksoppervlakten
- Wonen
- 170 m²
- Gebouwgebonden buitenruimte
- 12 m²
- Externe bergruimte
- 4 m²
- Perceel
- 181 m²
- Inhoud
- 621 m³
Indeling
- Aantal kamers
- 8 kamers (4 slaapkamers)
- Aantal badkamers
- 1 badkamer en 2 aparte toiletten
- Badkamervoorzieningen
- Ligbad en wastafel
- Aantal woonlagen
- 3 woonlagen
- Voorzieningen
- Natuurlijke ventilatie en TV kabel
Energie
- Energielabel
- F
- Isolatie
- Gedeeltelijk dubbel glas
- Verwarming
- Cv-ketel en gaskachels
- Warm water
- Geiser
- Cv-ketel
- Gas gestookt, eigendom
Kadastrale gegevens
- RIJSWIJK A 2212
- Kadastrale kaart
- Oppervlakte
- 181 m²
- Eigendomssituatie
- Volle eigendom
Buitenruimte
- Ligging
- Aan drukke weg en in woonwijk
- Tuin
- Achtertuin en voortuin
- Achtertuin
- 90 m² (15,00 meter diep en 6,00 meter breed)
- Ligging tuin
- Gelegen op het noordwesten
- Balkon/dakterras
- Balkon aanwezig
Bergruimte
- Schuur/berging
- Vrijstaande houten berging
Parkeergelegenheid
- Soort parkeergelegenheid
- Betaald parkeren, openbaar parkeren en parkeervergunningen
Foto's 77
© 2001-2025 funda












































































