
Omschrijving
Gelegen in Rijswijk Buiten, een heel royaal woonhuis.
De woning is reeds vanuit de bouw op de begane grond 2,40m uitgebouwd en op de eerste etage 1,20m uitgebouwd.
Met de eigen warmtepomp, de 15 zonnepanelen, het 200L warm water buffervat en een energielabel A+++ is deze woning Nul-op-de-meter.
Rijswijk Buiten is een leuke en groene wijk. Een basisschool, kinderopvang en Medisch Centrum zijn op loopafstand gelegen. Het centrum van Delft en winkelcentrum "In de Boogaard" voor de dagelijkse boodschappen liggen op slechts 10 minuten fietsafstand. Het groene en gezellige Wilhelminapark ligt vlakbij. Buslijn 51 vindt u aan de Beatrixlaan, via dezelfde laan bent u zo op één van de uitvalswegen A4 of A13 (dus snel in Rotterdam, Amsterdam of Utrecht).
Indeling:
Begane grond:
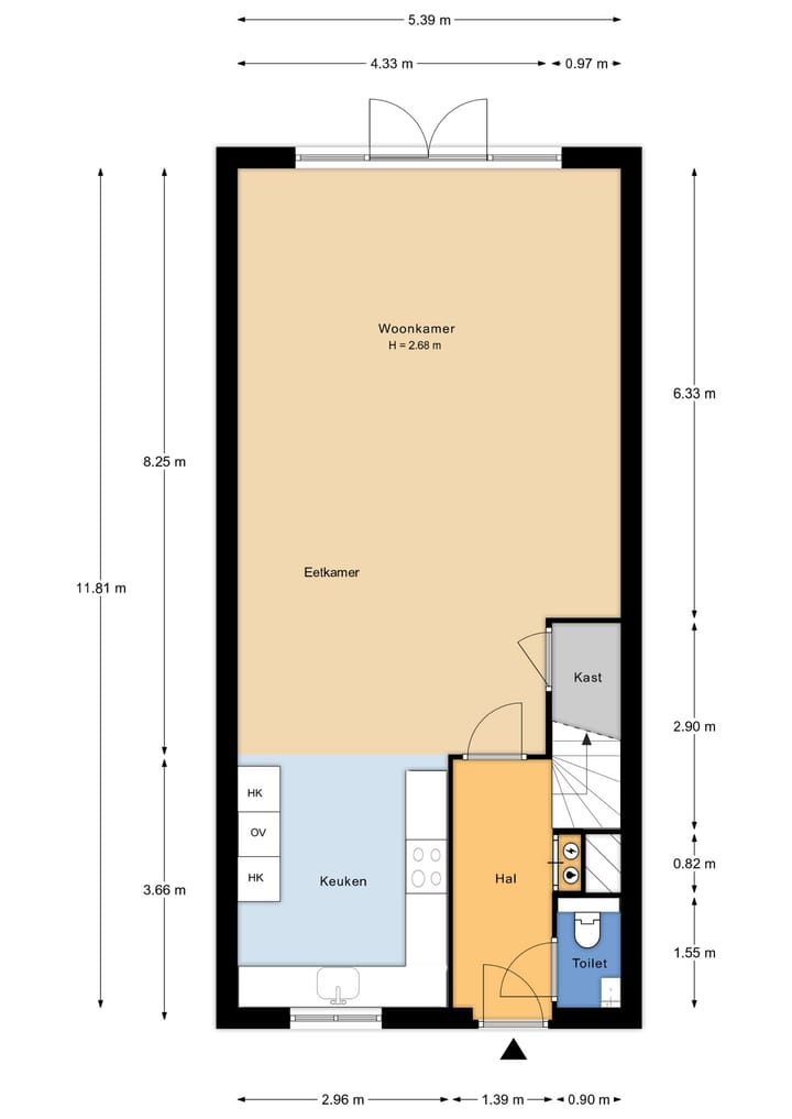
Entree, hal, toilet met fontein, meterkast (8 groepen + aardschakelaars). Trapopgang. Royale uitgebouwde woonkamer 8.25 x 5.39 met openslaande deuren naar de tuin.
Luxe, strakke keuken aan de voorzijde van de woning 3.66 x 2.06 in hoekopstelling, voorzien van inductiekookplaat, afzuigkap en vaatwasser. Een tweede blok met daarin koelkast, vriezer, oven en magnetron.
De gehele verdieping is voorzien van fraaie laminaatvloer.
De tuin is 11m diep, gelegen op het zuidwesten, fraai aangelegd en zeer onderhoudsvriendelijk. De houten schuur biedt ruimte voor diverse fietsen en is makkelijk bereikbaar via de achterom.
Eerste etage:
Overloop. Ruime luxe badkamer 2.49 x 2.88 voorzien van dubbele wastafel met meubel en spiegelkasten, ligbad, tweede toilet en inloopdouche.
Drie uitstekende slaapkamers, resp. 4.56 x 2.43; 5.96 x 3.10; 4.86 x 2.22 groot.
De gehele verdieping is voorzien van een fraaie laminaatvloer.
Tweede etage:
Overloop: op deze verdieping zijn ook drie ruime slaapkamers gerealiseerd, resp. 4.16 x 3.03; 5.17 x 3.03 en 2.95 x 2.28 groot. Tevens bevindt zich hier de technische ruimte waar de opstelling van de WtW installatie, het buffervat van 200L, de warmtepomp, de omvormer voor de PV panelen en de droger + wasmachine zich bevinden.
De gehele verdieping is voorzien van een fraaie laminaatvloer.
Deze royale woning is een ideaal woonhuis voor een groot gezin.
KENMERKEN:
* Bouwjaar 2017
* Zes slaapkamer
* 15 zonnepanelen in eigendom met een energieopbrengst van 3000 kWh in 2023
* Warmtepomp in eigendom
* Energielabel A+++
* Door de gehele woning zijn alle wanden voorzien van renovlies en de plafonds zijn strak afgewerkt met spackspuitwerk.
* Netto gemeten gebruiksoppervlak 171m2 (conform NVM Meetinstructie)
* Perceelgrootte 133m2
* Buitenschilderwerk in 2024 uitgevoerd
* Oplevering in overleg
Ondanks dat deze informatie met zorg is samengesteld, kunnen er geen rechten aan worden ontleend.
Heeft u interesse in deze woning? Schakel dan uw eigen NVM Aankoopmakelaar in.
Uw NVM aankoopmakelaar komt op voor uw belangen.
Adressen van NVM Aankoopmakelaars vindt u op funda.nl
Kenmerken
Overdracht
- Laatste vraagprijs
- € 775.000 kosten koper
- Vraagprijs per m²
- € 4.532
- Status
- Verkocht
Bouw
- Soort woonhuis
- Eengezinswoning, tussenwoning
- Soort bouw
- Bestaande bouw
- Bouwjaar
- 2017
- Soort dak
- Plat dak
Oppervlakten en inhoud
- Gebruiksoppervlakten
- Wonen
- 171 m²
- Externe bergruimte
- 5 m²
- Perceel
- 133 m²
- Inhoud
- 600 m³
Indeling
- Aantal kamers
- 7 kamers (6 slaapkamers)
- Aantal badkamers
- 1 badkamer en 1 apart toilet
- Badkamervoorzieningen
- Inloopdouche, ligbad, toilet, en wastafelmeubel
- Aantal woonlagen
- 3 woonlagen
- Voorzieningen
- Balansventilatie, glasvezelkabel, en zonnepanelen
Energie
- Energielabel
- A+++
- Isolatie
- Volledig geïsoleerd
- Verwarming
- Warmte terugwininstallatie en warmtepomp
- Warm water
- Elektrische boiler
Kadastrale gegevens
- RIJSWIJK H 1329
- Kadastrale kaart
- Oppervlakte
- 133 m²
- Eigendomssituatie
- Volle eigendom
Buitenruimte
- Ligging
- In woonwijk en vrij uitzicht
- Tuin
- Achtertuin
- Achtertuin
- 63 m² (11,00 meter diep en 5,74 meter breed)
- Ligging tuin
- Gelegen op het zuidwesten bereikbaar via achterom
Bergruimte
- Schuur/berging
- Vrijstaande houten berging
Parkeergelegenheid
- Soort parkeergelegenheid
- Openbaar parkeren
Foto's 49
© 2001-2025 funda
















































