Dit huis op Funda: https://www.funda.nl/detail/koop/rockanje/huis-duindijk-7/43211919/

BlikvangerUniek wonen grenzend aan het Quackjeswater!
Omschrijving
Uniek wonen aan het Quackjeswater, midden in natuur en polder bij Rockanje
Aan de Duindijk in Rockanje staat deze vrij gelegen woning op een terp, op een werkelijk uitzonderlijke locatie direct grenzend aan het Quackjeswater. Hier woon je midden in een beschermd natuurgebied, omgeven door polders, water en groen, met een uitzicht dat elk seizoen verandert. Een plek waar rust, ruimte en natuur samenkomen en waar het buitenleven een vanzelfsprekend onderdeel is van het dagelijks wonen.
Het perceel van circa 3.665 m² bestaat uit twee percelen en is ingericht als een botanische tuin met bijzondere beplanting, fruit- en appelbomen. Door de tuin kronkelt een rel, een overstort van het Quackjeswater, die open dient te blijven en bijdraagt aan het natuurlijke karakter van het terrein. (En rel is een traditionele, oud Nederlandse benaming voor een klein waterloopje of een geul). Volop zon wordt hier afgewisseld met schaduw van volwassen bomen. Vogels, vlinders en eekhoorns maken onlosmakelijk deel uit van deze omgeving. Dit is wonen voor wie zich thuis voelt in de natuur.
De woning is in 1999 verbouwd en biedt een comfortabele en lichte leefomgeving. Op de begane grond is vrijwel de gehele verdieping voorzien van plavuizen. In de woonkamer zorgt een houthaard voor extra sfeer en warmte. Aan de voorzijde bevindt zich een overkapt terras met vrij uitzicht over het landschap. Verder zijn er op het perceel een grote schuur met garagedeur en een kippen- en hoenderhok met drie afdelingen aanwezig. Parkeren kan ruim op eigen erf.
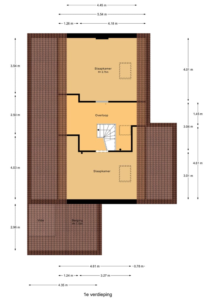
INDELING:
Begane grond:
Entree/hal met toegang tot de verschillende vertrekken.
Vanuit de hal zijn de woonkamer, keuken, badkamer, eetkamer, slaapkamer en het klompenhok bereikbaar.
Daarnaast is er buitenom een aparte toegang naar de wasruimte met de opstelplaats van de wasmachine en de cv ketel.
De woonkamer is licht en sfeervol, aan drie zijden ramen, met zicht op het omliggende groen en voorzien van een houthaard.
De begane grond is vrijwel volledig afgewerkt met een plavuizenvloer, de slaapkamer op deze verdieping is voorzien van tapijt.
De badkamer is voorzien van een ligbad, een douchecabine, een wastafel en plavuizen met vloerverwarming.
Via de hal is de vaste open eiken trap naar de verdieping bereikbaar.
Verdieping:
Overloop met toegang tot de twee slaapkamers. Beide slaapkamers en de overloop zijn voorzien van een dakvenster.
Bijzonderheden:
- Project notaris Moerland te Brielle.
Wij behartigen de belangen van de verkopende partij.
Neem uw eigen NVM aankoop makelaar mee!
Alle verstrekte informatie moet beschouwd worden als uitnodiging tot het doen van een bod of om in onderhandeling te treden.
Er kunnen geen rechten worden ontleend aan deze woninginformatie.
Kenmerken
Overdracht
- Aangeboden sinds
- Aanvaarding
- In overleg
- Vraagprijs
- € 895.000 kosten koper
- Vraagprijs per m²
- € 6.533
- Status
- Beschikbaar
Bouw
- Soort woonhuis
- Eengezinswoning, vrijstaande woning
- Soort bouw
- Bestaande bouw
- Bouwjaar
- 1970
- Soort dak
- Zadeldak bedekt met pannen
Oppervlakten en inhoud
- Gebruiksoppervlakten
- Wonen
- 137 m²
- Overige inpandige ruimte
- 5 m²
- Gebouwgebonden buitenruimte
- 14 m²
- Externe bergruimte
- 78 m²
- Perceel
- 3.665 m²
- Inhoud
- 520 m³
Indeling
- Aantal kamers
- 6 kamers (3 slaapkamers)
- Aantal badkamers
- 1 badkamer en 1 apart toilet
- Badkamervoorzieningen
- Douche, ligbad, vloerverwarming, en wastafel
- Aantal woonlagen
- 2 woonlagen
Energie
- Energielabel
- Verwarming
- Cv-ketel en houtkachel
- Warm water
- Cv-ketel
- Cv-ketel
- Gas gestookt combiketel, eigendom
Kadastrale gegevens
- WESTVOORNE A 461
- Kadastrale kaart
- Oppervlakte
- 2.665 m²
- Eigendomssituatie
- Volle eigendom
- WESTVOORNE A 401
- Kadastrale kaart
- Oppervlakte
- 1.000 m²
- Eigendomssituatie
- Volle eigendom
Buitenruimte
- Ligging
- Aan bosrand, buiten bebouwde kom, in bosrijke omgeving, landelijk gelegen en vrij uitzicht
- Tuin
- Tuin rondom
Parkeergelegenheid
- Soort parkeergelegenheid
- Op eigen terrein
Foto's 51
© 2001-2026 funda


















































