Dit huis op Funda: https://www.funda.nl/detail/koop/roden/huis-vlasveen-16/43908568/

Vlasveen 169301 PT RodenIndustrieterrein Roden
€ 335.000 v.o.n.
Omschrijving
NIEUWBOUW 8 Royale Bedrijfswoningen in het Groen – Vlasveen, Haarveld
Wonen en werken combineren op een unieke groene locatie in Drenthe? Aan de rand van bedrijventerrein Haarveld, omringd door boswallen en rust, verrijst een kleinschalig en duurzaam project met 8 royale bedrijfswoningen. Perfect voor ondernemers die een balans zoeken tussen bedrijf en privé in een natuurlijke omgeving.
Wat kun je verwachten?
Moderne bedrijfswoning inclusief keuken, badkamer en sanitair alsmede verwarmingsinstallatie.
•Circa 100 m² woonruimte + 100 m² bedrijfsruimte
•3 privéparkeerplaatsen
•Grote raampartijen, veel lichtinval
Systeemplafond inbegrepen
•Inclusief keuken, badkamer, tegelwerk, sanitair en verwarmingsinstallatie.
Royale woonkamer met balkon van ca. 15 m²
2 slaapkamers + badkamerruimte.
Oplevering: De bouw is gestart oplevering 2026
BTW van toepassing
Locatie: Rust en bereikbaarheid
Hoewel gelegen op bedrijventerrein Haarveld, heeft het project dankzij omliggend groen een landelijke, rustige uitstraling. De locatie is gunstig nabij het centrum, uitvalswegen en natuurgebieden. Een unieke kans om wonen en werken te combineren, zónder concessies te doen aan comfort of bereikbaarheid.
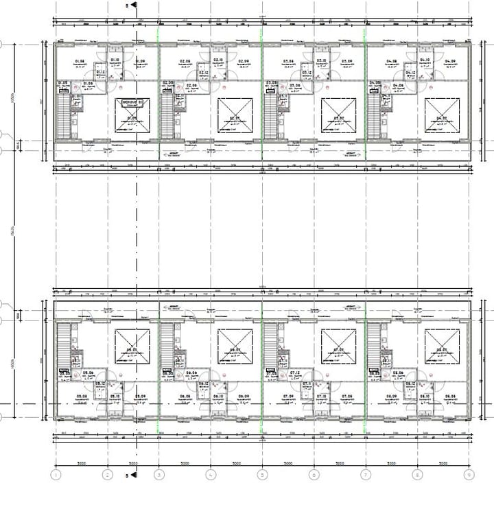
Indeling per woning
Begane grond:
Bedrijfshal met overheaddeur (verhoogd beslag), entree/hal, toiletruimte, technische ruimte, berging, achteruitgang.
Eerste verdieping:
Overloop, separaat toilet, lichte woonkamer (ca. 41 m²) met open keukenopstelling en toegang tot een ruim balkon (ca. 15 m²), 2 slaapkamers (ca. 14 m² en 11 m²), badkamerruimte.
Bouw en oplevering
De woningen worden gebouwd volgens een energiezuinige, moderne bouwwijze en compleet casco opgeleverd – met systeemplafond, met keuken, badkamer en sanitair.
Interesse?
Wil je meer weten of je alvast aanmelden als geïnteresseerde?
Neem contact met ons op via e-mail. We vertellen je graag meer over dit unieke project, de beschikbare units en de mogelijkheden.
Kenmerken
Overdracht
- Oorspronkelijke vraagprijs
- € 325.000 vrij op naam
- Aangeboden sinds
- Aanvaarding
- In overleg
- Vraagprijs
- € 335.000 vrij op naam
- Vraagprijs per m²
- € 3.350
- Status
- Beschikbaar
Bouw
- Soort woonhuis
- Eengezinswoning, geschakelde woning (bedrijfs- of dienstwoning)
- Soort bouw
- Nieuwbouw
- Bouwjaar
- 2025
- Soort dak
- Plat dak
Oppervlakten en inhoud
- Gebruiksoppervlakten
- Wonen
- 100 m²
- Overige inpandige ruimte
- 100 m²
- Gebouwgebonden buitenruimte
- 15 m²
- Perceel
- 150 m²
- Inhoud
- 550 m³
Indeling
- Aantal kamers
- 3 kamers (2 slaapkamers)
- Aantal woonlagen
- 1 woonlaag
Energie
- Energielabel
- A++++
Kadastrale gegevens
- RODEN I 1111
- Kadastrale kaart
- Oppervlakte
- 150 m²
- Eigendomssituatie
- Volle eigendom
Buitenruimte
- Ligging
- Bedrijventerrein en beschutte ligging
Garage
- Soort garage
- Inpandig
- Capaciteit
- 1 auto
Parkeergelegenheid
- Soort parkeergelegenheid
- Op eigen terrein
Foto's 7
© 2001-2025 funda






