
Noordhoek 72371 XH RoelofarendsveenRoelofarendsveen
€ 675.000 k.k.
Omschrijving
Let op: € 675.000,- is een bieden vanaf prijs voor het appartement.
1) Appartement: begane grond, 3, 4, 5 en 6.
2) Waterbak: verdiepingen 7, 8 en 9.
De vraagprijs voor het geheel (appartement + waterbak) is € 885.000,- k.k.
Wonen op een unieke locatie met een schitterend 360º uitzicht in de oude Veense Watertoren!
Het meest iconische pand van Roelofarendsveen: de Watertoren, beter bekend als de Tulp. In 2001 is deze unieke toren omgetoverd tot een industriële woning, waarbij de authentieke details van de vroegere drinkwatervoorziening prachtig behouden zijn gebleven. Met een woonoppervlakte van maar liefst 157 m² (269 m² voor appartement + waterbak), verdeeld over vijf woonlagen, biedt deze bijzondere woning volop ruimte en charme. Twee verdiepingen worden momenteel gebruikt als B&B, wat extra mogelijkheden creëert. Wonen in de Watertoren betekent ultieme vrijheid: geen directe buren, geen geluidsoverlast en een panoramisch uitzicht om van te dromen. Dit is wonen zoals je het zelden tegenkomt! Als officieel karakteristiek pand straalt dit gebouw historie en karakter uit. Bovendien is de locatie perfect als uitvalsbasis voor watersport, fiets- en wandeltochten, een bezoek aan de Keukenhof of een snelle verbinding met Schiphol. Wat wil je nog meer?
Zie jij jezelf al helemaal wonen in de karakteristieke Watertoren? Neem dan snel contact met ons op voor het inplannen van een bezichtiging.
Indeling
Begane grond (appartement)
De entree van het appartement ligt op de begane grond en is volledig privé, net als de lift die exclusief voor de woning is. In de entree bevinden zich een intercom, de brievenbus, de meterkast en een luik dat toegang biedt tot de kruipruimte. Via de lift bereik je eenvoudig de woonetages.
Derde verdieping (appartement)
Op de derde verdieping vind je een sfeervolle B&B-slaapkamer met een eigen badkamer en suite en een split unit airco (2024). Deze ruime badkamer, uitgevoerd in crèmekleurige tegels, is een echte eyecatcher en voelt als een balzaal! Je vindt er een ligbad, douche, designradiator, wastafel met bijpassend meubel en een toilet dat discreet in een aparte hoek is geplaatst. Vanuit de slaapkamer is er ook toegang tot een handige, verborgen berging, perfect voor het opbergen van kleding of beddengoed. Goed om te weten: deze verdieping is de eerste stop van de lift.
Vierde verdieping (appartement)
Op deze verdieping bevindt zich nog een charmante B&B-slaapkamer met een badkamer en suite. In deze ruimte is slim gebruik gemaakt van de nisjes in de afgeschuinde hoeken van de kamer, waar een wastafel en een compact bureautje zijn geïntegreerd. De badkamer, gelegen in een voormalige inloopkast, biedt alles wat je nodig hebt: een wastafel, toilet en een inloopdouche. Daarnaast vind je op deze verdieping nog een kleinere slaapkamer, die momenteel wordt gebruikt als opslagruimte voor de B&B. Op deze verdieping vind je ook een compacte stookruimte met de CV-ketel (Nefit-Bosch 2022) en de groepenkast.
Vijfde verdieping (appartement)
De vijfde etage kunnen we de woonverdieping of wel de receptie van de B&B noemen - hier bevindt zich de ruime doch knusse woonkamer. Ook hier is een toilet gesitueerd. Dit ruime toilet is van de woonkamer gescheiden middels een kleine tussenhal, waarin het fonteintje is gesitueerd. Goed om te weten: de gehele verdieping is voorzien van vloerverwarming. Bovendien is dit de tweede liftstop.
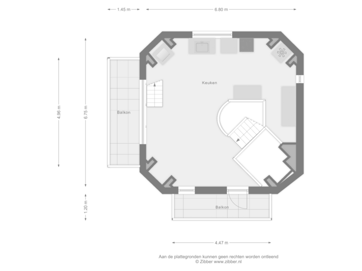
Zesde verdieping & balkon (appartement)
Op deze verdieping van de woning vind je de sfeervolle en modulaire woonkeuken (Bulthaup), een prachtige combinatie van moderne gemakken en originele details van de oude watertoren. De keuken is compleet uitgerust met een grote wasbak, elektrisch fornuis/oven met inductiekookplaat, koel-vriescombinatie, vaatwasser, magnetron en afzuigkap. Midden in de keuken springt de oude waterpomp direct in het oog, een industrieel pronkstuk met meters, kraantjes en leidingen die de ruimte een stoere uitstraling geven. Goed om te weten: op deze verdieping is een split-unit airco (2023) aanwezig, die zowel de woonkamer (5e verdieping) als de keuken kan koelen en verwarmen. Aan de eettafel geniet je van een weids uitzicht over Roelofarendsveen, dat zich onder je uitstrekt. Via driedelige harmonica deuren kom je op het balkon, dat naadloos bij de woonkeuken kan worden betrokken. Vanaf hier heb je een adembenemend panoramisch uitzicht, met links het glinsterende water van het Braassemermeer.
Zevende verdieping (appartement + waterbak)
Vanuit de keuken bereik je via een trapje de zevende verdieping, waar je binnenkomt in de voormalige watertank. Hier is de master bedroom gevestigd, een ruimte die zowel de charme van de industriële watertankmuren behoudt als moderne, hippe details zoals houten wandpanelen. Deze verdieping herbergt naast de slaapkamer ook een apart toilet. Het toilet is zwevend en voorzien van een stijlvol fonteintje. Het plafond is verfraaid met kleine, gekleurde LED-lampjes, waardoor het toilet een luxe en speelse uitstraling krijgt. Je kunt rondom de slaapkamer lopen, wat een unieke ervaring biedt door de tank heen.
Deze verdieping is uitgerust met vloerverwarming en balansventilatie met WTW. Er is een split unit airco (2025) die de hele ruimte kan koelen/verwarmen. Daarnaast staat de wasmachine opgesteld in de tussenruimte.
Achtste verdieping (appartement + waterbak)
De achtste verdieping is een unieke en verrassende ruimte, die fungeert als een doorloopbadkamer en kleedruimte. Deze bijzondere plek maakt deel uit van de voormalige watertank en ademt karakter. Je vindt er een stijlvol meubel met twee wastafels en een ruime inloopdouche, gescheiden door een klein muurtje dat bekleed is met tegels in een visgraatpatroon. Aan de andere kant van de verdieping is er nog extra ruimte, ideaal om kastjes of kledingrekken te plaatsen. De originele muren van de oude watertoren geven de ruimte een stoere, industriële uitstraling.
Negende verdieping (appartement + waterbak)
De negende en tevens bovenste verdieping van de watertoren is een multifunctionele ruimte. Of je nu droomt van een plek voor retraite, yoga of een creatieve studio, in deze ruimte kan het allemaal. De verdieping is momenteel niet geïsoleerd, maar wel verwarmd en voorzien van een heater. Je kunt de ruimte volledig afsluiten met een luik bij de trap. De vier charmante raampjes bieden een adembenemend uitzicht over Roelofarendsveen en de wijde omgeving.
Berging (appartement)
Bij het appartement hoort een praktische berging van circa 6 m², voorzien van water- en elektra-aansluitingen. Hier staan de wasmachine en droger opgesteld, samen met de waterontharder (Amysoft), hydrofoor en vriezer. Daarnaast is er voldoende ruimte om je fiets en andere spullen op te bergen. Een ideale plek om alles netjes en geordend te houden!
Historie
In 1931 maakte de gemeenschap van Roelofarendsveen ruimte voor een opvallende nieuwe dorpsbewoner: de Veense Watertoren, ontworpen door architect ir. Chr. K. Visser en/of Hendrik Sangster. Met zijn 31,5 meter hoogte domineerde hij trots het dorpscentrum en was hij in de wijde omtrek te zien. Maar de watertoren gaf meer dan hij nam. Hij bood 150 m³ wateropslag, wat een einde maakte aan het drinken van water uit putten en sloten. Niet alleen de inwoners, maar ook de tulpen profiteerden: het waterleidingsysteem gaf een enorme impuls aan de bloementeelt die Roelofarendsveen op de kaart zette. Sinds 1986 wordt deze bijzondere band tussen toren en tulp gesymboliseerd door de vier rode tulpen op de toren, hét icoon van Roelofarendsveen. In 1987 verloor de watertoren zijn oorspronkelijke functie, maar de toren kreeg jaren later een nieuw leven dankzij de creativiteit van de Veenders. In 2001 werd de toren volledig gerenoveerd en vandaag de dag straalt hij nog steeds als een karakteristieke landmark. Een stukje Veense trots, stevig geworteld in de geschiedenis en het hart van het dorp.
Enthousiast geworden? Leuk! Bel, mail of app ons om een kijkafspraak in te plannen.
Ligging & omgeving
Het appartement c.q. de Watertoren ligt middenin Roelofarendsveen. Roelofarendsveen biedt samen met Oude Wetering vele voorzieningen op het gebied van onderwijs, gezondheidszorg, sportaccommodaties, horeca en winkelmogelijkheden. Uitgebreider shoppen? Dan liggen Leiderdorp, Leiden en Hoofddorp bijvoorbeeld op ca. 15 minuten rijden. Gemeente Kaag & Braassem is vooral bekend vanwege haar waterrijke ligging tussen de Westeinderplassen, Braassemermeer en de Kagerplassen. De aanwezigheid van deze plassen maakt de omgeving tot een ideaal watersportcentrum waar je kunt zeilen, zwemmen, roeien, surfen, kanoën etc.
Bereikbaarheid
Het appartement is zeer centraal in de Randstad gelegen en beschikt in de nabijheid over uitstekende ontsluitingen op de rijkswegen A4 en A44. Via deze wegen zijn de steden Amsterdam en Den Haag, maar ook de kustplaatsen binnen 30 minuten bereikbaar. In 10 á 15 minuten sta je op luchthaven Schiphol. De bushalte is gelegen langs de Alkemadelaan en geeft goede verbindingen richting Leiden en Schiphol.
Bijzonderheden
- Bouwjaar 1931, in 2001 verbouwd tot woontoren en de afgelopen 3 jaar gerenoveerd naar huidige staat
- Woonoppervlakte ca. 157 m² (of 269 m² met waterbak/appartementsrecht)
- Inhoud ca. 572 m³ (of 893 m³ met waterbak)
- 3 slaapkamers
- Groot balkon op de zesde verdieping
- (Kosteloos) openbaar parkeren voor de deur
- Karakteristiek pand
- Vrijstaand wonen op grote hoogte, met een schitterend en panoramisch uitzicht
- Veel van de technische installaties zijn de afgelopen 3 jaar vernieuwd
- Inkomsten B&B circa € 60.000,- per jaar (en inkomsten telecom €12.000,- op jaarbasis - waterbak)
- B&B (inboedel) is over te nemen
- Alle verdiepingen vanaf verdieping 3 zijn intern met trap te bereiken
- Eigen lift, VVE kosten circa € 65,- per maand
- Voorzien van aluminium en kunststof kozijnen met dubbel glas
- Voorzien van deels vloerverwarming
- Voorzien van 8 zonnepanelen
- Energielabel C
Aanvaarding in overleg.
Kenmerken
Overdracht
- Aangeboden sinds
- Aanvaarding
- In overleg
- Vraagprijs
- € 675.000 kosten koper
- Vraagprijs per m²
- € 4.299
- Status
- Beschikbaar
- Bijdrage VvE
- € 65,00 per maand
Bouw
- Soort appartement
- Maisonnette (appartement)
- Soort bouw
- Bestaande bouw
- Bouwjaar
- 1931
- Specifiek
- Beschermd stads- of dorpsgezicht, dubbele bewoning mogelijk, gedeeltelijk gestoffeerd, monument en monumentaal pand
- Soort dak
- Plat dak bedekt met bitumineuze dakbedekking
Oppervlakten en inhoud
- Gebruiksoppervlakten
- Wonen
- 157 m²
- Gebouwgebonden buitenruimte
- 6 m²
- Externe bergruimte
- 7 m²
- Inhoud
- 572 m³
Indeling
- Aantal kamers
- 6 kamers (3 slaapkamers)
- Aantal badkamers
- 2 badkamers en 1 apart toilet
- Badkamervoorzieningen
- Inloopdouche, ligbad, 2 toiletten, 2 wastafels, wastafelmeubel, en douche
- Aantal woonlagen
- 5 woonlagen
- Voorzieningen
- Airconditioning, lift, mechanische ventilatie, TV kabel, en zonnepanelen
Energie
- Energielabel
- C
- Isolatie
- Dubbel glas, HR-glas en muurisolatie
- Verwarming
- Cv-ketel, gehele vloerverwarming en warmte terugwininstallatie
- Warm water
- Cv-ketel en elektrische boiler (huur)
- Cv-ketel
- Nefit (gas gestookt combiketel, eigendom)
Kadastrale gegevens
- ALKEMADE B 5112
- Kadastrale kaart
- Eigendomssituatie
- Volle eigendom
Buitenruimte
- Ligging
- In centrum en vrij uitzicht
- Balkon/dakterras
- Balkon aanwezig
Bergruimte
- Schuur/berging
- Vrijstaande stenen berging
- Voorzieningen
- Elektra en stromend water
Parkeergelegenheid
- Soort parkeergelegenheid
- Openbaar parkeren
VvE checklist
- Inschrijving KvK
- Ja
- Jaarlijkse vergadering
- Ja
- Periodieke bijdrage
- Ja (€ 65,00 per maand)
- Reservefonds aanwezig
- Ja
- Onderhoudsplan
- Ja
- Opstalverzekering
- Ja
Foto's 81
Plattegronden 5
© 2001-2025 funda





















































































