Dit huis op Funda: https://www.funda.nl/detail/koop/roermond/huis-buizerdhorst-18/43745119/

Omschrijving
In de kindvriendelijke woonwijk "Hoogvonderen" ligt deze leuke tussenwoning met overdekt terras, stenen buitenberging en geheel omsloten achtertuin welke zelfstandig achterom bereikbaar is.
INDELING
Begane grond
de hal met meterkast (slimme meter, 8 groepen en 5x aardlekschakelaar) biedt toegang tot de toiletruimte en de woonkamer.
De woonkamer met trappenkast is daglicht-rijk te noemen door het doorzon-karakter.
De keuken staat in directe verbinding met de woonkamer en is uitgerust met een keukeninstallatie welke in een hoek is opgesteld. De aanwezige inbouwapparatuur zijn een afzuiging, een inductie kookplaat, een koelkast en een vaatwasser.
Vanuit de keuken is de achtergelegen tuin bereikbaar door de aanwezige buitendeur.
De gehele begane grond is afgewerkt met een tegelvloer.
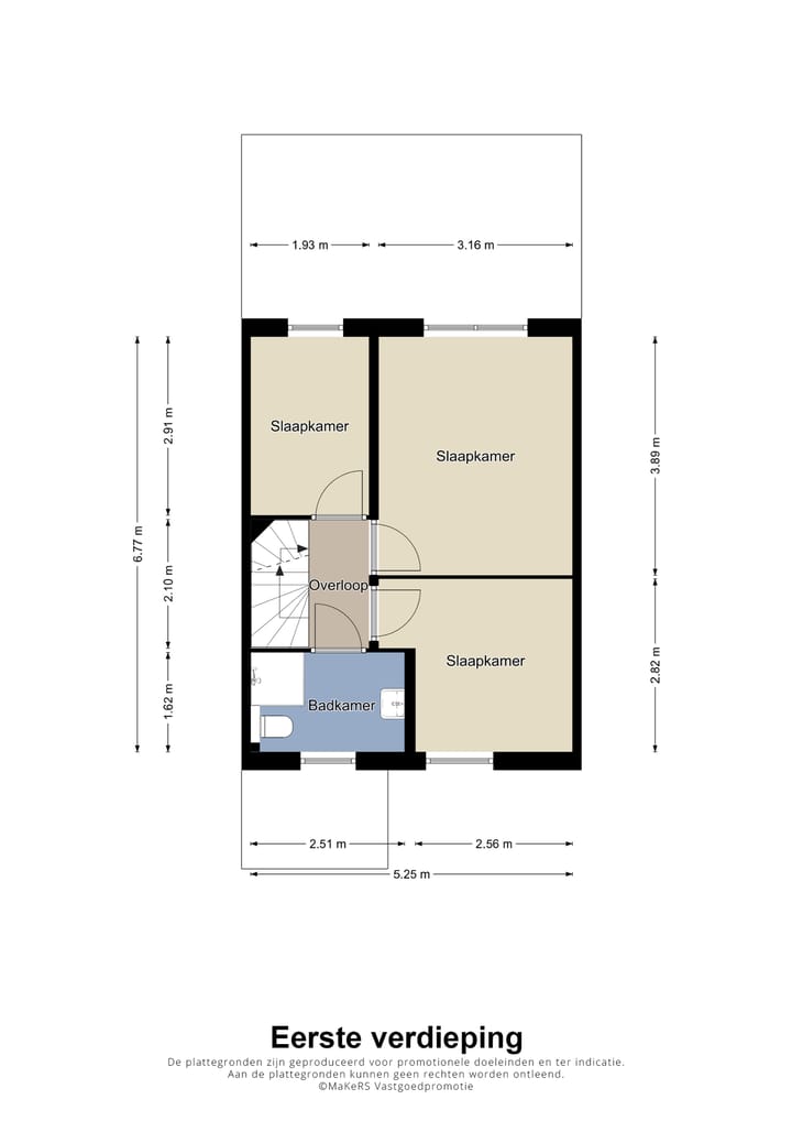
Eerste verdieping
de overloop biedt toegang tot 4 slaapkamers en een badkamer, respectievelijk groot:
– slaapkamer 1: 2.82 x 2.56m, gelegen aan de voorzijde van de woning
– slaapkamer 2: 3.89 x 3.16m, gelegen aan de achterzijde van de woning
– slaapkamer 3: 2.91 x 1.93m, gelegen aan de achterzijde van de woning
– geheel betegelde badkamer (1.62 x 2.51m) welke is ingedeeld met een douchecabine, een toilet, een vaste wastafel verwerkt in een badmeubel en een design radiator.
De gehele eerste verdieping is (m.u.v. de badkamer) afgewerkt met een laminaatvloer.
Zolder
middels vaste trap bereikbare zolderverdieping waar de Cv-installatie en de aansluitpunten voor het witgoed zijn terug te vinden. Het is prima mogelijk om de zolderverdieping verder in te richten als 4de slaapkamer.
Tuin
voor- en achtergelegen geheel omsloten tuin met overdekt terras, stenen buitenberging en zelfstandige achterom. De achtertuin is gesitueerd op het zuid-westen.
BIJZONDERHEDEN
– het pand is gelegen op een kindvriendelijke locatie
– het pand is gelegen op een perceel met een oppervlakte van 131m2
– het pand is voorzien van betonnen verdiepingsvloeren
– het pand is uitgerust met kunststof kozijnen met HR++ beglazing
– het pand is deels uitgerust met rolluiken
– het pand is gelegen nabij diverse voorzieningen
– Cv-installatie, merk Remeha, bj. 2022 (gehuurd)
INTERESSE? MAAK DAN EEN AFSPRAAK MET WAGEMANS WONEN VOOR EEN VRIJBLIJVENDE BEZICHTIGING OF EEN FINANCIEEL ADVIES OP MAAT.
– Uitdrukkelijk wordt gesteld dat een koopovereenkomst met betrekking tot deze onroerende zaak eerst dan tot stand is gekomen nadat alle partijen de koopovereenkomst hebben getekend, de zogenaamde “schriftelijkheidsvereiste” is in dezen van toepassing.
– De waarborgsom/bankgarantie bedraagt 10% van de koopsom en is een uitdrukkelijk onderdeel van de koopovereenkomst. De koper dient deze binnen 3 dagen ná het vervallen van de eventuele ontbindende voorwaarden bij de transporterende notaris te deponeren.
– Koper is gerechtigd voor zijn rekening een bouwkundige keuring te (laten) verrichten, dan wel adviseurs te raadplegen teneinde een goed inzicht te verkrijgen over de staat en het gebruik van deze onroerende zaak.
– Voor het optimaal behartigen van diens belangen adviseert Wagemans Wonen geïnteresseerden en kopers om een professionele aankoopmakelaar in te schakelen.
– De Meetinstructie is gebaseerd op de NEN2580. De Meetinstructie is bedoeld om een meer eenduidige manier van meten toe te passen voor het geven van een indicatie van de gebruiksoppervlakte. De Meetinstructie sluit verschillen in meetuitkomsten niet volledig uit, door bijvoorbeeld interpretatieverschillen, afrondingen of beperkingen bij het uitvoeren van de meting
Kenmerken
Overdracht
- Laatste vraagprijs
- € 250.000 kosten koper
- Vraagprijs per m²
- € 3.378
- Status
- Verkocht
Bouw
- Soort woonhuis
- Eengezinswoning, tussenwoning
- Soort bouw
- Bestaande bouw
- Bouwjaar
- 1983
- Soort dak
- Zadeldak bedekt met pannen
Oppervlakten en inhoud
- Gebruiksoppervlakten
- Wonen
- 74 m²
- Overige inpandige ruimte
- 14 m²
- Gebouwgebonden buitenruimte
- 15 m²
- Externe bergruimte
- 5 m²
- Perceel
- 131 m²
- Inhoud
- 315 m³
Indeling
- Aantal kamers
- 5 kamers (3 slaapkamers)
- Aantal badkamers
- 1 badkamer en 1 apart toilet
- Badkamervoorzieningen
- Douche, toilet, wastafel, en wastafelmeubel
- Aantal woonlagen
- 2 woonlagen en een zolder
- Voorzieningen
- Mechanische ventilatie, rolluiken, en TV kabel
Energie
- Energielabel
- C
- Isolatie
- HR-glas, muurisolatie en vloerisolatie
- Verwarming
- Cv-ketel
- Warm water
- Cv-ketel
- Cv-ketel
- Remeha (gas gestookt combiketel uit 2022, huur)
Kadastrale gegevens
- ROERMOND H 847
- Kadastrale kaart
- Oppervlakte
- 131 m²
- Eigendomssituatie
- Volle eigendom
Buitenruimte
- Ligging
- Aan rustige weg en in woonwijk
- Tuin
- Achtertuin en voortuin
- Achtertuin
- 50 m² (10,00 meter diep en 5,50 meter breed)
- Ligging tuin
- Gelegen op het zuidwesten bereikbaar via achterom
Bergruimte
- Schuur/berging
- Vrijstaande stenen berging
- Isolatie
- Geen isolatie
Parkeergelegenheid
- Soort parkeergelegenheid
- Openbaar parkeren
Foto's 30
© 2001-2025 funda





























