Dit huis op Funda: https://www.funda.nl/detail/koop/roermond/huis-daalakkerweg/43922802/

Omschrijving
Prachtige nieuwbouwwoning te koop in Leeuwen, Roermond – Daalakkerweg
Goed nieuws: het bestemmingsplan is aangepast, de vergunning is binnen én de bouw start op korte termijn!
En nog leuker: u kunt de woning nu nog naar uw eigen wensen laten aanpassen (meerprijs).
Bent u op zoek naar een moderne woning in een rustige, groene omgeving, maar toch dichtbij het bruisende centrum van Roermond? Dan is dit uw kans!
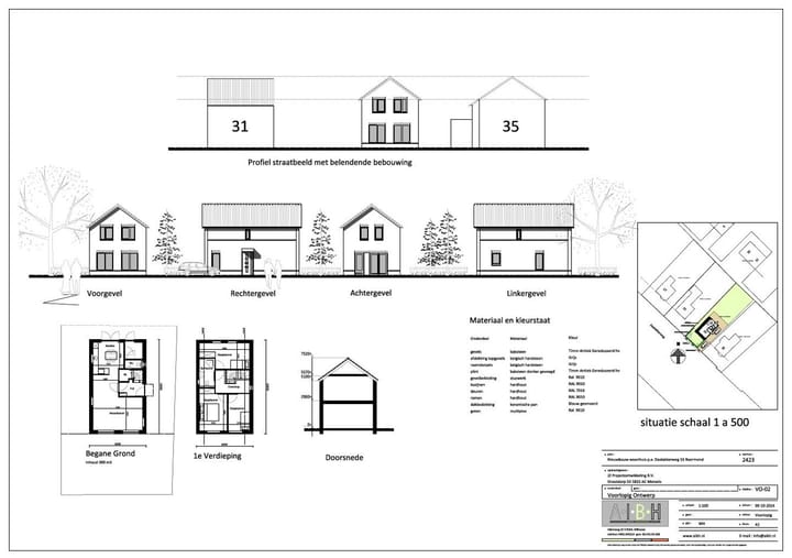
Indeling (huidig ontwerp) DIT IS NOG AAN TE PASSEN.
Begane grond
-Entree met meterkast, handige gangkast en trap naar de eerste verdieping
-Royale woonkamer met open keuken (nog zonder inrichting, dus helemaal naar uw smaak te realiseren)
-Toegang tot de achtertuin én het achterportaal
-Separate toiletruimte
Eerste verdieping
-Overloop met toegang tot drie comfortabele slaapkamers
-Moderne badkamer met inloopdouche, wastafel en toilet
Tuin
-Ruime tuin op het noorden – perfect voor zowel zonnige plekjes als fijne schaduwhoekjes
En wist u dat er, tegen een meerprijs, zelfs een carport (6 x 3 m) aan de woning kan worden toegevoegd?
Locatie
Deze woning wordt gebouwd in het groene en rustige Leeuwen, een geliefde wijk op korte afstand van het centrum van Roermond. Hier woont u landelijk, maar profiteert u van alle voorzieningen, scholen, winkels en uitvalswegen in de directe omgeving.
Zekerheid met Woningborg
De woning wordt gebouwd onder WONINGBORG-garantie, wat u extra zekerheid geeft tijdens en na de bouw.
Bent u nieuwsgierig geworden?
Vul uw gegevens in en ontvang de bouwtekeningen en technische omschrijving.
Heeft u vragen? Stuur ze gerust door naar de makelaar – we helpen u graag verder!
Kenmerken
Overdracht
- Aangeboden sinds
- Aanvaarding
- In overleg
- Vraagprijs
- € 482.500 vrij op naam
- Vraagprijs per m²
- € 4.386
- Status
- Verkocht onder voorbehoud
Bouw
- Bouwjaar
- Na 2020
- Soort woonhuis
- Eengezinswoning, vrijstaande woning
- Soort bouw
- Nieuwbouw
- Soort dak
- Zadeldak bedekt met pannen
- Keurmerken
- Woningborg Garantiecertificaat
Oppervlakten en inhoud
- Gebruiksoppervlakten
- Wonen
- 110 m²
- Externe bergruimte
- 5 m²
- Perceel
- 478 m²
- Inhoud
- 384 m³
Indeling
- Aantal kamers
- 4 kamers (3 slaapkamers)
- Aantal badkamers
- 1 badkamer
- Badkamervoorzieningen
- Douche, toilet, en wastafel
- Aantal woonlagen
- 2 woonlagen
- Voorzieningen
- Balansventilatie en zonnepanelen
Energie
- Energielabel
- Isolatie
- Dakisolatie, driedubbel glas, dubbel glas, eco-bouw, gedeeltelijk dubbel glas, geen spouw, grotendeels dubbelglas, HR-glas, kierdichting, muurisolatie, vloerisolatie, volledig geïsoleerd en voorzetramen
- Verwarming
- Warmtepomp
- Warm water
- Elektrische boiler
Kadastrale gegevens
- ROERMOND G 2045
- Kadastrale kaart
- Oppervlakte
- 478 m²
Buitenruimte
- Ligging
- In woonwijk
- Tuin
- Achtertuin, voortuin en zijtuin
- Achtertuin
- 180 m² (15,00 meter diep en 12,00 meter breed)
- Ligging tuin
- Gelegen op het noorden bereikbaar via achterom
Bergruimte
- Schuur/berging
- Vrijstaande houten berging
Parkeergelegenheid
- Soort parkeergelegenheid
- Op eigen terrein
Foto's 9
© 2001-2026 funda








