
Omschrijving
Deze INSTAPKLARE TWEEKAPPER met GARAGE en PRAKTIJKRUIMTE staat te schitteren aan de Burgemeester Gubbelstraat 15 in Roggel. Ben je op zoek naar een leuke woning met LUXE KEUKEN – sfeervolle woonruimte – praktijkruimte aan huis - verzorgde BADKAMER - drie slaapkamers - PRIVACY BIEDENDE achtertuin en eigen OPRIT. Hier heb je hem gevonden…
Direct bij binnenkomst ademt de woning sfeer, gezelligheid en allure. Hier is het modern gastentoilet onder de trap – hal, garderobe met meterkast – strakke stucwerk wanden met fraai lichtplan – eigentijdse laminaatvloer met V-groep en de LUXE KEUKEN met Boretti fornuis voor de keuken prins/of prinses. Mede door de grote raampartijen heerlijk licht en vanuit de keuken en eetkamer is er een mooi tuincontact waar je heerlijk kunt genieten van optimale privacy en dat midden in de gezellige dorpskern. Mede door de speelse indeling in Z-vorm is er een fijne zit-/ en eethoek gerealiseerd waarbij het tussenportaal straks is afgewerkt met de trappenhal naar boven. Op de verdieping treft men thans een MASTERBEDROOM en eigen INLOOPKLEDING/DRESSROOM met verrassende opbergruimte en ENSUITE BADKAMER. De badkamer voorziet in een 2e toilet, ruime douche, vaste wastafel en designer radiator. Zowel de verdieping als de trap zijn afgewerkt met grindvloeren en de strak gestukadoorde wanden lopen door tot in het plafond. Nieuwe bewoners kunnen ervoor kiezen om de hal te behangen of schilderen naar eigen wens, daar de huidige bewoner er nog niet aan uit was wat het mooiste zou zijn. Deze trappenhal loopt door naar een tweede verdieping waar een fantastische derde slaapkamer is gesitueerd alsook de ruimte voor de cv-opstelling. Uniek aan dit object is de trappenhal die na afwerking echt een EYE CATCHER zal zijn van dit verrassende huis.
We zijn er nog niet want buiten is treft men een heerlijk zonneterras – waterpartij en ARTISTIEKE WAND om bijvoorbeeld een beeld te positioneren. Aan de rechterzijde ligt nog een royale garage (ca. 19m²) en EIGEN PRAKTIJKRUIMTE met deels vloerverwarming, wateraansluiting en mooie pui. Qua opbergruimte geen gebrek want boven de garage is nog een handige vliering aanwezig. Zowel de voor-/ als achtertuin zijn verzorgd aangelegd en er aan de voorzijde een eigen oprit voor twee personen auto’s.
Deze woning beschikt over het energielabel B waardoor aantrekkelijke lage stookkosten. Als je nu op zoek bent naar een ideale STARTERS- of GEZINSWONING heb je hem eindelijk gevonden. Enthousiast na het zien van onze fotoreportage?! Neem dan even contact op met ons kantoor en we ontmoeten je graag snel in het begin van het nieuwe jaar…
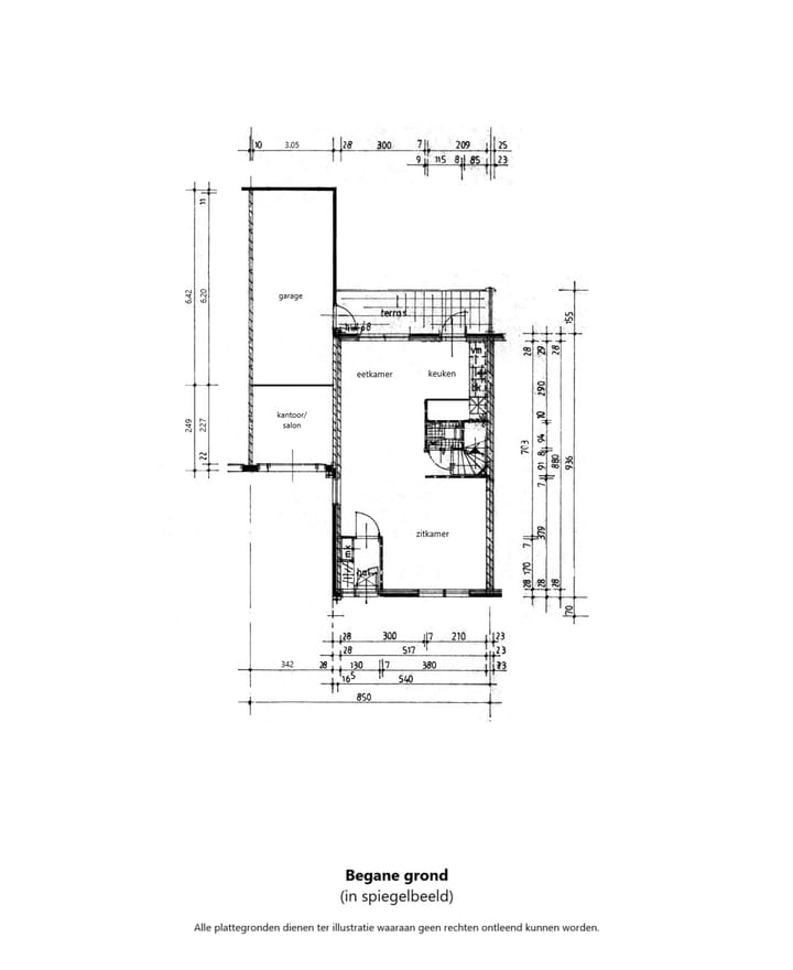
Indeling
Begane grond:
Entree/hal – garderobe - meterkast - gastentoilet onder de trap in fraai tussenportaal – Z-vormige zit-/ en eetkamer – luxe keuken met diverse inbouwapparatuur – garage met vliering en eigen praktijkruimte.
Eerste verdieping
Overloop met daaraan gelegen een tweetal slaapkamers en een verzorgde badkamer. De mogelijkheid met een minimale investering zijn er om er drie te realiseren.
Tweede verdieping
Middels fraaie trappenhal is de tweede verdieping bereikbaar met fenomenale derde slaap-/of hobbykamer met aparte cv-ruimte.
Tuin
Verzorgd aangelegde voor-/ en achtertuin met waterpartij, zonneterras, artistieke wand en geheel omsloten waardoor optimale privacy gewaarborgd. De garage met vliering is ideaal voor de hobbyist of doe-het-zelver en aan de voorzijde is nog een eigen praktijkruimte aanwezig. Op de oprit kun je twee personenauto’s parkeren en rondom is voldoende openbare parkeergelegenheid.
Bijzonderheden
- Definitief energielabel B, geldig tot 23-12-2034 en registratienummer 314202640;
- De woning is v.v. hardhouten kozijnen met isolerende beglazing en boven v.v. screens;
- Luxe keuken met o.a. Boretti fornuis en antraciet gespoten RVS afzuigkap, koelkast, combi magnetron en fraai granieten werkblad;
- Gehele benedenverdieping is afgewerkt met strakke stucwerkwanden en plafonds, hoogwaardige laminaatvloer met V-groef, strak lichtplan (zonder kabels) en veel grote raampartijen met twee tuindeuren;
- Via het tussenportaal is het verrassend ruime en moderne toilet onder de trap bereikbaar;
- Trappenhal is geheel naar eigen smaak af te werken, of verven, behangen of met de moderne latjes, waarna de woning AF is;
- Bij de entree is een toegankelijke kruipruimte aanwezig;
- Op de verdieping is thans een masterlijke bedroom met dressroom en ensuite badkamer, waarbij de mogelijkheid bestaat met minimale middelen om hier weer drie slaapkamers van te maken (zoals op de oorspronkelijke plattegrond te zien!);
- De verdiepingen zijn afgewerkt met een zandkleurige grindvloer zonder dorpels (m.u.v. de badkamer);
- Achter de schuifkastenwand is nog een handige opbergmogelijkheid onder het schuine gedeelte te bereiken, ideaal voor vakantiekoffer en kerstversiering e.d.;
- Middels vaste trap is de keurig afgewerkt zolderverdieping bereikbaar die thans als tweede woonkamer is ingericht maar ook alvast extra slaapkamer gebruikt kan worden;
- Op de zolder zit een gashaard welke om te bouwen is naar een bio-ethanolhaard;
- Boeiboorden afgewerkt met zink en dikke natuurstenen dorpels en lateikappen;
- HR cv-installatie, merk Nefit, type Trendline HR en deze betreft eigendom van 2018;
- De ondernemer onder ons zou perfect een salon – kantoor – werkplek aan huis kunnen realiseren waarbij een mooie pui met loopdeur is vanwaar de inpandige garage met vliering is te bereiken. Dit kantoor heeft een 2,5m² vloerverwarming en eigen wastafel;
- Privacy biedende achtertuin geheel omsloten met eigen ‘zwart’ houten schutting op eigen terrein en een fraaie palmboom, waterpartij (pomp gaat mee!), graszode en twee terrassen om de zomeravonden te verlengen;
- De oprit aan de voorzijde biedt plek voor twee personenauto’s en verder is er voldoende openbare parkeergelegenheid;
- Woning is optimaal geïsoleerd met o.a. muur, vloer en dakisolatie, hardhouten kozijnen met isolerend glas en boven v.v. screens, waardoor aantrekkelijk lage stookkosten;
- Ideale starters-/gezinswoning bij uitstek waar je met minimale inspanningen in kunt trekken;
- Dit alles staat aan een rustige straat achter de Spar nabij de gezellige dorpskern van Roggel te wachten op zijn nieuwe bewoners;
- Alle maten, plattegronden zijn indicatief, waaraan verder geen rechten ontleend kunnen worden;
- Ter bescherming van de belangen van zowel koper als verkoper, wordt uitdrukkelijk gesteld dat een koopovereenkomst met betrekking tot deze onroerende zaak eerst dan tot stand komt nadat koper en verkoper de koopovereenkomst hebben getekend (“schriftelijkheidsvereiste”);
- De termijn die wordt opgenomen voor eventuele (overeengekomen) ontbindende voorwaarden
(financiering) is in de regel 6 weken na het sluiten van mondelinge overeenkomst;
- De waarborgsom/bankgarantie is 10% van de koopsom. De koper dient deze 2 weken ná het vervallen van de ontbindende voorwaarden bij de desbetreffende notaris te deponeren;
- Koper is te allen tijde gerechtigd voor eigen rekening een bouwkundige keuring te (laten) verrichten dan wel andere adviseurs te raadplegen teneinde een goed inzicht te verkrijgen over de staat van onderhoud.
Kenmerken
Overdracht
- Laatste vraagprijs
- € 325.000 kosten koper
- Vraagprijs per m²
- € 3.218
- Status
- Verkocht
Bouw
- Soort woonhuis
- Eengezinswoning, 2-onder-1-kapwoning
- Soort bouw
- Bestaande bouw
- Bouwjaar
- 1988
- Soort dak
- Zadeldak bedekt met pannen
- Keurmerken
- Energie Prestatie Advies
Oppervlakten en inhoud
- Gebruiksoppervlakten
- Wonen
- 101 m²
- Overige inpandige ruimte
- 8 m²
- Externe bergruimte
- 19 m²
- Perceel
- 185 m²
- Inhoud
- 375 m³
Indeling
- Aantal kamers
- 4 kamers (3 slaapkamers)
- Aantal badkamers
- 1 badkamer en 1 apart toilet
- Badkamervoorzieningen
- Douche, toilet, en wastafel
- Aantal woonlagen
- 3 woonlagen
- Voorzieningen
- Dakraam en TV kabel
Energie
- Energielabel
- B
- Isolatie
- Dakisolatie, grotendeels dubbelglas, muurisolatie en vloerisolatie
- Verwarming
- Cv-ketel
- Warm water
- Cv-ketel
- Cv-ketel
- Nefit HR (gas gestookt combiketel uit 2018, eigendom)
Kadastrale gegevens
- LEUDAL G 2328
- Kadastrale kaart
- Oppervlakte
- 185 m²
- Eigendomssituatie
- Volle eigendom
Garage
- Soort garage
- Aangebouwde stenen garage
- Capaciteit
- 1 auto
- Voorzieningen
- Elektra, verwarming en stromend water
Parkeergelegenheid
- Soort parkeergelegenheid
- Op eigen terrein en openbaar parkeren
Bedrijfsruimte
- Praktijkruimte
- 8 m², inpandig
Foto's 32
© 2001-2025 funda































