
Omschrijving
STARTERS OPGELET !
Gunstig en rustig gelegen, ruime eengezinswoning met stenen berging, voortuin, achtertuin op het zuiden met achteruitgang.
Ligging tegenover ruim opgezet openbaar groen, er is een groot grasveld met kinderspeeltoestellen.
De woning is op de begane grond voorzien van kunststof kozijnen en nagenoeg volledig voorzien van elektrische rolluiken.
Er zijn 12 zonnepanelen op de zuidzijde van het dak geplaatst.
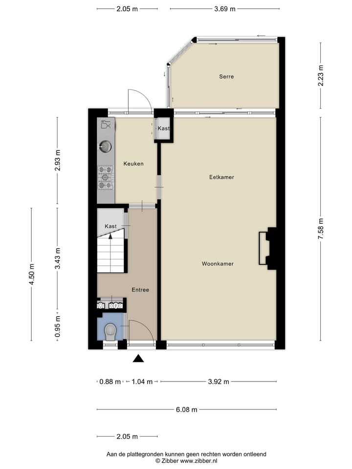
BEGANE GROND
Hal/entree met toilet, meterkast en trapopgang met daaronder een kelderkast.
Doorzon woonkamer met tuindeuren naar de serre en elektrische haard.
De woonkamer is voorzien van airco.
De serre is in 2024 geplaatst.
Tevens is er aan de achterzijde een elektrisch zonnescherm.
Dichte keuken met nette keukeninrichting voorzien van een gaskookplaat, afzuigkap en vaatwasser.
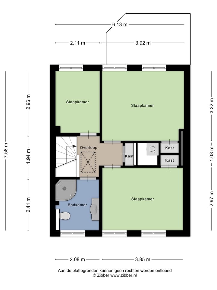
EERSTE VERDIEPING
Drie slaapkamers, wasmachine ruimte en badkamer.
Badkamer met douche, hangcloset en vaste wastafelmeubel.
TWEEDE VERDIEPING
Bereikbaar middels vlizotrap.
Voorzolder met cv-hr-combiketel (2012).
Zolderruimte met kunststof velux dakraam.
Kenmerken
Overdracht
- Laatste vraagprijs
- € 289.500 kosten koper
- Vraagprijs per m²
- € 3.147
- Status
- Verkocht
Bouw
- Soort woonhuis
- Eengezinswoning, tussenwoning
- Soort bouw
- Bestaande bouw
- Bouwjaar
- 1959
- Soort dak
- Zadeldak bedekt met pannen
Oppervlakten en inhoud
- Gebruiksoppervlakten
- Wonen
- 92 m²
- Overige inpandige ruimte
- 18 m²
- Gebouwgebonden buitenruimte
- 8 m²
- Externe bergruimte
- 11 m²
- Perceel
- 161 m²
- Inhoud
- 392 m³
Indeling
- Aantal kamers
- 4 kamers (3 slaapkamers)
- Aantal woonlagen
- 3 woonlagen
- Voorzieningen
- Zonnepanelen
Energie
- Energielabel
- C
- Isolatie
- Dakisolatie en dubbel glas
- Verwarming
- Cv-ketel
- Warm water
- Cv-ketel
- Cv-ketel
- Gas gestookt combiketel
Kadastrale gegevens
- ROOSENDAAL EN NISPEN K 3948
- Kadastrale kaart
- Oppervlakte
- 161 m²
- Eigendomssituatie
- Volle eigendom
Buitenruimte
- Ligging
- In woonwijk
- Tuin
- Achtertuin en voortuin
Bergruimte
- Schuur/berging
- Vrijstaande stenen berging
Parkeergelegenheid
- Soort parkeergelegenheid
- Openbaar parkeren
Foto's 30
© 2001-2025 funda





























