Dit huis op Funda: https://www.funda.nl/detail/koop/roosteren/huis-lage-bongerd-16/43972795/

Omschrijving
Welkom aan de Lage Bongerd 16 in Roosteren, een verrassend ruime twee-onder-een-kapwoning die met zorg is onderhouden en klaar is voor een nieuwe bewoner. Zodra je arriveert, zie je direct dat deze woning perfect in orde is: de voortuin is in 2023 opnieuw aangelegd en het geheel straalt rust en netheid uit. Je parkeert gemakkelijk op eigen terrein, naast de woning – de elektrische garagedeur opent zich met één druk op de knop.
Lage Bongerd 16 is gelegen in een rustige en groene woonwijk in het hart van Roosteren, een charmant dorp in Midden-Limburg, vlakbij de Belgische grens. De omgeving kenmerkt zich door een vriendelijke dorpssfeer, met veel ruimte, rust en natuur in de directe omgeving.
Voor dagelijkse voorzieningen ben je binnen enkele minuten in het nabijgelegen Susteren of Echt, waar je terecht kunt voor supermarkten, scholen, sportverenigingen en station. De oprit naar de A2 en A73 ligt op korte afstand, waardoor steden als Maastricht, Roermond en zelfs Eindhoven uitstekend bereikbaar zijn.
Kenmerken:
Bouwjaar 1973
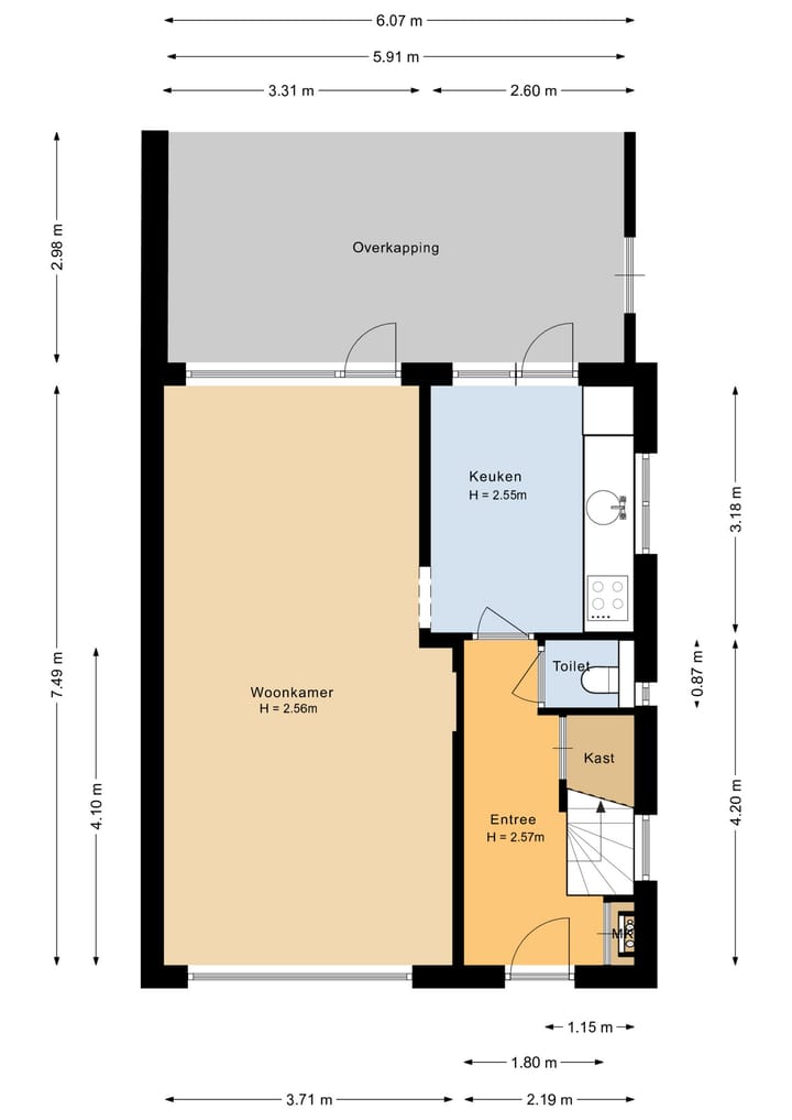
Woonoppervlakte: 91m²
Perceel: 236m²
Bouwjaar: 1973
Energielabel: B
Voorzien van vloer-, muur-(polystyreen) en dakisolatie
Grotendeels voorzien van kunststof kozijnen met HR++ dubbele beglazing
Indeling:
Begane grond:
Bij binnenkomst in de woning word je verwelkomd door een nette hal die voorzien is van een toilet, een praktische bergkast en de trapopgang naar de eerste verdieping. Vanuit de hal loop je door naar de lichte en ruime woonkamer, waar grote ramen aan zowel de voor- als achterzijde zorgen voor een prettige hoeveelheid daglicht.
De keuken bevindt zich aan de achterzijde van de woning. Deze is functioneel ingericht en voorzien van inbouwapparatuur zoals een kookplaat, oven, koelkast en wasbak. Hoewel de stijl enigszins gedateerd is, is de keuken goed onderhouden en biedt deze een solide basis voor eventuele modernisering.
Eerste verdieping:
Op de eerste verdieping bevinden zich twee ruime slaapkamers, beide keurig afgewerkt en voorzien van grote ramen. De badkamer is praktisch en fris, met een douche, wastafel en tweede toilet. Op de overloop vind je daarnaast twee extra bergruimtes, waarvan een is voorzien van een aansluiting voor was apparatuur.
Zolder:
Een vlizotrap brengt je naar de zolderverdieping, waar je nog een grote open ruimte aantreft. Deze zolder is al netjes afgetimmerd en biedt mogelijkheden voor een werkplek of een speelkamer. Dankzij het dakraam is ook hier voldoende licht aanwezig.
Tuin:
De voor- en achtertuin van deze woning zijn in 2023 volledig vernieuwd en keurig onderhouden. De voortuin biedt ruimte voor parkeren op eigen terrein, terwijl de achtertuin onderhoudsvriendelijk is aangelegd met moderne bestrating en veel privacy. Onder de overkapping uit 2014 geniet je het hele jaar door van het buitenleven. De vrijstaande garage met elektrische deur en recent nieuw voegwerk maakt het plaatje compleet.
Algemeen:
- Nieuwe cv-ketel: 2024
- Nieuwe meterkast: 2021
- 11 zonnepanelen: Geplaatst in 2021 (12 jaar garantie)
- Grotendeels voorzien van kunststof kozijnen met HR++ dubbele beglazing
- Verzorgd aangelegde voor- en achtertuin (2023)
- Elektrische garagedeur
- Nieuw voegwerk garage
- Overkapping achterzijde geplaatst in 2014
Ben je op zoek naar een lichte, energiezuinige woning op een rustige locatie met verrassend veel ruimte en comfort? Dan is Lage Bongerd 16 precies wat je zoekt. Neem vandaag nog contact met ons op voor een bezichtiging – deze kans wil je niet missen!
---
Deze informatie is door ons met de nodige zorgvuldigheid samengesteld. Onzerzijds wordt echter geen enkele aansprakelijkheid aanvaard voor enige onvolledigheid, onjuistheid of anderszins, dan wel de gevolgen daarvan. Alle opgegeven maten en oppervlakten zijn indicatief.
Toelichtingsclausule NEN2580: De Meetinstructie is gebaseerd op de NEN2580. De Meetinstructie is bedoeld om een meer eenduidige manier van meten toe te passen voor het geven van een indicatie van de gebruiksoppervlakte. De Meetinstructie sluit verschillen in meetuitkomsten niet volledig uit, door bijvoorbeeld interpretatieverschillen, afrondingen of beperkingen bij het uitvoeren van de meting.
Kenmerken
Overdracht
- Laatste vraagprijs
- € 285.000 kosten koper
- Vraagprijs per m²
- € 3.132
- Status
- Verkocht
Bouw
- Soort woonhuis
- Eengezinswoning, 2-onder-1-kapwoning
- Soort bouw
- Bestaande bouw
- Bouwjaar
- 1973
- Soort dak
- Zadeldak bedekt met pannen
Oppervlakten en inhoud
- Gebruiksoppervlakten
- Wonen
- 91 m²
- Overige inpandige ruimte
- 17 m²
- Gebouwgebonden buitenruimte
- 18 m²
- Externe bergruimte
- 20 m²
- Perceel
- 236 m²
- Inhoud
- 387 m³
Indeling
- Aantal kamers
- 3 kamers (2 slaapkamers)
- Aantal badkamers
- 1 badkamer en 1 apart toilet
- Badkamervoorzieningen
- Douche, toilet, en wastafel
- Aantal woonlagen
- 2 woonlagen en een zolder
- Voorzieningen
- Airconditioning, dakraam, natuurlijke ventilatie, rolluiken, TV kabel, en zonnepanelen
Energie
- Energielabel
- B
- Isolatie
- Dakisolatie, dubbel glas, HR-glas en vloerisolatie
- Verwarming
- Cv-ketel
- Warm water
- Cv-ketel
- Cv-ketel
- Vaillant (gas gestookt combiketel uit 2024, eigendom)
Kadastrale gegevens
- ROOSTEREN G 269
- Kadastrale kaart
- Oppervlakte
- 236 m²
- Eigendomssituatie
- Volle eigendom
Buitenruimte
- Ligging
- Aan rustige weg, beschutte ligging, in woonwijk en landelijk gelegen
- Tuin
- Achtertuin, voortuin en zijtuin
- Achtertuin
- 142 m² (15,21 meter diep en 9,33 meter breed)
- Ligging tuin
- Gelegen op het noordwesten bereikbaar via achterom
Garage
- Soort garage
- Aangebouwde stenen garage
- Capaciteit
- 1 auto
- Voorzieningen
- Elektrische deur en elektra
Parkeergelegenheid
- Soort parkeergelegenheid
- Openbaar parkeren
Foto's 45
© 2001-2025 funda












































