
Jan van Delftstraat 435246 VH RosmalenHintham zuid
€ 359.000 k.k.
BlikvangerRuim en modern wonen in Rosmalen: instapklaar 4-kamer maisonette
Omschrijving
Direct online een bezichtiging inplannen? Ga naar onze website!
Modern afgewerkte 4-kamer maisonnette met twee balkons, drie slaapkamers én eigen berging -helemaal instapklaar!
Aan de rand van Rosmalen, achter het winkelcentrum aan de Pastoor van Thiellaan, staat deze verrassend ruime maisonnette klaar voor haar nieuwe bewoners. Met 89 m² woonoppervlak, twee zonnige balkons en drie volwaardige slaapkamers voelt dit appartement als een complete gezinswoning. Perfect voor starters, alleenstaanden of jonge gezinnen die ruimte en comfort zoeken op een centrale locatie.
Instapklaar wonen
Het appartement is in de afgelopen jaren met zorg onderhouden en modern afgewerkt. Denk aan een frisse, eigentijdse badkamer, een verzorgd toilet, vernieuwde radiatoren, een nette keukenopstelling en schilderwerk dat zorgt voor een strak geheel. Hier kun je zonder verbouwen direct comfortabel wonen!
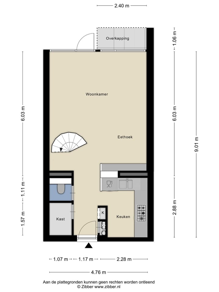
Indeling
Eerste woonlaag
De entree van het appartement bevindt zich op de eerste verdieping van het complex. Vanuit de hal bereik je een praktische provisieruimte en het toilet. Aan de andere zijde bevindt zich de meterkast; ideaal wanneer je in de toekomst elektrisch wilt koken, omdat de keuken hier direct achter ligt.
De keuken is uitgerust met een oven, vaatwasser, 5-pits kookplaat, veel kastruimte en een moderne radiator.
De woonkamer ligt heerlijk op het zuiden. Dankzij de grote ramen en het zonnige balkon is dit een lichte en uitnodigende leefruimte waar binnen en buiten naadloos in elkaar overlopen.
Tweede woonlaag
De bovenverdieping telt drie ruime slaapkamers. De twee kamers aan de achterzijde beschikken over vaste kasten. In één van de kamers bevindt zich tevens de opstelling voor de cv-installatie en het witgoed.
De grootste slaapkamer (ca. 13 m²) heeft een badkamer en suite, voorzien van een moderne afwerking met o.a. een regendouche, LED-spotjes en eigentijdse tegels. Een heerlijk privéverblijf!
Berging en fietsenstalling
Op de begane grond beschik je over een eigen berging van ca. 6 m². Daarnaast kun je gebruikmaken van de gezamenlijke fietsenstalling.
Toplocatie tussen Rosmalen en ’s-Hertogenbosch
De ligging is ideaal: direct achter het winkelcentrum met alle dagelijkse voorzieningen om de hoek. Binnen 15 minuten fiets je naar de historische Bossche binnenstad.
Recreatiegebieden zoals de Oosterplas en het IJzeren Kind zijn dichtbij, evenals scholen, sportfaciliteiten, horecagelegenheden en medische voorzieningen. Via de nabijgelegen A2 en A59 ben je snel onderweg. Parkeren kan gratis in de directe omgeving.
Kenmerken
- Woonoppervlakte ca. 89 m²
- Bruto inhoud ca. 292 m³
- 4 kamers, waarvan 3 slaapkamers
- Twee zonnige balkons
- Verzorgde en moderne afwerking
- Cv-installatie van 2017 en is in eigendom
- Dubbel glas
- Servicekosten € 312 p.m. (incl. water)
- Eigen berging op de begane grond
- Gelegen nabij alle voorzieningen, tussen Rosmalen en ’s-Hertogenbosch
Op zoek naar een ruime, moderne en instapklare woning op een uitstekende locatie? Deze maisonnette is absoluut het bekijken waard!
Kenmerken
Overdracht
- Servicekosten
- € 312 per maand
- Aangeboden sinds
- Aanvaarding
- In overleg
- Vraagprijs
- € 359.000 kosten koper
- Vraagprijs per m²
- € 4.034
- Status
- Beschikbaar
Bouw
- Soort appartement
- Maisonnette (appartement)
- Soort bouw
- Bestaande bouw
- Bouwjaar
- 1966
- Soort dak
- Plat dak bedekt met bitumineuze dakbedekking
Oppervlakten en inhoud
- Gebruiksoppervlakten
- Wonen
- 89 m²
- Gebouwgebonden buitenruimte
- 5 m²
- Externe bergruimte
- 6 m²
- Inhoud
- 292 m³
Indeling
- Aantal kamers
- 4 kamers (3 slaapkamers)
- Aantal badkamers
- 1 badkamer en 1 apart toilet
- Badkamervoorzieningen
- Inloopdouche, wastafel, en wastafelmeubel
- Aantal woonlagen
- 2 woonlagen
- Voorzieningen
- Lift en mechanische ventilatie
- Gelegen op
- 1e woonlaag
Energie
- Energielabel
- A
- Isolatie
- Dubbel glas
- Verwarming
- Cv-ketel
- Warm water
- Cv-ketel
- Cv-ketel
- Atag (gas gestookt combiketel uit 2017, eigendom)
Kadastrale gegevens
- ROSMALEN E 5119
- Kadastrale kaart
- Eigendomssituatie
- Volle eigendom
Buitenruimte
- Ligging
- In woonwijk
- Balkon/dakterras
- Balkon aanwezig
Bergruimte
- Schuur/berging
- Aangebouwde stenen berging
Parkeergelegenheid
- Soort parkeergelegenheid
- Openbaar parkeren
VvE checklist
- Inschrijving KvK
- Ja
- Jaarlijkse vergadering
- Ja
- Periodieke bijdrage
- Ja
- Reservefonds aanwezig
- Ja
- Onderhoudsplan
- Ja
- Opstalverzekering
- Ja
Foto's 40
© 2001-2025 funda







































