
Omschrijving
Een geweldige kans om jouw thuis te vinden in het bruisende Nieuwe Westen van Rotterdam!
WOW! Een keurige 3-/4-kamerwoning van ca. 69m2 ligt in een buurt vol met voorzieningen en heeft alles wat je nodig hebt binnen handbereik. Het appartement is gelegen aan de Aelbrechtskade 122C02, vraagprijs € 325.000,- k.k..
Wonen tussen de Schie en het Centrum
U kunt hier lekker slenteren langs het water van de Schie, de alom bekende Heemraadssingel of in het Roel Langerakpark, terwijl het centrum van de stad nabij is. Of ga de Schie over en breng een bezoek aan Historisch Delfshaven of maak een wandeling over het drie kilometer lange Dakpark aan de Vierhavenstraat met eronder diverse megastores, mediterrane tuin, speeltuin, buurttuin, ligweide, barbecueweide, watertrap en waterpartij.
Alle voorzieningen
U vindt in de wijk diverse winkels aan de Schiedamseweg, Nieuwe Binnenweg, Mathenesserweg en –plein. De megastores onder het Dakpark en alle voorzieningen van het centrum liggen vrijwel om de hoek. Twee keer per week is er een gezellige markt aan het Visserijplein. Binnen enkele minuten rijdt u de A20 op. Metro, bus en tram bevinden zich op loopafstand.
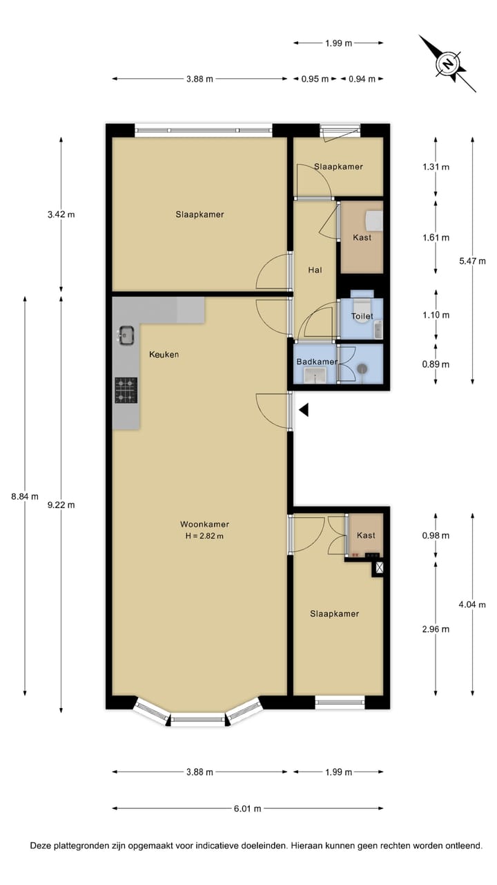
GLOBALE INDELING
Ontdek met de plattegronden de indeling en ervaar de mogelijkheden. Laat je inspireren door de sfeervolle foto’s en wandel virtueel door de woning. Krijg een levensechte indruk. Klik, kijk en ontdek hoe deze plek jouw nieuwe thuis kan worden!
Algemeen:
Oppervlakte woning ca. 69m2
Inhoud woning ca. 241m3
Oplevering in overleg, kan snel
Bouwjaar omstreeks 1924
Eigen grond
Verwarming en warm water d.m.v. CV-ketel
Definitief energielabel A
VvE recent opgericht, maandelijkse bijdrage € 140,70
Projectnotaris van toepassing
Ondanks dat deze aanmelding met de nodige zorgvuldigheid is samengesteld, is alle verstrekte informatie nadrukkelijk onder voorbehoud, uitsluitend indicatief, bedoeld als voorbeeld en daardoor niet bindend voor het eindresultaat. Aan deze woninginformatie kunnen geen rechten of verplichtingen worden ontleend, onzerzijds wordt geen enkele aansprakelijkheid aanvaard voor enige onvolledigheid, onjuistheid of anderszins, dan wel de gevolgen daarvan.
Kenmerken
Overdracht
- Aangeboden sinds
- Aanvaarding
- Per direct beschikbaar
- Vraagprijs
- € 325.000 kosten koper
- Vraagprijs per m²
- € 4.710
- Status
- Beschikbaar
- Bijdrage VvE
- € 140,70 per maand
Bouw
- Soort appartement
- Portiekwoning (appartement)
- Soort bouw
- Bestaande bouw
- Bouwjaar
- 1924
- Specifiek
- Gestoffeerd
- Soort dak
- Zadeldak
Oppervlakten en inhoud
- Gebruiksoppervlakten
- Wonen
- 69 m²
- Inhoud
- 241 m³
Indeling
- Aantal kamers
- 4 kamers (3 slaapkamers)
- Aantal badkamers
- 1 badkamer en 1 apart toilet
- Badkamervoorzieningen
- Douche, wastafel, en wastafelmeubel
- Aantal woonlagen
- 1 woonlaag
- Voorzieningen
- TV kabel
- Gelegen op
- 2e woonlaag
Energie
- Energielabel
- A
- Isolatie
- Dubbel glas
- Verwarming
- Cv-ketel
- Warm water
- Cv-ketel
- Cv-ketel
- Eigendom
Kadastrale gegevens
- ROTTERDAM I 3801
- Kadastrale kaart
- Eigendomssituatie
- Volle eigendom
Buitenruimte
- Ligging
- Aan vaarwater, aan water, in woonwijk, open ligging en vrij uitzicht
Parkeergelegenheid
- Soort parkeergelegenheid
- Betaald parkeren
VvE checklist
- Inschrijving KvK
- Ja
- Jaarlijkse vergadering
- Ja
- Periodieke bijdrage
- Ja (€ 140,70 per maand)
- Reservefonds aanwezig
- Nee
- Onderhoudsplan
- Nee
- Opstalverzekering
- Ja
Foto's 11
© 2001-2025 funda










