
Omschrijving
Een leuke kans voor de starter op de woningmarkt - gelegen op de bovenste etage van een keurig complex, 2 royale buitenruimtes en een eigen berging. Welkom op de Brigantijnstraat!
- Mooie kans voor de starters
- Actieve VVE
- Volledig eigen grond, 2 royale buitenruimtes
Goed bereikbaar en alle voorzieningen binnen handbereik; dat is wonen op de Brigantijnstraat. Denk bij alle voorzieningen aan dagelijkse behoeftes zoals bijvoorbeeld supermarkten, winkels, scholen, medische voorzieningen, openbaar vervoer en uitvalswegen. Tramhalte Hogenbanweg is bijna voor de deur en metrohalte Marconiplein ligt op slechts enkele minuten fietsen waardoor het gezellige centrum van Rotterdam en Schiedam snel bereikbaar zijn. Nieuwsgierig geworden? Neem contact met ons op voor een afspraak!
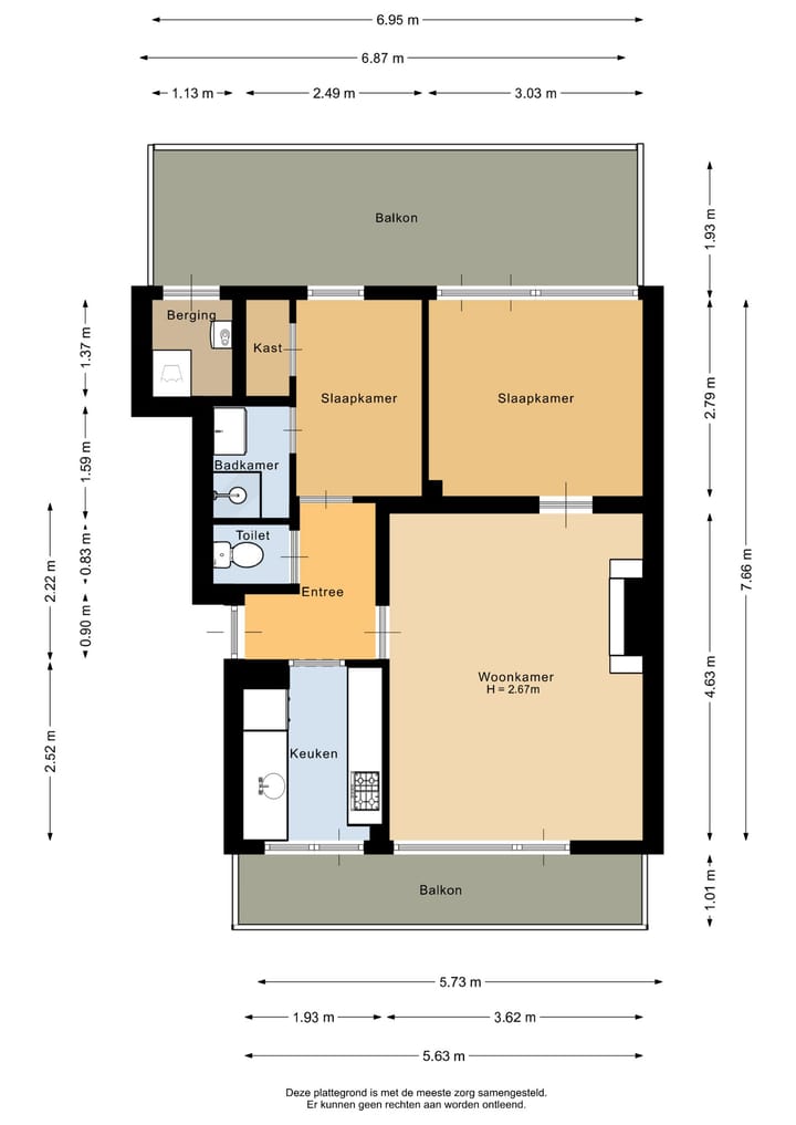
De indeling is als volgt:
Met de trap is de vierde (top) etage te bereiken. De entree is in de hal. Direct aan de rechterzijde bevindt zich de keuken. Een rechte opstelling met ook de doorgang naar het balkon. De keuken heeft als apparatuur een koelkast met vriesvak, combi magnetron, spoelbak, 4-pits gaskookplaat, afzuigkap en natuurlijk genoeg kastruimte. Dan volgt de gezellige woonkamer met doorgang naar het balkon. Er is hier voldoende plek voor een eethoek en gezellige zithoek. Via de woonkamer is de doorgang naar de grote slaapkamer. Een lichte kamer met openslaande deuren naar het dakterras. Links van de entree is de losse toiletruimte te vinden met daarna de tweede slaapkamer. Deze kamer is voorzien van een grote vaste kast en de badkamer. De badkamer heeft een douchehoek en een wastafel met een meubel. De C.V.-ketel bevindt zich in een vaste kast op het grote terras. Praktische ruimtes en veel mogelijkheden; wat een fijn appartement!
In de wijk is het betaald parkeren. In de directe omgeving zijn voldoende parkeergelegenheden aanwezig. De woning is verder voorzien van kunststof kozijnen met daarin dubbele (HR) beglazing. In de onderbouw is een eigen berging aanwezig.
Bijzonderheden:
- Bouwjaar: 1950
- Gebruiksoppervlakte wonen: 45m2
- Inhoud: 152m3
- Buitenruimte 2x: 19m2
- Berging: 8m2
- Volledig eigendom
- Verwarming/warm water: C.V.-ketel - Intergas HRE
- VVE, maandelijkse bijdrage: € 86,00
- Energielabel: E
- Betonnen funderingspalen
- Extra clausules in de koopakte: asbestclausule & ouderdomsclausule
- Oplevering: in onderling overleg
Deze presentatie is met zorg samengesteld. Desondanks kunnen aan deze presentatie geen rechten worden ontleend. Daarnaast aanvaardt de makelaar of zijn opdrachtgever geen aansprakelijkheid voor de in de presentatie verstrekte informatie. Mocht de presentatie vragen oproepen, dan nodigen wij u van harte uit deze onder onze aandacht te brengen.
Koopovereenkomst pas rechtsgeldig na ondertekening:
Een mondelinge overeenstemming tussen de particuliere verkoper en de particuliere koper is niet rechtsgeldig. Met andere woorden: er is geen koop. Er is pas sprake van een rechtsgeldige koop als de particuliere verkoper en de particuliere koper de koopovereenkomst hebben ondertekend. Dit vloeit voort uit artikel 7:2 Burgerlijk Wetboek. Een bevestiging van de mondelinge overeenstemming per e-mail of een toegestuurd concept van de koopovereenkomst wordt overigens niet gezien als een 'ondertekende koopovereenkomst'.
Toelichtingsclausule NEN2580:
De Meetinstructie is gebaseerd op de NEN2580. De Meetinstructie is bedoeld om een meer eenduidige manier van meten toe te passen voor het geven van een indicatie van de gebruiksoppervlakte. De Meetinstructie sluit verschillen in meetuitkomsten niet volledig uit, door bijvoorbeeld interpretatieverschillen, afrondingen of beperkingen bij het uitvoeren van de meting.
Kenmerken
Overdracht
- Aangeboden sinds
- Aanvaarding
- In overleg
- Vraagprijs
- € 215.000 kosten koper
- Vraagprijs per m²
- € 4.778
- Status
- Verkocht onder voorbehoud
- Bijdrage VvE
- € 86,00 per maand
Bouw
- Soort appartement
- Portiekflat (appartement)
- Soort bouw
- Bestaande bouw
- Bouwjaar
- 1950
- Soort dak
- Samengesteld dak bedekt met bitumineuze dakbedekking
Oppervlakten en inhoud
- Gebruiksoppervlakten
- Wonen
- 45 m²
- Overige inpandige ruimte
- 2 m²
- Gebouwgebonden buitenruimte
- 19 m²
- Externe bergruimte
- 8 m²
- Inhoud
- 152 m³
Indeling
- Aantal kamers
- 3 kamers (2 slaapkamers)
- Aantal badkamers
- 1 badkamer en 1 apart toilet
- Badkamervoorzieningen
- Douche, wastafel, en wastafelmeubel
- Aantal woonlagen
- 1 woonlaag
- Voorzieningen
- Natuurlijke ventilatie en TV kabel
- Gelegen op
- 4e woonlaag
Energie
- Energielabel
- E
- Isolatie
- Dubbel glas
- Verwarming
- Cv-ketel
- Warm water
- Cv-ketel
- Cv-ketel
- Intergas HRE (gas gestookt combiketel, eigendom)
Kadastrale gegevens
- ROTTERDAM AA 1890
- Kadastrale kaart
- Eigendomssituatie
- Volle eigendom
Buitenruimte
- Ligging
- Aan rustige weg en beschutte ligging
- Balkon/dakterras
- Dakterras aanwezig en balkon aanwezig
Bergruimte
- Schuur/berging
- Inpandig
- Isolatie
- Dubbel glas
Parkeergelegenheid
- Soort parkeergelegenheid
- Betaald parkeren en parkeervergunningen
VvE checklist
- Inschrijving KvK
- Ja
- Jaarlijkse vergadering
- Ja
- Periodieke bijdrage
- Ja (€ 86,00 per maand)
- Reservefonds aanwezig
- Ja
- Onderhoudsplan
- Ja
- Opstalverzekering
- Ja
Foto's 35
Plattegronden 2
© 2001-2025 funda




































