
Omschrijving
Er zijn meerdere woningen aan de Kelloggplaats en Cordell Hullplaats te bezichtigen op dinsdag 1 april 2025. Maak hiervoor wel graag een afspraak via 010 - 422 30 00. De makelaar verwelkomt je bij de entree.
Uitdaging voor de echte klusser. Dit leuke appartement aan de Cordell Hullplaats 371
Ruim 4-kamerappartement in het rustige hart van Ommoord!
Ben je op zoek naar een ruim appartement in een rustige en groene omgeving met veel wandel- en andere recreatiemogelijkheden? Dan hebben wij precies wat jij zoekt! In de populaire wijk Ommoord bieden wij meerdere appartementen aan op de Kelloggplaats en de Cordell Hullplaats. Deze appartementen variëren van circa 85 m² tot circa 100 m² en bieden alles wat je nodig hebt voor een fijn wooncomfort.
Elk appartement beschikt over een ruim balkon waar je kan genieten van de buitenlucht en het uitzicht.
Daarnaast heb je de beschikking over een eigen berging, ideaal voor het opbergen van jouw spullen.
De appartementencomplexen zijn voorzien van een moderne, stijlvolle entree en een lift, waardoor je gemakkelijk toegang hebt tot jouw woning. Parkeren doe je op het eigen terrein van het complex, waardoor je nooit hoeft te zoeken naar een parkeerplaats.
Gebouwd in 1970, waardoor deze woningen voorzien zijn van grote glaspartijen en ruime kamers.
De verwarming is collectief geregeld middels blokverwarming.
Op een steenworp afstand tref je alle dagelijkse voorzieningen, zoals diverse winkels en horeca.
De bereikbaarheid is prima: openbaar vervoer op loopafstand, goede verbindingen tot uitvalswegen en diverse recreatiemogelijkheden.
Eigenschappen van dit specifieke appartement:
- Locatie: Cordell Hullplaats 371, Ommoord (8e verdieping)
- Bouwjaar: 1970
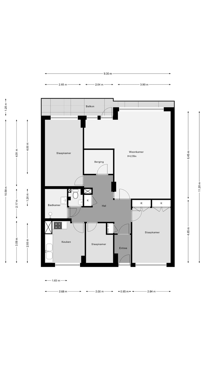
- Woonoppervlakte: ca. 102 m²
- Gelegen op eigen grond
- 4 kamers, waarvan 3 slaapkamers
- Ruim balkon van 8 m²
- Eigen berging in onderbouw
- Parkeren voor de deur
- Fraaie, moderne entree
- Voorzien van lift
- Blokverwarming / Elektrische boiler
- Grotendeels voorzien van dubbele beglazing
- Energielabel: E
- VVE bijdrage woning circa € 219,46 per maand exclusief voorschot stookkosten
- VVE bijdrage berging circa € 15,68 per maand exclusief voorschot stookkosten
- Projectnotaris (Kooijman Autar Notarissen) van toepassing
- Ouderdomsclausule van toepassing
- Eigenarenclausule van toepassing
- Oplevering in overleg, per direct mogelijk
Ben je geïnteresseerd in een bezichtiging of wil je meer informatie? Neem dan vandaag nog contact met ons op. Jouw nieuwe thuis in Ommoord wacht op je!
Wij zijn de makelaar van de verkoper. Wij adviseren je om jouw eigen makelaar mee te nemen voor je belangenbehartiging bij de aankoop van jouw toekomstige huis.
Aan deze aanbieding kunnen geen rechten worden ontleend.
Kenmerken
Overdracht
- Laatste vraagprijs
- € 350.000 kosten koper
- Vraagprijs per m²
- € 3.431
- Status
- Verkocht
- Bijdrage VvE
- € 219,46 per maand
Bouw
- Soort appartement
- Galerijflat (appartement)
- Soort bouw
- Bestaande bouw
- Bouwjaar
- 1970
- Soort dak
- Plat dak bedekt met bitumineuze dakbedekking
- Toegankelijkheid
- Toegankelijk voor mensen met een beperking en toegankelijk voor ouderen
Oppervlakten en inhoud
- Gebruiksoppervlakten
- Wonen
- 102 m²
- Gebouwgebonden buitenruimte
- 12 m²
- Externe bergruimte
- 9 m²
- Inhoud
- 323 m³
Indeling
- Aantal kamers
- 4 kamers (3 slaapkamers)
- Aantal badkamers
- 1 badkamer en 1 apart toilet
- Badkamervoorzieningen
- Douche en wastafelmeubel
- Aantal woonlagen
- 1 woonlaag
- Voorzieningen
- Lift, natuurlijke ventilatie, en TV kabel
- Gelegen op
- 8e woonlaag
Energie
- Energielabel
- E
- Isolatie
- Grotendeels dubbelglas
- Verwarming
- Blokverwarming
- Warm water
- Elektrische boiler
Kadastrale gegevens
- HILLEGERSBERG B 3231
- Kadastrale kaart
- Eigendomssituatie
- Volle eigendom
Buitenruimte
- Ligging
- Aan rustige weg, in woonwijk en vrij uitzicht
- Balkon/dakterras
- Balkon aanwezig
Bergruimte
- Schuur/berging
- Box
- Voorzieningen
- Elektra
Parkeergelegenheid
- Soort parkeergelegenheid
- Op eigen terrein en openbaar parkeren
VvE checklist
- Inschrijving KvK
- Ja
- Jaarlijkse vergadering
- Ja
- Periodieke bijdrage
- Ja (€ 219,46 per maand)
- Reservefonds aanwezig
- Ja
- Onderhoudsplan
- Ja
- Opstalverzekering
- Ja
Foto's 20
© 2001-2025 funda



















