
Omschrijving
Stel je voor: jouw nieuwe thuis in Blijdorp! Dit is geen gewoon appartement, dit is jouw perfecte plek waar authentieke details uit 1933 moeiteloos samenkomen met het comfort van nu. De lichte doorzonwoonkamer met zijn schitterende houten vloer is een droom om in te wonen. Hier nodig jij al je vrienden en familie uit en ben je trots om je huis te laten zien.
Indeling
Eerste verdieping:
Stap binnen en je voelt het meteen: ruimte, licht en sfeer! De woonkamer is het hart van het appartement met twee balkons. Twee balkons? Ja, dat lees je goed! Eén met uitzicht op de levendige Statensingel, de andere rustig aan de achterzijde. De ideale spots om met je koffietje de zon in te trekken of de schaduw op te zoeken. De halfopen keuken is compleet van alle moderne inbouwapparatuur zoals een oven, koelkast, vriezer en vaatwasser voorzien. De ideale plek dus om je kookkunsten te laten zien, waarbij je zelfs de optie hebt om deze nog meer bij de woonkamer te betrekken. De eerste slaapkamer is multifunctioneel inzetbaar. Maak er een thuiskantoor, logeerkamer of extra slaapkamer van, jij bepaalt! De badkamer is van alle luxe voorzien. Hier pak je snel even een douche of kom je tot rust en ga je uitgebreid in bad. Er is een apart toilet en een ruime wasruimte, zodat je alle was lekker uit het zicht kunt ophangen.
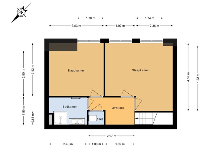
Derde verdieping:
Boven is het net zo geweldig! Drie slaapkamers om van te genieten. De grootste slaapkamer heeft een eigen wastafel. Op deze verdieping vind je ook een tweede toilet en een gigantische inloopkast! Hoe fijn is dat? Verder kun je op deze verdieping ook nog een tweede badkamer toevoegen of twee van de slaapkamers bij elkaar trekken voor nog meer ruimte. Alles is mogelijk om jouw woning helemaal op voor jou passend te maken.
Locatie:
Blijdorp is de wijk die alles heeft! Rustig wonen, maar het bruisende centrum is vlakbij. Openbaar vervoer, parken, winkels, cafés – het is allemaal binnen handbereik. En niet te vergeten: het iconische Diergaarde Blijdorp is letterlijk om de hoek! Kortom, de perfecte plek om te wonen en te genieten van alles wat Rotterdam te bieden heeft.
Alle belangrijke info:
- Een echte jaren ’30 woning uit bouwjaar 1933;
- Superruim met 114 m2 conform NEN2580;
- Gelegen op eigen grond;
- Mogelijkheid tot overname van meubilair, scheelt je spullen verhuizen;
- Verwarming en warm water via CV-ketel;
- Goed functionerende, actieve en gezonde VvE met maandelijkse bijdrage circa €70,--;
- Energielabel D, voorzien van HR++ beglazing;
- Ouderdoms- en niet-feitelijke bewoningsclausule van toepassing;
- Geen lijst van zaken en vragenlijst aanwezig;
- Projectnotaris van toepassing;
- Oplevering in overleg maar kan heel snel als jij dat ook wilt.
Kortom, als je op zoek bent naar een huis met karakter, comfort en wat extra ruimte, dan zou ik snel langskomen. Voor je het weet, woon je hier!
Nog een puntje:
We willen natuurlijk dat je na het zien van deze woning helemaal verliefd bent en een bod doet, zodat jij hier kan wonen. Wij doen je deze uitnodiging namens de verkoper, wil je zelf goed begeleid worden, neem dan je eigen aankoopmakelaar mee.
De plattegronden zijn opgesteld op basis van de NEN2580 meting. Dit zorgt voor een eenduidige manier van meten, maar ook hierin blijven we mensen. Kleine correcties, interpretatieverschillen, beperkingen tijdens de opname en/of afrondingsfoutjes kunnen daardoor niet worden uitgesloten.
Kenmerken
Overdracht
- Laatste vraagprijs
- € 480.000 kosten koper
- Vraagprijs per m²
- € 4.211
- Status
- Verkocht
- Bijdrage VvE
- € 70,00 per maand
Bouw
- Soort appartement
- Bovenwoning (appartement)
- Soort bouw
- Bestaande bouw
- Bouwjaar
- 1933
- Specifiek
- Beschermd stads- of dorpsgezicht en gemeubileerd
- Soort dak
- Zadeldak bedekt met pannen
Oppervlakten en inhoud
- Gebruiksoppervlakten
- Wonen
- 114 m²
- Gebouwgebonden buitenruimte
- 8 m²
- Inhoud
- 337 m³
Indeling
- Aantal kamers
- 5 kamers (4 slaapkamers)
- Aantal badkamers
- 1 badkamer en 2 aparte toiletten
- Badkamervoorzieningen
- Douche, ligbad, en wastafel
- Aantal woonlagen
- 2 woonlagen
- Voorzieningen
- Dakraam, natuurlijke ventilatie, en TV kabel
Energie
- Energielabel
- D
- Isolatie
- Dubbel glas
- Verwarming
- Cv-ketel
- Warm water
- Cv-ketel
- Cv-ketel
- Intergas (gas gestookt combiketel, eigendom)
Kadastrale gegevens
- ROTTERDAM Z 3631
- Kadastrale kaart
- Eigendomssituatie
- Volle eigendom
Buitenruimte
- Ligging
- Aan rustige weg, beschutte ligging en in woonwijk
Parkeergelegenheid
- Soort parkeergelegenheid
- Betaald parkeren, openbaar parkeren en parkeervergunningen
VvE checklist
- Inschrijving KvK
- Ja
- Jaarlijkse vergadering
- Ja
- Periodieke bijdrage
- Ja (€ 70,00 per maand)
- Reservefonds aanwezig
- Ja
- Onderhoudsplan
- Ja
- Opstalverzekering
- Ja
Foto's 38
© 2001-2025 funda





































