
Omschrijving
Heerlijk 3-kamer appartement met een fijn balkon op het zonnige zuiden, gelegen op de grens van Rotterdam Noord in de populaire wijk Bergpolder. De woning heeft onder andere een ruime en lichte woonkamer, twee slaapkamers, badkamer met douche, een separaat toilet, keuken met inbouwapparatuur en een zonnig balkon.
De woning ligt aan de Gordelweg, een brede straat in het populaire Rotterdam Noord. In de directe omgeving vind je diverse winkels, supermarkten, gezellige koffiezaken en sportfaciliteiten. Op korte afstand liggen zowel het Vroesenpark als het Oude Noorden, waar je volop keuze hebt uit leuke restaurants en speciaalzaken. De ligging is bovendien zeer centraal: met de fiets sta je binnen enkele minuten in het stadscentrum, en tram- en busverbindingen bevinden zich op loopafstand. Ook Station Noord en de uitvalswegen richting de A13 en A20 zijn snel te bereiken, waardoor dit een ideale locatie is voor wie graag rustig woont maar toch dichtbij alle voorzieningen wil zitten.
ENTREE
Eigen voordeur, hal met (vernieuwde) meterkast, wasruimte, toilet en toegang tot alle vertrekken.
EERSTE VERDIEPING
De lichte woonkamer heeft een groot raam aan de voorzijde, kunststof kozijnen met dubbel glas en strak gestuukte wanden. Dankzij de ruime opzet is er genoeg plaats voor een comfortabele zithoek, tv-meubel en een gezellige eettafel. De verzorgde afwerking geeft de ruimte een frisse en uitnodigende sfeer.
De keuken met boven- en onderkasten, is voorzien van een 4-pits gaskookplaat, afzuigkap, oven en koelkast met vriezer. Vanuit de keuken is er toegang naar het balkon. Hier is ook een handig schuurtje voor extra opslagruimte.
SLAPEN EN SANITAIR
Aan de achterzijde ligt de hoofdslaapkamer, een rustige ruimte met openslaande deuren naar het balkon. Aansluitend bevindt zich de badkamer en suite, voorzien van een douchecabine, wastafelmeubel, designradiator en witte wandtegels. Een frisse, praktische ruimte die direct klaar is voor gebruik.
De tweede slaapkamer bevindt zich aan de voorzijde van de woning en is dankzij het grote raam heerlijk licht. Ook hier zijn kunststof kozijnen met dubbel glas en ventilatieroosters aanwezig, waardoor de kamer prettig aanvoelt en veelzijdig te gebruiken is.
BALKON
Het balkon is gunstig gelegen op het zuiden, waardoor je hier lekker kunt genieten van de zon. Het balkon is bereikbaar vanuit zowel de keuken als de hoofdslaapkamer en beschikt over een compact schuurtje/ kastje voor extra bergmogelijkheden.
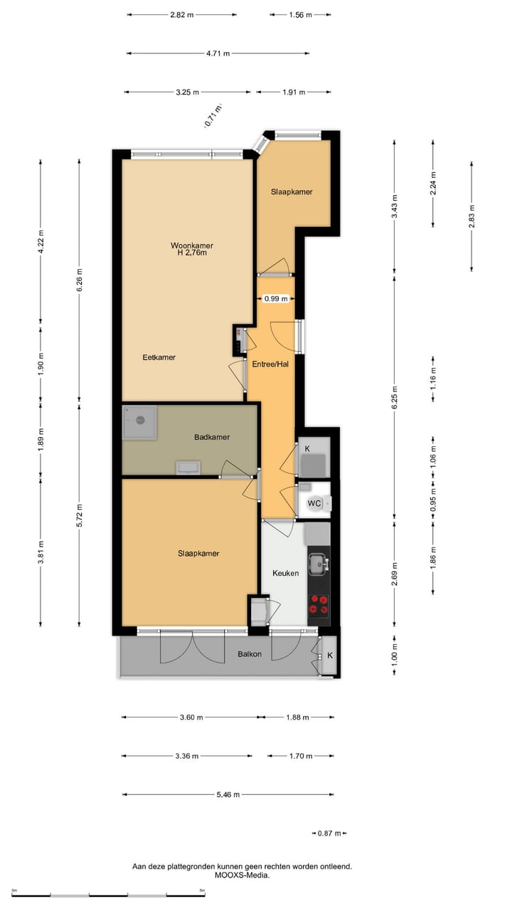
AFMETINGEN
Bekijk voor de afmetingen bijgevoegde plattegronden.
ALGEMEEN
- Bouwjaar: 1936
- Woonoppervlakte: 61 m2
- Eigen grond
- Energielabel: B
- Verwarming wegens CV-ketel Remeha Avanta (2018)
- Dubbele beglazing in kunststof kozijnen
- VVE bijdrage: €83,33
- Zonnig balkon op het zuiden
- De oplevering is in overleg
BIJZONDERHEDEN
* Vanaf 1 januari 2023 zijn makelaars wettelijk verplicht een biedlogboek bij te houden bij de verkoop van bestaande woningen (en wanneer de koper en/of de verkoper een particulier is). Biedingen kun je per die datum, en indien gewenst, nog steeds mondeling met ons bespreken maar dien je daarna digitaal aan ons te bevestigen via jouw MOVE-account. Het biedlogboek is niet van toepassing bij de verkoop van nieuwbouw, recreatiewoningen, bedrijfswoningen, garageboxen, bouwkavels, woon-/bedrijfspanden en (agrarische) bedrijfsobjecten zonder woonbestemming.
* Bij het sluiten van een koopovereenkomst verklaar je je akkoord dat ondertekening van de koopovereenkomst digitaal plaatsvindt (met iDIN identificatie) door gebruikmaking van het platform van ondertekenen.nl.
* De koopovereenkomst wordt opgesteld conform het meest recente model dat is vastgesteld door de NVM, de Consumentenbond en Vereniging Eigen Huis en aangevuld met enkele aanvullende artikelen waaronder (maar niet uitsluitend) een ouderdoms-clausule, een clausule over de Meetinstructie en een clausule over de onderzoeksplicht van koper.
* Vanzelfsprekend staat het je vrij om, indien gewenst, een bouwkundige uit te nodigen de woning bouwkundig voor je te keuren teneinde jezelf een goed beeld te kunnen vormen van de bouwkundige staat van de woning.
ENTHOUSIAST?
Maak gerust een afspraak voor een vrijblijvende bezichtiging en bekijk onze website voor extra informatie over ons kantoor.
EIGEN NVM MAKELAAR
Vrieling Makelaars behartigt de belangen van de verkopende partij. Ons advies bij het kopen van jouw nieuwe woning is dan ook om je eigen NVM-aankoopmakelaar mee te nemen.
TOT SLOT
Deze presentatie is met zorg samengesteld, onder andere (maar niet uitsluitend) aan de hand van de door opdrachtgever (verkoper/verhuurder) aan makelaar verstrekte gegevens en tekeningen. Desondanks kunnen aan deze presentatie geen rechten worden ontleend en aanvaardt de makelaar of zijn opdrachtgever (verkoper/verhuurder) geen enkele aansprakelijkheid voor enige onvolledigheid, onjuistheid of anderszins -dan wel de gevolgen daarvan- van de in deze presentatie verstrekte informatie of elke andere aan de (kandidaat) koper of huurder (of andere belanghebbende) verstrekte informatie m.b.t. het te koop (of te huur) aangeboden object. Alle opgegeven maten en oppervlakten zijn daarnaast slechts indicatief. Mocht deze presentatie of andere verstrekte informatie m.b.t. het te koop (of te huur) aangeboden object vragen oproepen, dan nodigen wij je van harte uit deze onder onze (makelaar) aandacht te brengen.
THUIS IN DE REGIO, THUIS IN DE STAD
DÉ MAKELAAR VOOR DE HOEKSCHE WAARD & ROTTERDAM
Kenmerken
Overdracht
- Aangeboden sinds
- Aanvaarding
- In overleg
- Vraagprijs
- € 325.000 kosten koper
- Vraagprijs per m²
- € 5.328
- Status
- Beschikbaar
- Bijdrage VvE
- € 83,33 per maand
Bouw
- Soort appartement
- Bovenwoning (appartement)
- Soort bouw
- Bestaande bouw
- Bouwjaar
- 1936
Oppervlakten en inhoud
- Gebruiksoppervlakten
- Wonen
- 61 m²
- Gebouwgebonden buitenruimte
- 6 m²
- Inhoud
- 199 m³
Indeling
- Aantal kamers
- 3 kamers (2 slaapkamers)
- Aantal badkamers
- 1 badkamer en 1 apart toilet
- Badkamervoorzieningen
- Douche, wastafel, en wastafelmeubel
- Aantal woonlagen
- 1 woonlaag
- Gelegen op
- 2e woonlaag
Energie
- Energielabel
- B
- Isolatie
- Dubbel glas
- Verwarming
- Cv-ketel
- Warm water
- Cv-ketel
- Cv-ketel
- Remeha Avanta (gas gestookt uit 2018, eigendom)
Kadastrale gegevens
- ROTTERDAM AB 3617
- Kadastrale kaart
- Eigendomssituatie
- Volle eigendom
Buitenruimte
- Ligging
- In woonwijk
- Balkon/dakterras
- Balkon aanwezig
Parkeergelegenheid
- Soort parkeergelegenheid
- Betaald parkeren en parkeervergunningen
VvE checklist
- Inschrijving KvK
- Ja
- Jaarlijkse vergadering
- Ja
- Periodieke bijdrage
- Ja (€ 83,33 per maand)
- Reservefonds aanwezig
- Ja
- Onderhoudsplan
- Ja
- Opstalverzekering
- Ja
Foto's 18
Plattegronden
© 2001-2025 funda


















