
Omschrijving
De ultieme hoogwaardig verbouwde en energiezuinige droomwoning. Deze woning is recent volledig gerenoveerd en geïsoleerd (A label), hierbij kan je denken aan een moderne keuken, nette badkamer maar ook een nieuwe groepenkast en nieuw verwarmingssysteem. Verder beschikt deze ruime bovenwoning over ruime slaapkamers en goede buitenruimte.
In de levendige wijk Tussendijken! Hier geniet je van het beste van de stad: een centrale ligging, gezellige restaurants en uitstekende bereikbaarheid.
- Culinair genieten – Op loopafstand vind je diverse eetgelegenheden, van hippe koffietentjes tot authentieke wereldkeukens. Proef de lokale smaken en ontdek je nieuwe favoriete restaurant!
- Perfect bereikbaar – Met metrostation Marconiplein en meerdere tram- en buslijnen om de hoek, sta je in no-time in het centrum van Rotterdam of waar je maar wilt. Ook de uitvalswegen naar de A13 en A20 zijn snel bereikbaar.
-Verder zijn historisch Delfshaven, het Dakpark en de Mathenesserplein binnen handbereik!
Ben jij klaar om deze fijne woning in de wijk Tussendijken te ontdekken? Neem contact op voor een bezichtiging!
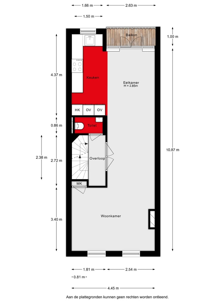
Indeling
Begane grond:
Afgesloten entree gezamenlijke opgang met op de eerste verdieping toegang tot het appartement.
Tweede etage:
Overloop met modern toilet
Binnenkomst via luxe openslaande deuren naar de living. De ruime woonkamer is gelegen aan de aan de voorzijde. De grote raampartijen zorgen voor een fijne lichtinval en er is heerlijk ruim balkon aan de achterzijde. Plaats voor de raampartijen een comfortabele bank waar je uitgebreid kunt relaxen en een eettafel zal er voor zorgen dat je de leukste etentjes kan organiseren! De luxe open keuken bevindt zich aan de achterzijde van de woonkamer, de moderne fronten zorgen hier voor een hippe uitstraling. Ook beschikt de keuken over diverse apparatuur zoals een 5 pits inductie fornuis gecombineerd met een grote oven, stoomoven, oven en een vaatwasser.
Derde etage:
Overloop, praktische berging met aansluiting voor de wasmachine.
De hoofdslaapkamer zit boordevol ruimte en licht! Er is ruimte voor een groot tweepersoonsbed. Hier is het fijn wakker worden!
De tweede slaapkamer is gesitueerd aan de achterzijde van de woning. Vanuit deze kamer heeft u toegang tot een zonnig balkon. Ideaal!
De luxe badkamer is netjes betegeld en beschikt over een wastafel met meubel, modern toilet en inloopdouche.
Bijzonderheden
Eigen grond
Gunstig Energielabel A
Verwarming en warmwater door middel van een nieuwe cv installatie 2025
Geheel voorzien van dubbele beglazing deels triple glas
Goed onderhouden complex met een recent opgestarte actieve Vereniging van Eigenaars. De bijdrage is Euro 102 per maand
Verkoop onder voorbehoud van splitsing (afrondende fase)
Verkoper heeft de woning niet bewoond
Keuze notaris aan verkoper
In de directe omgeving zijn alle dagelijkse voorzieningen te vinden, zoals openbaar vervoer, winkels, horeca, goede verbinding tot uitvalswegen en recreatiemogelijkheden
In de koopakte zal er een ouderdoms-, funderings-, zelf niet bewoond clausule worden opgenomen.
Na het zien van de woning kunt u bij interesse via Move een bod uitbrengen. Dit is een tool om u als kijker een handje te helpen om een bod te formuleren (uw bod is niet zichtbaar op de site en komt direct in de inbox van Van Kleef NVM Makelaars).
Wilt u eerst een preview van deze woning? Dat kan! Op Funda staat een video om een eerste indruk te krijgen (geen slideshow).
Van Kleef NVM Makelaars is de NVM-makelaar van de verkoper. Wij adviseren u uw eigen NVM-makelaar in te schakelen om uw belangen te behartigen bij de aankoop van dit object.
Deze informatie is door ons met de nodige zorgvuldigheid samengesteld. Onzerzijds wordt echter geen enkele aansprakelijkheid aanvaard voor enige onvolledigheid, onjuistheid of anderszins, dan wel de gevolgen daarvan. Alle opgegeven maten en oppervlakten zijn indicatief.
Kenmerken
Overdracht
- Aangeboden sinds
- Aanvaarding
- Per direct beschikbaar
- Vraagprijs
- € 395.000 kosten koper
- Vraagprijs per m²
- € 4.247
- Status
- Beschikbaar
- Bijdrage VvE
- € 102,00 per maand
Bouw
- Soort appartement
- Bovenwoning (dubbel bovenhuis)
- Soort bouw
- Bestaande bouw
- Bouwjaar
- 1923
- Soort dak
- Samengesteld dak bedekt met pannen
Oppervlakten en inhoud
- Gebruiksoppervlakten
- Wonen
- 93 m²
- Gebouwgebonden buitenruimte
- 7 m²
- Inhoud
- 334 m³
Indeling
- Aantal kamers
- 3 kamers (2 slaapkamers)
- Aantal badkamers
- 1 badkamer en 1 apart toilet
- Badkamervoorzieningen
- Inloopdouche, toilet, en wastafelmeubel
- Aantal woonlagen
- 2 woonlagen
- Voorzieningen
- Natuurlijke ventilatie
- Gelegen op
- 2e woonlaag
Energie
- Energielabel
- A
- Isolatie
- Dakisolatie, driedubbel glas, dubbel glas, HR-glas en muurisolatie
- Verwarming
- Cv-ketel
- Warm water
- Cv-ketel
- Cv-ketel
- Hr (gas gestookt combiketel uit 2025, eigendom)
Kadastrale gegevens
- DELFSHAVEN H 0000
- Kadastrale kaart
- Eigendomssituatie
- Volle eigendom
Buitenruimte
- Ligging
- In woonwijk
- Balkon/dakterras
- Balkon aanwezig
Parkeergelegenheid
- Soort parkeergelegenheid
- Betaald parkeren, openbaar parkeren en parkeervergunningen
VvE checklist
- Inschrijving KvK
- Ja
- Jaarlijkse vergadering
- Ja
- Periodieke bijdrage
- Ja (€ 102,00 per maand)
- Reservefonds aanwezig
- Ja
- Onderhoudsplan
- Ja
- Opstalverzekering
- Ja
Foto's 46
Plattegronden 3
© 2001-2025 funda
















































