
Omschrijving
Ervaar de charme van deze fijne bovenwoning met twee verdiepingen en een ruim dakterras.
Dit appartement, onderdeel van een Rijksmonument is een karakteristieke woning waarbij veel authentieke details zoals glas-in-lood ramen, ensuite deuren, origineel plafond en paneeldeuren zijn behouden gebleven. Gelegen nabij de Lusthof, biedt dit appartement de perfecte balans tussen een historisch look en modern comfort. Kom snel langs en ontdek zelf de bijzondere sfeer van deze woning.
Kralingen
Aan het mooiste gedeelte van de Honingerdijk, bieden wij een royaal, karakteristiek dubbel bovenhuis aan met een ruim en waanzinnig dakterras. Deze bovenwoning is ca. 109 m2. Zeer centraal gelegen in een gewild gedeelte van Kralingen dichtbij de statige Sint Lambertuskerk. Tegenover de Trompenburg Tuinen & Arboretum en op loopafstand zijn diverse winkels o.a. aan de Lusthoflaan, maar ook horecagelegenheden, de Erasmus Universiteit en diverse recreatiemogelijkheden op of rond de Kralingse Plas en -Bos. Uitvalsweg A16 op slechts een enkele kilometer afstand te bereiken.
2e verdieping
Entree, overloop, WC met fonteintje
Zeer ruime woon/eetkamer ensuite ca. 12.50 x 3.85 met prachtige parketvloer, glas-in-lood, schuifdeuren, inbouwkasten, schouw en voor- en achter vrij uitzicht
Keuken ca. 3.20 x 1.90 met eiken vloer, diverse inbouwapparatuur, en met deur naar het balkon
Balkon I ca. 1.90 x 1.20 gelegen aan de achterzijde met vrij uitzicht
Slaapkamer I ca. 2.30 x 1.90 gelegen aan de voorzijde met inbouwkast
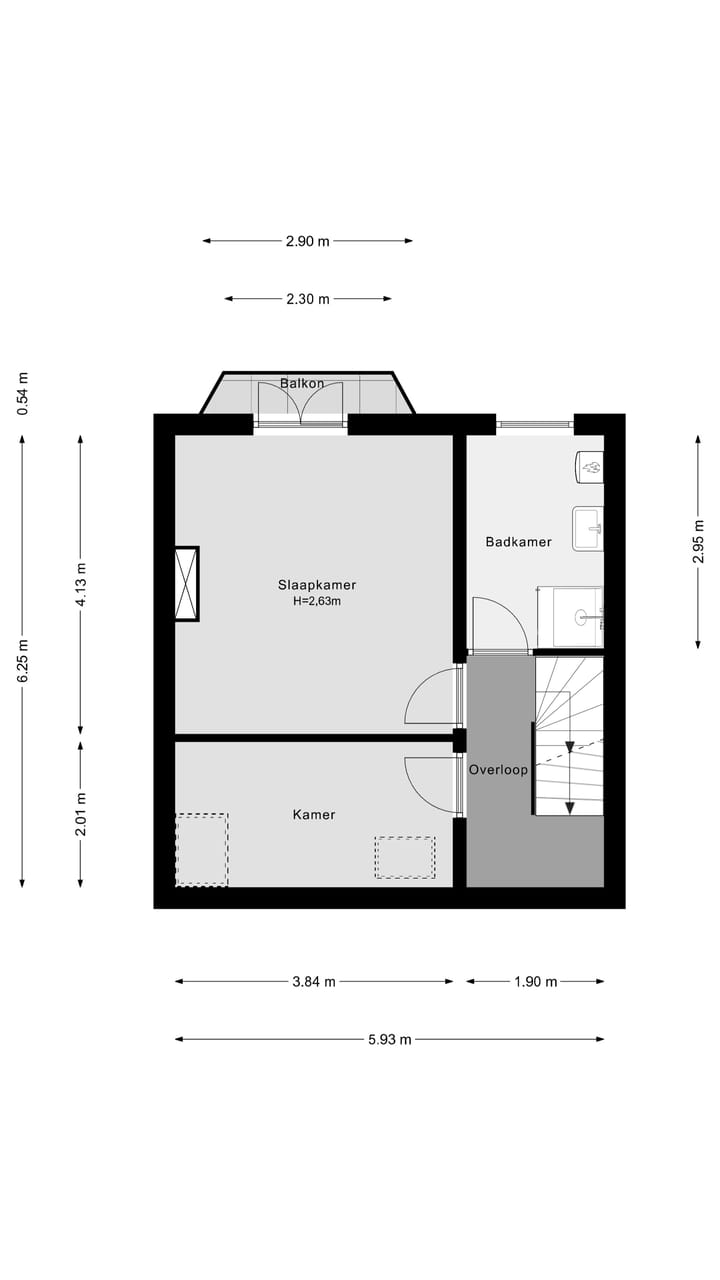
3e verdieping
Overloop met trap naar het dakterras ca. 4.85 x 4.50
Slaapkamer II ca. 4.15 x 3.85 en dubbel openslaande deuren naar balkon II.
Balkon II ca. 2.30 x 0.55 met vrij uitzicht gelegen aan de voorzijde.
Badkamer ca. 2.95 x 1.90 voorzien van douche, wastafelmeubel, wasmachineaansluiting en cv-opstelplaats.
Slaapkamer III ca. 3.85 x 2.00
Bijzonderheden
Bouwjaar: 1930
Woonoppervlakte: 109 m2
Vol eigendom
Ruim ca 22 m2 groot dakterras
Verwarming en warm water Nefit HR combi 2015
Rijksmonument
VvE bedraagt € 130,-- per maand
Verbouwing van dakterras gedaan in 2022
Glasvezel internet aanwezig
Energielabel vrijstelling
Honingerdijk:
De Honingerdijk loopt ten zuiden van het Park Honingen. Vroeger heette deze straat Hoge Zeedijk. De naam Honingen komt in 1297 al voor. Het was het huis van de heren van Kralingen. In 1426 is het kasteel op last van de stad Rotterdam gesloopt opdat de Hoekse troepen geen gelegenheid zouden hebben zich daarin te verschansen. Volgens de kroniekschrijver Simon van der Sluys werd het slot in 1462 weer opgebouwd. Het was omringd door een grote vijver, die door een watering en een sluis met de Maas was verbonden, en een bos. Men sprak in die tijd van de Honinger Sluis en het Honinger Bos. Lumey heeft in 1573 enige tijd op het slot gevangen gezeten. Nadat het gebouw tot een ruïne was vervallen, werd het in 1672 op last van de regering van Rotterdam gesloopt. De grond werd daarop in erfpacht en met recht van opstal uitgegeven aan particulieren. Hierop verrees een nieuw herenhuis, dat ook de naam Slot Honingen kreeg. In 1874 kocht de gemeente Kralingen het terrein met de opstallen. Onder de naam Park Honingen werd het ingericht als openbare wandelplaats en villapark. De Honingerdijk loopt ten zuiden van het Park Honingen. Voordien heette deze Hoge Zeedijk. De naam Honingen is een verbastering van hoge(n) ingen, dat 'hoge grond' betekent.
Huis kopen? Neem uw eigen NVM-makelaar mee!’
Deze informatie is met zorg samengesteld, maar voor de juistheid ervan kan geen aansprakelijkheid worden aanvaard, noch kan aan de vermelde gegevens enig recht worden ontleend. Nadrukkelijk is vermeld dat deze informatieverstrekking niet als een aanbieding of offerte mag worden beschouwd.
Kenmerken
Overdracht
- Laatste vraagprijs
- € 500.000 kosten koper
- Vraagprijs per m²
- € 4.587
- Status
- Verkocht
- Bijdrage VvE
- € 130,00 per maand
Bouw
- Soort appartement
- Bovenwoning (appartement)
- Soort bouw
- Bestaande bouw
- Bouwjaar
- 1930
- Specifiek
- Monumentaal pand
- Soort dak
- Plat dak bedekt met bitumineuze dakbedekking
Oppervlakten en inhoud
- Gebruiksoppervlakten
- Wonen
- 109 m²
- Gebouwgebonden buitenruimte
- 26 m²
- Inhoud
- 374 m³
Indeling
- Aantal kamers
- 5 kamers (3 slaapkamers)
- Aantal badkamers
- 1 badkamer en 1 apart toilet
- Badkamervoorzieningen
- Douche en wastafelmeubel
- Aantal woonlagen
- 2 woonlagen
- Voorzieningen
- Natuurlijke ventilatie en TV kabel
- Gelegen op
- 3e woonlaag
Energie
- Energielabel
- Niet beschikbaar
- Isolatie
- Gedeeltelijk dubbel glas
- Verwarming
- Cv-ketel
- Warm water
- Cv-ketel
- Cv-ketel
- Nefit Proline NXT HRC 24/CW4 (gas gestookt combiketel uit 2015, eigendom)
Kadastrale gegevens
- KRALINGEN D 9477
- Kadastrale kaart
- Eigendomssituatie
- Volle eigendom
Buitenruimte
- Ligging
- Aan drukke weg, in woonwijk en vrij uitzicht
- Tuin
- Zonneterras
- Zonneterras
- 22 m² (5,84 meter diep en 4,87 meter breed)
- Ligging tuin
- Gelegen op het zuiden
- Balkon/dakterras
- Balkon aanwezig
Parkeergelegenheid
- Soort parkeergelegenheid
- Betaald parkeren en parkeervergunningen
VvE checklist
- Inschrijving KvK
- Ja
- Jaarlijkse vergadering
- Ja
- Periodieke bijdrage
- Ja (€ 130,00 per maand)
- Reservefonds aanwezig
- Ja
- Onderhoudsplan
- Ja
- Opstalverzekering
- Ja
Foto's 24
© 2001-2026 funda























