
Omschrijving
Charmant en karakteristiek bovenhuis met luxe afwerking in een klassiek pand met trapgevel.
Aan één van de mooiste lanen van Kralingen bieden wij dit compleet gerenoveerde bovenhuis aan, verdeeld over twee verdiepingen en voorzien van een eigen opgang vanaf de begane grond. Jericholaan 94 A combineert de charme van een monumentale gevel en diverse authentieke details uit 1902 met het comfort van modern wonen: een luxe woonkeuken, stijlvolle badkamer, twee slaapkamers én een werkkamer. De woning beschikt over een zonnig terras aan de achterzijde.
Met een woonoppervlakte van circa 108 m² is dit een bijzonder smaakvol bovenhuis waar met zorg en oog voor detail is gerenoveerd. Alle installaties zijn vernieuwd en de woning beschikt over een nieuwe cv-ketel. Klaar voor de toekomst, maar met behoud van karakter.
Gelegen op een toplocatie in het geliefde Kralingen, op loopafstand van het Kralingse Bos en de Kralingse plas, diverse gezellige horeca gelegenheden, winkels en openbaar vervoer.
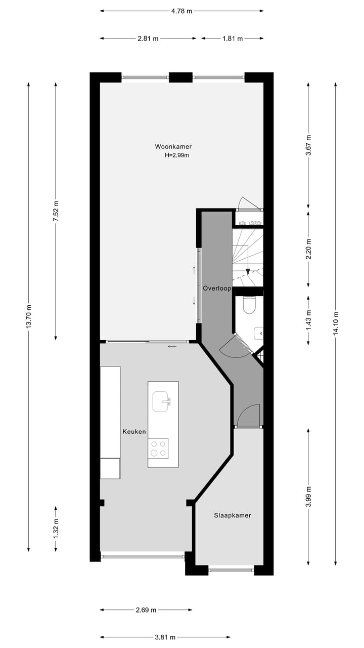
Indeling
Begane grond
Eigen entree aan de straatzijde, hal met trapopgang naar de eerste verdieping.
Eerste verdieping
Ruime overloop met toegang tot het moderne toilet voorzien van wandcloset en fontein. Aan de voorzijde bevindt zich de werkkamer, ideaal voor thuiswerken. De royale L-vormige woonkamer heeft een speelse indeling en fraaie lichtinval. De originele glas-in-lood schuifseparatie leidt naar de luxe woonkeuken aan de achterzijde. Deze is uitgevoerd met een centraal kookeiland, hoogwaardige inbouwapparatuur en een gezellige ontbijthoek.
Tweede verdieping
Ruime overloop met toegang tot alle vertrekken. De stijlvolle badkamer is uitgerust met een vrijstaand bad, inloopdouche, dubbele wastafelmeubel en een tweede toilet. Tevens bevindt zich hier een aparte wasruimte met cv-opstelling. Aan de achterzijde ligt de ruime hoofdslaapkamer met openslaande deuren naar het zonnige terras. Aan de voorzijde is de tweede slaapkamer gesitueerd.
Bijzonderheden
- Woonoppervlakte ca. 108 m²
- Eigen grond
- Compleet en smaakvol gerenoveerd
- Luxe keuken en badkamer
- Twee ruime slaapkamers en een werkkamer
- Terras aan de achterzijde (zuidoost)
- Gelegen in karakteristiek pand met trapgevel uit 1902
- Gelegen aan een statige, lommerrijke laan in Kralingen
- Actieve VvE
- Oplevering in overleg
Wij zijn de makelaar van de verkoper. Wij adviseren u uw eigen makelaar mee te nemen voor uw belangenbehartiging bij de aankoop van uw toekomstig huis.
Aan deze aanbieding kunnen geen rechten worden ontleend.
Kenmerken
Overdracht
- Laatste vraagprijs
- € 595.000 kosten koper
- Vraagprijs per m²
- € 5.509
- Status
- Verkocht
Bouw
- Soort appartement
- Bovenwoning (appartement)
- Soort bouw
- Bestaande bouw
- Bouwjaar
- 1902
- Soort dak
- Zadeldak bedekt met pannen
Oppervlakten en inhoud
- Gebruiksoppervlakten
- Wonen
- 108 m²
- Gebouwgebonden buitenruimte
- 3 m²
- Inhoud
- 386 m³
Indeling
- Aantal kamers
- 4 kamers (3 slaapkamers)
- Aantal badkamers
- 1 badkamer en 1 apart toilet
- Badkamervoorzieningen
- Dubbele wastafel, inloopdouche, ligbad, toilet, en wastafelmeubel
- Aantal woonlagen
- 2 woonlagen
- Voorzieningen
- Glasvezelkabel, mechanische ventilatie, en natuurlijke ventilatie
- Gelegen op
- 2e woonlaag
Energie
- Energielabel
- Isolatie
- Dakisolatie, dubbel glas en muurisolatie
- Verwarming
- Cv-ketel
- Warm water
- Cv-ketel
- Cv-ketel
- Remeha HR (gas gestookt combiketel uit 2020, eigendom)
Kadastrale gegevens
- KRALINGEN G 5807
- Kadastrale kaart
- Eigendomssituatie
- Volle eigendom
Buitenruimte
- Ligging
- In bosrijke omgeving, in centrum en in woonwijk
- Balkon/dakterras
- Balkon aanwezig
Bergruimte
- Schuur/berging
- Inpandig
- Voorzieningen
- Elektra en verwarming
Parkeergelegenheid
- Soort parkeergelegenheid
- Betaald parkeren en parkeervergunningen
VvE checklist
- Inschrijving KvK
- Nee
- Jaarlijkse vergadering
- Nee
- Periodieke bijdrage
- Nee
- Reservefonds aanwezig
- Nee
- Onderhoudsplan
- Nee
- Opstalverzekering
- Nee
Foto's 36
© 2001-2026 funda



































