
Omschrijving
Kortekade 97 B – Modern, stijlvol en royaal wonen in Kralingen
Aan een van de charmantste lanen van Kralingen staat deze bijzonder smaakvolle, drie-laagse benedenwoning met tuin en balkon. De woning is recent, in 2021, met oog voor detail verbouwd en samengevoegd tot één stijlvol woonhuis met een woonoppervlak van circa 140 m². Dankzij de hoogwaardige afwerking, doordachte indeling en sfeervolle details is het huis werkelijk zo te betrekken.
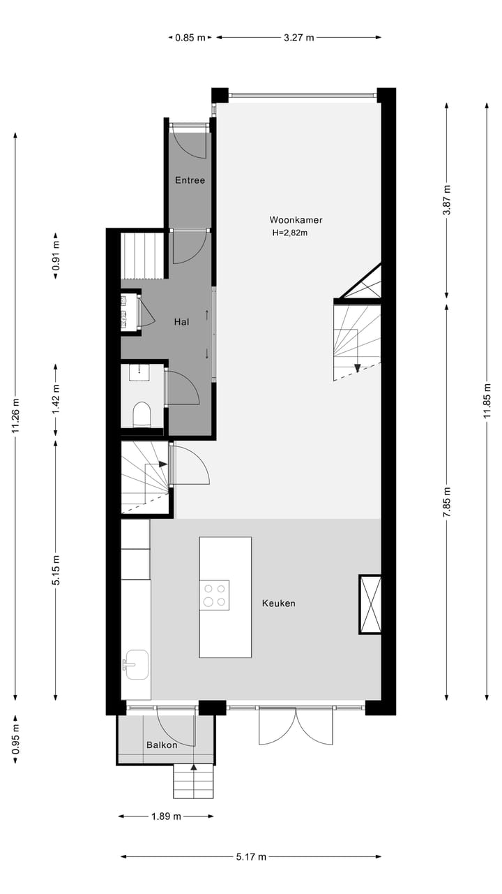
Woonlaag met tuin – licht, ruimte en moderne luxe
De begane grond biedt een ruime en lichte woonkamer met een eigentijdse woonkeuken. De keuken is voorzien van een kookeiland en moderne inbouwapparatuur, en heeft direct toegang tot de diepe tuin van circa 10 meter. Tevens bevinden zich hier een kelder met cv-installatie en opbergruimte, een hal, een moderne toiletruimte en de meterkast.
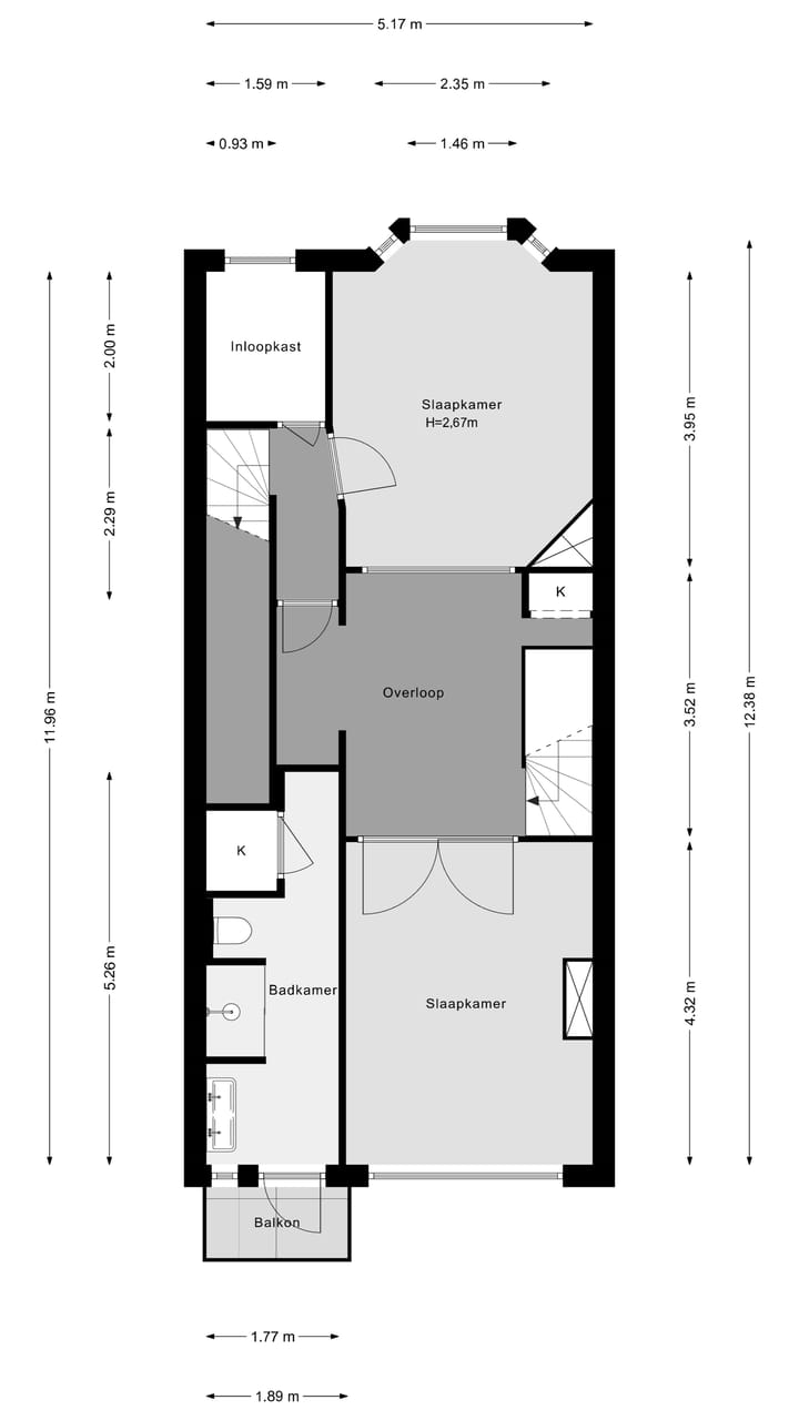
Comfortabele slaapverdieping
De eerste verdieping herbergt twee grote slaapkamers, een royale overloop met inloopkast en een nieuwe, luxe badkamer (gerealiseerd in 2025). Hier is volop ruimte en comfort voor een gezin of gasten.
Extra woonlaag – flexibel in te delen
De tweede verdieping vormt een extra woonlaag, ideaal als zelfstandige ruimte met een ruime slaapkamer,. inloopkast en complete badkamer, voor een au pair, een thuiswerkplek of logeerverdieping. De aanwezigheid van het balkon zorgt voor een fijne buitenplek met uitzicht op de groene omgeving.
Bijzonderheden en details
- Vlakbij het Kralingse Bos en de Plas
- Woonoppervlakte circa 140 m²
- Dubbel glas, deels HR-glas en karakteristieke glas-in-looddetails
- Actieve VvE met een bijdrage van € 177,- per maand
- Oplevering in overleg, kan nog dit jaar
- Energielabel D
Kortekade 97 B is een woning die luxe combineert met karakter, gelegen in een van de meest geliefde wijken van Rotterdam
Wij zijn de makelaar van de verkoper. Wij adviseren je om jouw eigen makelaar mee te nemen voor jouw belangenbehartiging bij de aankoop.
Nadrukkelijk zij vermeld dat deze informatieverstrekking niet als aanbieding of offerte mag worden beschouwd. Aan deze gegevens kunnen geen rechten worden ontleend. De opgegeven oppervlakten en maten zijn indicatief.
Kenmerken
Overdracht
- Laatste vraagprijs
- € 695.000 kosten koper
- Vraagprijs per m²
- € 4.929
- Status
- Verkocht
- Bijdrage VvE
- € 177,00 per maand
Bouw
- Soort appartement
- Dubbel benedenhuis (bel-etage)
- Soort bouw
- Bestaande bouw
- Bouwjaar
- 1935
- Specifiek
- Beschermd stads- of dorpsgezicht, dubbele bewoning aanwezig en dubbele bewoning mogelijk
- Soort dak
- Samengesteld dak
Oppervlakten en inhoud
- Gebruiksoppervlakten
- Wonen
- 141 m²
- Overige inpandige ruimte
- 12 m²
- Gebouwgebonden buitenruimte
- 9 m²
- Externe bergruimte
- 8 m²
- Inhoud
- 536 m³
Indeling
- Aantal kamers
- 6 kamers (3 slaapkamers)
- Aantal badkamers
- 2 badkamers en 1 apart toilet
- Badkamervoorzieningen
- Inloopdouche, toilet, wastafelmeubel, douche, ligbad, en wastafel
- Aantal woonlagen
- 3 woonlagen
- Voorzieningen
- Natuurlijke ventilatie
- Gelegen op
- 1e woonlaag
Energie
- Energielabel
- D
- Isolatie
- Dubbel glas, HR-glas en vloerisolatie
- Verwarming
- Cv-ketel
- Warm water
- Cv-ketel
- Cv-ketel
- Remeha Avanta (gas gestookt combiketel uit 2018, eigendom)
Kadastrale gegevens
- KRALINGEN D 9564
- Kadastrale kaart
- Eigendomssituatie
- Volle eigendom
Buitenruimte
- Ligging
- In woonwijk
- Tuin
- Achtertuin
- Achtertuin
- 60 m² (10,00 meter diep en 6,00 meter breed)
- Ligging tuin
- Gelegen op het oosten bereikbaar via achterom
- Balkon/dakterras
- Dakterras aanwezig en balkon aanwezig
Bergruimte
- Schuur/berging
- Vrijstaande houten berging
Parkeergelegenheid
- Soort parkeergelegenheid
- Parkeervergunningen
VvE checklist
- Inschrijving KvK
- Ja
- Jaarlijkse vergadering
- Ja
- Periodieke bijdrage
- Ja (€ 177,00 per maand)
- Reservefonds aanwezig
- Ja
- Onderhoudsplan
- Nee
- Opstalverzekering
- Ja
Foto's 55
© 2001-2025 funda






















































