
Omschrijving
Sfeervolle 2-kamer bovenwoning van 50 m2, gelegen in de populaire wijk Bergpolder! Dit stijlvolle appartement is perfect voor wie op zoek is naar een gezellige en lichte leefruimte. Het appartement beschikt over een ruime woonkamer met half open keuken, een ruime slaapkamer en een balkon op het zuidoosten! Daarnaast is het centrum binnen enkele minuten bereikbaar. Hier kunt u genieten van de groene omgeving en toch snel toegang hebben tot het stadsleven. Albert Heijn, diverse delicatessenwinkels, openbaar vervoer en snelwegen naar Amsterdam en Utrecht zijn allemaal in de directe omgeving te vinden. Met de fiets bereikt u het stadscentrum binnen slechts 5 minuten.
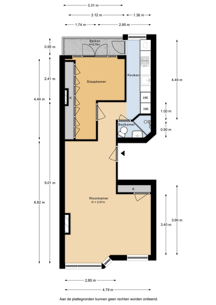
Indeling:
Afgesloten trapopgang met trap naar de 1e verdieping.
1e verdieping:
Je betreedt de woning in het woonkamer met half open keuken. De woonkamer is gelegen aan de voorzijde van de woning. Door de indeling heb je hier een gezellige knusse zithoek, en voldoende ruimte voor een eettafel. Door de grote raampartijen treedt er veel licht de woning binnen. Het glas-in-lood geeft de ruimte een karakteristieke uitstraling. De half open keuken is voorzien van diverse inbouwapparatuur, zoals een 4-pits gasfornuis, oven, afzuigkap, vaatwasser en koel-/vriescombinatie. De keuken geeft toegang tot het balkon op het zonnige zuidoosten! Hier kun je heerlijk genieten van de ochtend-/begin middagzon. Via de woonkamer betreed je de ruime slaapkamer aan de achterzijde. Ook via de slaapkamer heb je middels de openslaande deuren toegang tot het balkon. De volledig betegelde badkamer beschikt over een douche, wastafel en toilet.
Bijzonderheden:
-Bouwjaar 1933
-Eigen grond
-Woonoppervlakte 50 m2
-Balkon op het zuidoosten
-Actieve VvE met een maandelijkse bijdrage van € 160,-
-Verwarming en warm water middels CV-ketel
-Instapklaar en praktische indeling
-Gelegen in een gebied dat is aangewezen als beschermd stads-/dorpsgezicht
-In de koopakte zal gezien het bouwjaar een ouderdoms- en funderingclausule worden opgenomen
Oplevering:
-In overleg
Wil je als eerste op de hoogte zijn van ons aanbod?
Volg ons op Instagram @vandevijver_makelaardij of TikTok @vandevijvermakelaardij
Wist je dat we van deze woning ook een Reel hebben gemaakt, welke je kunt bekijken op ons Instagram account? @vandevijver_makelaardij
Oplevering:
-In overleg
vandeVijver Makelaardij behartigt de belangen van de verkopende partij, schakel uw eigen aankoopmakelaar in.
Bovenstaande presentatie is niet meer dan een uitnodiging tot het doen van een bod, er kunnen geen rechten of verplichtingen aan worden ontleend.
Kenmerken
Overdracht
- Laatste vraagprijs
- € 275.000 kosten koper
- Vraagprijs per m²
- € 5.500
- Status
- Verkocht
- Bijdrage VvE
- € 160,00 per maand
Bouw
- Soort appartement
- Tussenverdieping
- Soort bouw
- Bestaande bouw
- Bouwjaar
- 1933
- Specifiek
- Beschermd stads- of dorpsgezicht
- Soort dak
- Plat dak bedekt met bitumineuze dakbedekking
Oppervlakten en inhoud
- Gebruiksoppervlakten
- Wonen
- 50 m²
- Gebouwgebonden buitenruimte
- 3 m²
- Inhoud
- 176 m³
Indeling
- Aantal kamers
- 2 kamers (1 slaapkamer)
- Aantal badkamers
- 1 badkamer en 1 apart toilet
- Badkamervoorzieningen
- Douche, inloopdouche, toilet, wastafel, en wastafelmeubel
- Aantal woonlagen
- 1 woonlaag
- Voorzieningen
- Glasvezelkabel, natuurlijke ventilatie, en TV kabel
- Gelegen op
- 1e woonlaag
Energie
- Energielabel
- D
- Verwarming
- Cv-ketel
- Warm water
- Cv-ketel
- Cv-ketel
- 2016, eigendom
Kadastrale gegevens
- ROTTERDAM AB 2409
- Kadastrale kaart
- Eigendomssituatie
- Volle eigendom
Buitenruimte
- Ligging
- In woonwijk
- Balkon/dakterras
- Balkon aanwezig
Bergruimte
- Schuur/berging
- Box
Parkeergelegenheid
- Soort parkeergelegenheid
- Betaald parkeren en parkeervergunningen
VvE checklist
- Inschrijving KvK
- Ja
- Jaarlijkse vergadering
- Ja
- Periodieke bijdrage
- Ja (€ 160,00 per maand)
- Reservefonds aanwezig
- Ja
- Onderhoudsplan
- Ja
- Opstalverzekering
- Ja
Foto's 32
© 2001-2025 funda































