
Omschrijving
KLUSSER OPGELET! Dit 3-kamer appartement aan het water van "de Schie" is een echte kans voor iedereen die op zoek is naar een appartement waar je alle geheel naar eigen wens kan renoveren! De woning is voorzien van kunststof kozijnen en dubbel glas. Lijkt het jou geweldig om geheel naar eigen smaak en stijl je eigen appartement te verwezenlijken? Boek dan snel een bezichtiging en laat je fantasie erop los!
Locatie:
Gelegen in een leuke wijk in Rotterdam. Naast dat het op loopafstand gelegen is van historisch Delfshaven, vindt je een ruime aanbod aan leuke restaurants, winkels, parken en vele andere voorzieningen. Denk bijvoorbeeld de lokale toko in de straat en aan Stadsbrouwerij De Pelgrim of een van de leuke restaurantjes aan de historische haven.
Het is een kindvriendelijke en betrekkelijk rustige buurt met relatief veel gezinnen. Eveneens is deze woning goed gesitueerd ten opzichte van het openbaar vervoer en diverse uitvalswegen.
Indeling:
Begane grond:
Gedeelde trap naar eerste verdieping. Vanaf eerste verdieping eigen entree en trap naar tweede verdieping.
2e verdieping:
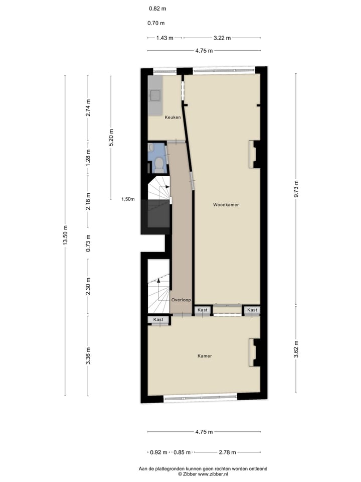
Entree in de overloop met separaat toilet, toegang tot woonkamer, toegang tot keuken en interne trap naar 2e verdieping. De woonkamer is gelegen aan de achterzijde met zicht op het water. Aan de voorzijde bevindt zich een aparte ruimte welke gebruikt kan worden als werkruimte of slaapkamer. De dichte keuken is basic en gelegen aan de achterzijde. Deze is voorzien van recht keukenblok.
3e verdieping:
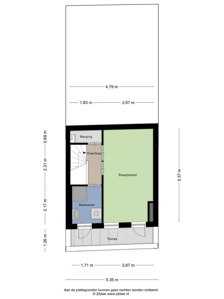
Middels een interne trap entree op de overloop met toegang tot de slaapkamer en badkamer. De slaapkamer is gelegen aan de voorzijde en geeft toegang tot het balkon op het westen. Er bevindt zich een aparte berghok met cv-instalatie op de overloop.
De badkamer is voorzien van douche, wastafel, machineaansluiting. Het balkon is tevens via de badkamer toegankelijk.
Bijzonderheden:
- Wonen aan het water;
- Er geldt een zelfbewoningsplicht van 5 jaar (niet verkoper of verhuren);
- Woning is gelegen op eigen grond;
- Voorzien van dubbel glas en kunststof kozijnen;
- Verwarming en warm water middels cv-installatie (Intergas/2015)
- Actieve VvE; bijdrage ca. € 161,41 per maand (MJOP aanwezig);
- Woning is gelegen in een energietransitie gebied. Mogelijk wordt in 2026 stadsverwarming gerealiseerd en wordt de woning gasloos. In de koopovereenkomst wordt hiervoor een extra artikel opgenomen.
- Er zal in de koopovereenkomst een ouderdoms-, asbest- en een niet zelfbewoningsclausule worden opgenomen;
- Transport vindt plaats bij projectnotaris;
- Voorzien van Havensteder Koopzeker label;
- Oplevering per direct.
BIEDLOGBOEK
Makelaars zijn wettelijk verplicht een biedlogboek bij te houden bij de verkoop van bestaande woningen. Biedingen kunt u, indien gewenst, nog steeds mondeling met ons bespreken maar dient u daarna digitaal aan ons te bevestigen via uw MOVE-account.
De Meetinstructie is bedoeld om een meer eenduidige manier van meten toe te passen voor het geven van een indicatie van de gebruiksoppervlakte. De Meetinstructie sluit verschillen in meetuitkomsten niet volledig uit, door bijvoorbeeld interpretatieverschillen, afrondingen of beperkingen bij het uitvoeren van de meting.
Bovenstaande presentatie is niet meer dan een uitnodiging tot het doen van een bod, er kunnen geen rechten of verplichtingen aan worden ontleend.
Voorberg NVM Makelaars behartigt de belangen van de verkopende partij, schakel je eigen NVM aankoopmakelaar in.
Kenmerken
Overdracht
- Aangeboden sinds
- Aanvaarding
- In overleg
- Vraagprijs
- € 298.000 kosten koper
- Vraagprijs per m²
- € 3.425
- Status
- Verkocht onder voorbehoud
- Bijdrage VvE
- € 161,41 per maand
Bouw
- Soort appartement
- Bovenwoning (appartement)
- Soort bouw
- Bestaande bouw
- Bouwjaar
- 1934
- Specifiek
- Kluswoning
- Soort dak
- Zadeldak bedekt met pannen
Oppervlakten en inhoud
- Gebruiksoppervlakten
- Wonen
- 87 m²
- Gebouwgebonden buitenruimte
- 5 m²
- Inhoud
- 287 m³
Indeling
- Aantal kamers
- 3 kamers (2 slaapkamers)
- Aantal badkamers
- 1 badkamer en 1 apart toilet
- Badkamervoorzieningen
- Douche en wastafel
- Aantal woonlagen
- 2 woonlagen
- Voorzieningen
- Natuurlijke ventilatie en TV kabel
- Gelegen op
- 2e woonlaag
Energie
- Energielabel
- C
- Isolatie
- Dubbel glas
- Verwarming
- Cv-ketel
- Warm water
- Cv-ketel
- Cv-ketel
- Intergas (gas gestookt combiketel uit 2015, eigendom)
Kadastrale gegevens
- DELFSHAVEN H 4755
- Kadastrale kaart
- Eigendomssituatie
- Volle eigendom
Buitenruimte
- Ligging
- Aan rustige weg, aan water, in woonwijk en vrij uitzicht
- Balkon/dakterras
- Balkon aanwezig
Parkeergelegenheid
- Soort parkeergelegenheid
- Betaald parkeren en parkeervergunningen
VvE checklist
- Inschrijving KvK
- Ja
- Jaarlijkse vergadering
- Ja
- Periodieke bijdrage
- Ja (€ 161,41 per maand)
- Reservefonds aanwezig
- Ja
- Onderhoudsplan
- Ja
- Opstalverzekering
- Ja
Foto's 22
© 2001-2025 funda





















