
Omschrijving
Prachtig 3-kamer hoekappartement met maar liefst 106 m² woonoppervlak en een geweldig terras van bijna 21 m² gelegen op de 3e verdieping van een zeer hoogwaardig en duurzaam appartementengebouw. De woning heeft een breed terras, een riante hoofdslaapkamer + een studeerkamer en een eigen parkeerplaats in de onderliggende afgesloten parkeergarage. De 2e parkeerplaats wordt separaat aangeboden.
Dit riante appartement met prachtige lichtinval, is recent opgeleverd waarbij alle luxe is verwerkt. Denk hierbij aan een hoogwaardige op maat gemaakte keuken, vaste kasten, een gewijzigde indeling, glazen separatie tussen gang en woonkamer en meer.
Project Prinsenpark is een prachtige toevoeging geworden aan de aantrekkelijke en groene wijk Prinsenland, op 10 minuten van het centrum van Rotterdam. De woningen in Prinsenpark zijn gebouwd met oog voor kwaliteit en duurzaamheid. Het ontwerp, de ruime opzet en het gebruik van hoogwaardige materialen geven het geheel een luxe uitstraling.
Prinsenpark heeft nog meer geweldige kenmerken. De buurt is omgeven door groen en heeft uitstekende voorzieningen, waaronder diverse winkels en een gezondheidscentrum. Bovendien is de locatie zeer gunstig ten opzichte van het centrum van Rotterdam en andere belangrijke steden in de regio.
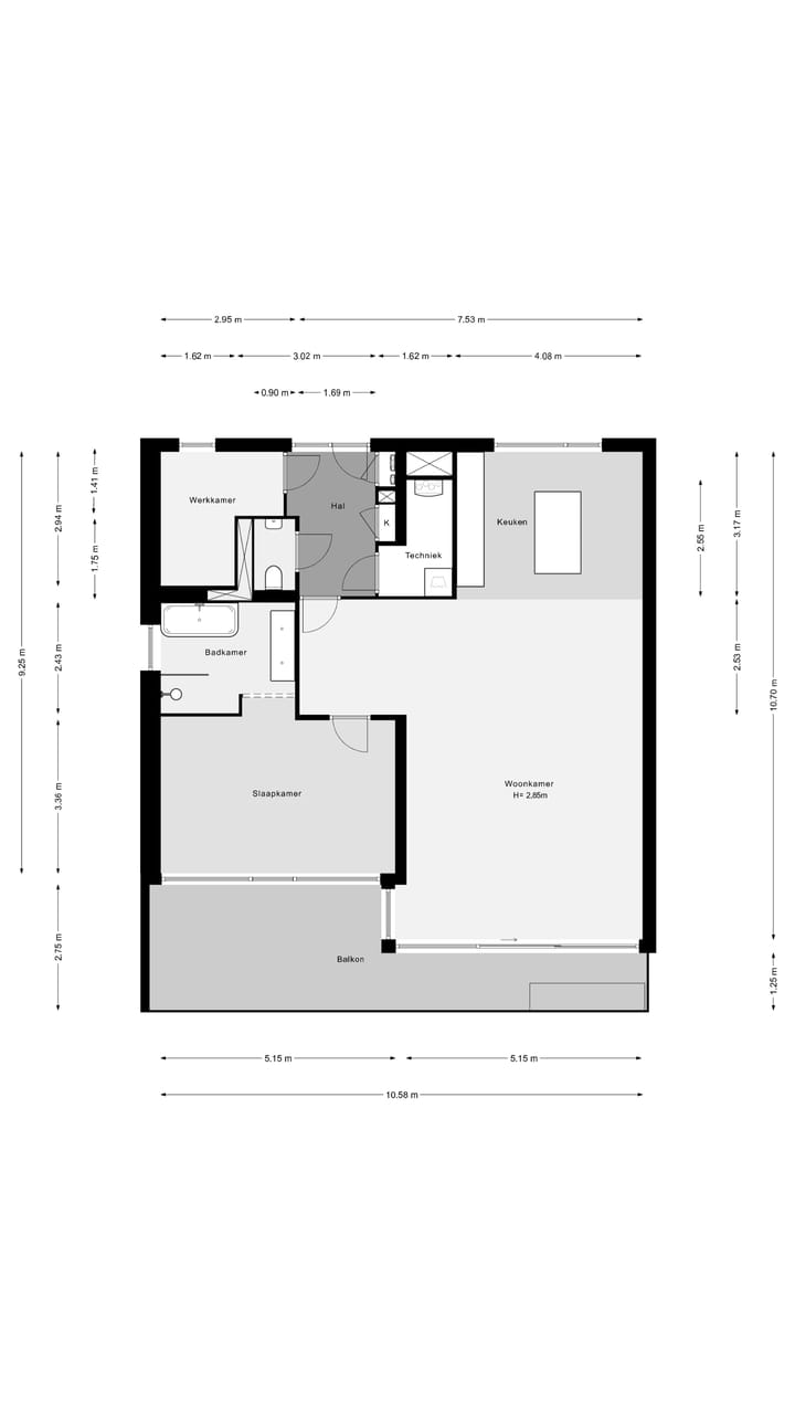
Indeling
Begane grond
Luxe en royale centrale entree met liften, brievenbussen en toegang naar de garage en fietsenstalling.
Derde verdieping
Entree, gang met garderoberuimte en toilet.
Zijkamer aan de voorzijde, vergroot met een deel van de gang. Dit is een plezierige studeerkamer.
De stijlvolle glazen pui geeft toegang tot de zeer royale en lichte woonkamer. Door grote raampartijen is het royale terras onderdeel van de woonkamer. De luxe open keuken met kookeiland, voorzien van alle gemak en luxe inbouwapparatuur, is gelegen aan de galerijzijde. Zeer smaakvol. Een keuken voor de echte kookliefhebbers.
De zitkamer aan de terraszijde heeft een royale opstelling. De schuifpui geeft toegang tot het prachtige terras. Een hele fijne plek om te dineren of heerlijk te ontspannen.
De hoofdslaapkamer, tevens met toegang tot het terras, heeft een op maat gemaakte vaste kastenwand en toegang tot de badkamer. Deze badkamer heeft het niveau van een luxe hotel. Zeer smaakvol en voorzien van een bad, inloopdouche en dubbele wastafel.
Kortom; luxe en comfort, prachtige buitenruimte en eigen parkeergelegenheid.
Het complex heeft een fantastische ontwerp, een geweldige locatie, omgeven door groen en op loopafstand van alle voorzieningen.
Bijzonderheden:
-Energielabel A
-Elektrische screens aan de voorzijde
-Overal vloerverwarming en koeling
-Eigen grond
-Luxe badkamer en toiletruimte
-Riante hoofdslaapkamer met vaste kastenwand + een studeerkamer
-Fantastisch terras
-Zeer duurzaam en luxe gebouw
-Zonnepanelen aanwezig
-Warmtelevering via Vaanster (warmtepomp)
-Laadplekken in de garage voor opladen elektrische auto's
-Gezamenlijke fietsenstalling
-Plafondhoogte van 286 cm
Details:
-Bouwjaar 2023/2024
-Actieve en professioneel georganiseerde VVE bijdrage circa € 273,- per maand
-2e parkeerplaats apart te koop voor € 30.000,- kosten koper
Wij zijn de makelaar van de verkoper. Wij adviseren je jouw eigen makelaar mee te nemen voor de belangenbehartiging bij de aankoop van je toekomstig huis.
Aan deze aanbieding kunnen geen rechten worden ontleend.
Kenmerken
Overdracht
- Laatste vraagprijs
- € 649.000 kosten koper
- Vraagprijs per m²
- € 6.123
- Status
- Verkocht
- Bijdrage VvE
- € 273,00 per maand
Bouw
- Soort appartement
- Galerijflat (appartement)
- Soort bouw
- Bestaande bouw
- Bouwjaar
- 2024
- Soort dak
- Plat dak bedekt met bitumineuze dakbedekking
- Toegankelijkheid
- Toegankelijk voor mensen met een beperking en toegankelijk voor ouderen
Oppervlakten en inhoud
- Gebruiksoppervlakten
- Wonen
- 106 m²
- Gebouwgebonden buitenruimte
- 21 m²
- Externe bergruimte
- 25 m²
- Inhoud
- 373 m³
Indeling
- Aantal kamers
- 3 kamers (2 slaapkamers)
- Aantal badkamers
- 1 badkamer en 1 apart toilet
- Badkamervoorzieningen
- Dubbele wastafel, inloopdouche, ligbad, en vloerverwarming
- Aantal woonlagen
- 1 woonlaag
- Voorzieningen
- Buitenzonwering, glasvezelkabel, lift, mechanische ventilatie, schuifpui, TV kabel, en zonnepanelen
- Gelegen op
- 3e woonlaag
Energie
- Energielabel
- Isolatie
- Volledig geïsoleerd
- Verwarming
- Gehele vloerverwarming, warmte terugwininstallatie en warmtepomp
- Warm water
- Centrale voorziening
Kadastrale gegevens
- KRALINGEN K 3030
- Kadastrale kaart
- Eigendomssituatie
- Volle eigendom
- KRALINGEN K 3030
- Kadastrale kaart
- Eigendomssituatie
- Volle eigendom
- KRALINGEN K 3030
- Kadastrale kaart
- Eigendomssituatie
- Volle eigendom
Buitenruimte
- Ligging
- In woonwijk en vrij uitzicht
- Tuin
- Zonneterras
- Zonneterras
- 21 m² (2,75 meter diep en 10,58 meter breed)
- Ligging tuin
- Gelegen op het zuidwesten
- Balkon/dakterras
- Balkon aanwezig
Garage
- Soort garage
- Inpandig en parkeerkelder
- Capaciteit
- 2 auto's
- Voorzieningen
- Elektrische deur en elektra
Parkeergelegenheid
- Soort parkeergelegenheid
- Op afgesloten terrein en openbaar parkeren
VvE checklist
- Inschrijving KvK
- Ja
- Jaarlijkse vergadering
- Ja
- Periodieke bijdrage
- Ja (€ 273,00 per maand)
- Reservefonds aanwezig
- Ja
- Onderhoudsplan
- Ja
- Opstalverzekering
- Ja
Foto's 45
© 2001-2026 funda












































