
Omschrijving
Sfeervolle bovenwoning in Hillegersberg – Nieuwe Kerkstraat 89B
Op zoek naar een karaktervolle woning in het hart van het gewilde Hillegersberg? Deze sfeervolle bovenwoning van 96 m², gelegen op de eerste en tweede verdieping van een fraai gebouw uit 1934, biedt ruimte, comfort en een toplocatie. Met authentieke details, een royale indeling en een actieve Vereniging van Eigenaren (VvE) is dit een buitenkans voor wie op zoek is naar een fijne plek om te wonen.
Ideale ligging in Hillegersberg
De Nieuwe Kerkstraat 89B ligt in het hart van de geliefde wijk Hillegersberg. Op loopafstand vind je tal van voorzieningen, zoals winkels, supermarkten, gezellige restaurants en cafés. Voor natuurliefhebbers en watersporters ligt de Bergse Voorplas op slechts enkele minuten afstand. Of je nu wilt wandelen, vissen, varen of sporten, hier zit je helemaal goed. Bovendien zijn het openbaar vervoer en uitvalswegen uitstekend bereikbaar, waardoor je binnen no-time in het centrum van Rotterdam bent.
Indeling van de woning
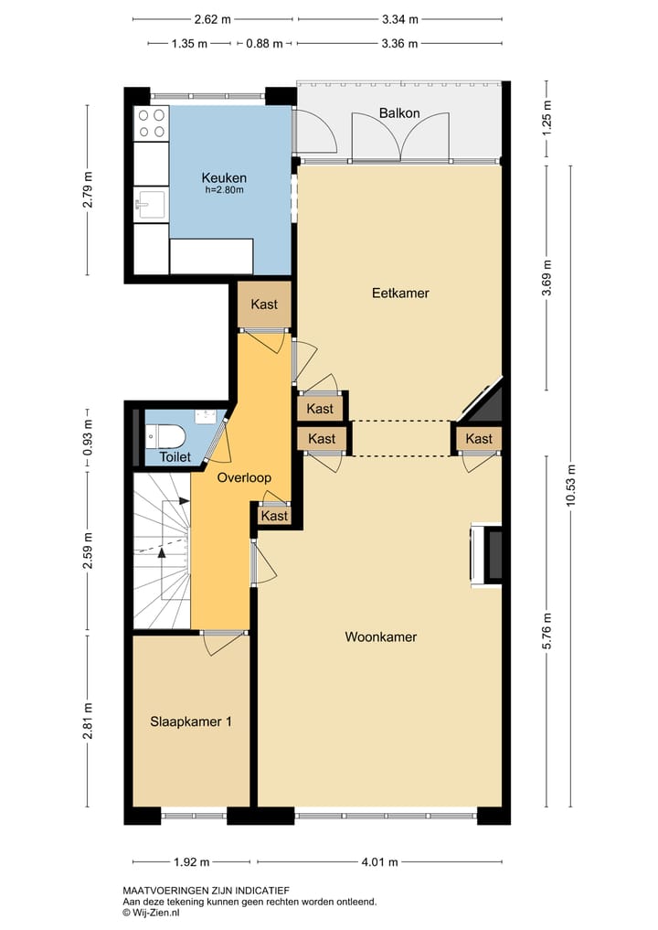
Eerste verdieping
Via een eigen opgang bereik je de hal/overloop, waar zich een separaat toilet bevindt. De royale woon- en eetkamer wordt op speelse wijze van elkaar gescheiden door praktische kasten. De openslaande deuren aan de achterzijde bieden toegang tot een balkon, waar je heerlijk kunt genieten van het buitenleven. De keuken is te bereiken via de achterkamer en biedt volop mogelijkheden. Aan de voorzijde bevindt zich een slaapkamer.
Tweede verdieping
Een trap leidt naar de tweede verdieping, waar een kleine overloop toegang biedt tot twee slaapkamers en een badkamer. De badkamer is voorzien van een ligbad en een wastafel. Ook bevindt zich hier de cv-ketel (overloop).
Bergvliering en berging
Via een Vlizotrap is de praktische bergvliering te bereiken – ideaal voor het opbergen van spullen. Daarnaast beschikt de woning over een eigen berging op de begane grond, bereikbaar via het achterpad.
Bijzonderheden van de woning
- Bouwjaar: 1934
- Woonoppervlakte: 96 m²
- Goed functionerende VvE: Actieve vereniging met een maandelijkse bijdrage van € 152,74
- Eigen berging: Gelegen in de achtertuin en gemakkelijk bereikbaar via het achterpad
- Bijzondere clausules in de koopakte: Verkoper heeft de woning feitelijk niet bewoond; "as is where is"-clausule en ouderdomsclausule zijn van toepassing
- Projectnotaris: Nouwen te Rotterdam, het notarieel transport zal plaatsvinden bij Nouwen Notarissen
- Oplevering: In overleg, kan spoedig
Waarom kiezen voor deze woning?
- Karaktervolle woning uit 1934 met authentieke details
- 96 m² woonoppervlakte verdeeld over twee verdiepingen
- Praktische bergvliering én berging op de begane grond
- 6 zonnepanelen op het dak
- Gelegen in de geliefde wijk Hillegersberg met alle voorzieningen binnen handbereik
- Actieve en goed functionerende VvE
Ben jij op zoek naar een sfeervolle bovenwoning met een perfecte ligging? Maak snel een afspraak voor een bezichtiging en ontdek zelf de charme en mogelijkheden van deze woning aan de Nieuwe Kerkstraat 89B!
Wij adviseren u uw eigen NVM-makelaar in te schakelen om uw belangen te behartigen bij de aankoop van dit object.
Aan deze aanbieding tekst kunnen geen rechten worden ontleend.
De woning is opgemeten conform de branchebrede meetinstructie, bedoeld om een meer eenduidige manier van meten toe te passen voor het geven van een indicatie van de gebruiksoppervlakte. De instructie sluit verschillen in meetuitkomsten niet volledig uit door bijvoorbeeld interpretatieverschillen, afrondingen of beperkingen bij het uitvoeren van de meting. Als het gebruiksoppervlak voor u essentieel is dan stellen wij u graag in de gelegenheid de woning zelf op te (laten) meten.
Deze informatie is met zorg samengesteld, voor de juistheid ervan kunnen wij geen aansprakelijkheid aanvaarden, noch kan aan de vermelde gegevens enig recht worden ontleend.
Kenmerken
Overdracht
- Laatste vraagprijs
- € 415.000 kosten koper
- Vraagprijs per m²
- € 4.323
- Status
- Verkocht
- Bijdrage VvE
- € 152,74 per maand
Bouw
- Soort appartement
- Bovenwoning (appartement)
- Soort bouw
- Bestaande bouw
- Bouwjaar
- 1934
- Soort dak
- Zadeldak bedekt met pannen
Oppervlakten en inhoud
- Gebruiksoppervlakten
- Wonen
- 96 m²
- Overige inpandige ruimte
- 13 m²
- Gebouwgebonden buitenruimte
- 4 m²
- Inhoud
- 383 m³
Indeling
- Aantal kamers
- 4 kamers (3 slaapkamers)
- Aantal badkamers
- 1 badkamer en 1 apart toilet
- Badkamervoorzieningen
- Ligbad, wastafel, en wastafelmeubel
- Aantal woonlagen
- 2 woonlagen en een vliering
- Voorzieningen
- Natuurlijke ventilatie en zonnepanelen
- Gelegen op
- 1e woonlaag
Energie
- Energielabel
- C
- Isolatie
- Dubbel glas
- Verwarming
- Cv-ketel
- Warm water
- Cv-ketel
- Cv-ketel
- Kompakt Solo HRE 30A (gas gestookt combiketel uit 2022, eigendom)
Kadastrale gegevens
- HILLEGERSBERG F 1032
- Kadastrale kaart
- Eigendomssituatie
- Volle eigendom
Buitenruimte
- Balkon/dakterras
- Balkon aanwezig
Bergruimte
- Schuur/berging
- Vrijstaande houten berging
Parkeergelegenheid
- Soort parkeergelegenheid
- Openbaar parkeren
VvE checklist
- Inschrijving KvK
- Ja
- Jaarlijkse vergadering
- Ja
- Periodieke bijdrage
- Ja (€ 152,74 per maand)
- Reservefonds aanwezig
- Ja
- Onderhoudsplan
- Ja
- Opstalverzekering
- Ja
Foto's 42
© 2001-2025 funda









































