
Omschrijving
Splinternieuw 2-kamer appartement op de 1e verdieping met balkon en berging in de onderbouw. De woning beschikt over een ruime woonkamer met balkon, slaapkamer, keuken en badkamer. Het appartement is in 2024 volledig vernieuwd met o.a. een nieuwe keuken, badkamer, doorgelegde laminaat vloer en grotendeels gestuukte wanden. Het complex heeft een actieve Vve. De woning is gelegen in de wijk Lombardijen om de hoek van het treinstation Rotterdam-Lombardijen met een directe verbinding naar het stadscentrum van Rotterdam en nabij diverse winkels, scholen en sportvoorzieningen.
?
INDELING:
BEGANE GROND:
Entree met video-intercom, trapopgang en toegang tot de berging.
1E VERDIEPING:
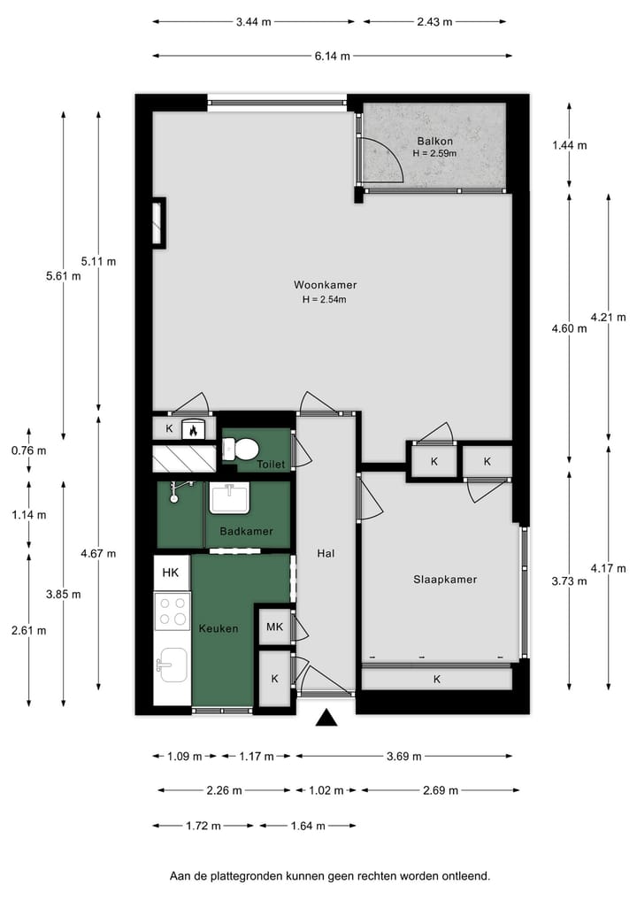
Aan het einde van de galerij betreedt u het appartement. De lange hal bij binnenkomst geeft toegang tot alle vertrekken. De hal beschikt o.a. over de meterkast ( 12 groepen) en het toilet.
Verder treft u bij binnenkomst aan de linkerzijde de keuken en badkamer en aan de rechterzijde de slaapkamer.
De splinternieuwe keuken is uitgevoerd met witkleurige kasten, een zwart aanrechtblad en diverse inbouwapparatuur met o.a.: een inductiekookplaat, afzuigkap, heteluchtoven, koel-vriescombinatie en vaatwasser. De aangrenzende badkamer is volledig betegeld en voorzien van een inloopdouche en wastafelmeubel. In de badkamer is tevens ruimte voor de wasmachineopstelling.
De slaapkamer is voorzien van een groot raam, een vaste kast een schuifwandkast.
Aan het einde van de hal betreedt u de woonkamer. De woonkamer heeft veel lichtinval door de grote ramen en beschikt over een deur naar het balkon aan de achterzijde. De woonkamer biedt voldoende ruimte voor een riante zit- en eethoek en heeft extra bergruimte in de aanwezige vaste kasten. In een van de vaste kasten bevindt zich de Intergas CV-ketel uit 2023.
De gehele woning is voorzien van een lichtkleurige laminaatvloer grotendeels glad gestuukte wanden.
?
KENMERKEN:
- Verzorgd complex met Intercom via mobiele app;
- Eigen berging op de begane grond;
- In 2024 volledig vernieuwd / gemoderniseerd;
- Ruim balkon aan de achterzijde met rolluik;
- Houten kozijnen;
- Grotendeels dubbel glas / enkele ramen enkele beglazing;
- Intergas CV-combiketel uit 2024;
- Vve: actief: bijdrage € 114,04 per maand
- Woonoppervlakte: circa 57 m2;
- Inhoud: circa 200 m3;
- Bouwjaar: circa 1961.
Kenmerken
Overdracht
- Laatste vraagprijs
- € 209.000 kosten koper
- Vraagprijs per m²
- € 3.667
- Status
- Verkocht
- Bijdrage VvE
- € 114,04 per maand
Bouw
- Soort appartement
- Bovenwoning (appartement)
- Soort bouw
- Bestaande bouw
- Bouwjaar
- 1961
Oppervlakten en inhoud
- Gebruiksoppervlakten
- Wonen
- 57 m²
- Gebouwgebonden buitenruimte
- 4 m²
- Externe bergruimte
- 8 m²
- Inhoud
- 200 m³
Indeling
- Aantal kamers
- 2 kamers (1 slaapkamer)
- Aantal badkamers
- 1 badkamer en 1 apart toilet
- Badkamervoorzieningen
- Inloopdouche en wastafelmeubel
- Aantal woonlagen
- 1 woonlaag
- Voorzieningen
- Buitenzonwering en TV kabel
- Gelegen op
- 1e woonlaag
Energie
- Energielabel
- F
- Isolatie
- Gedeeltelijk dubbel glas en muurisolatie
- Verwarming
- Cv-ketel
- Warm water
- Cv-ketel
- Cv-ketel
- Intergas ( combiketel uit 2024, eigendom)
Kadastrale gegevens
- IJSSELMONDE C 2959
- Kadastrale kaart
- Eigendomssituatie
- Volle eigendom
Buitenruimte
- Ligging
- In woonwijk
- Balkon/dakterras
- Balkon aanwezig
Bergruimte
- Schuur/berging
- Inpandig
Parkeergelegenheid
- Soort parkeergelegenheid
- Betaald parkeren
VvE checklist
- Inschrijving KvK
- Ja
- Jaarlijkse vergadering
- Ja
- Periodieke bijdrage
- Ja (€ 114,04 per maand)
- Reservefonds aanwezig
- Ja
- Onderhoudsplan
- Ja
- Opstalverzekering
- Ja
Foto's 22
© 2001-2025 funda





















