
Omschrijving
Met een prachtig uitzicht over de Zevenhuizerplas en het strand voor de deur is het heerlijk wonen in dit royale 4-kamerappartement op de eerste verdieping van een kleinschalig appartementencomplex. Gelegen aan de Nesselande Boulevard geniet u van de rust en privacy, terwijl winkels, restaurants en zomerse gezelligheid op loopafstand zijn.
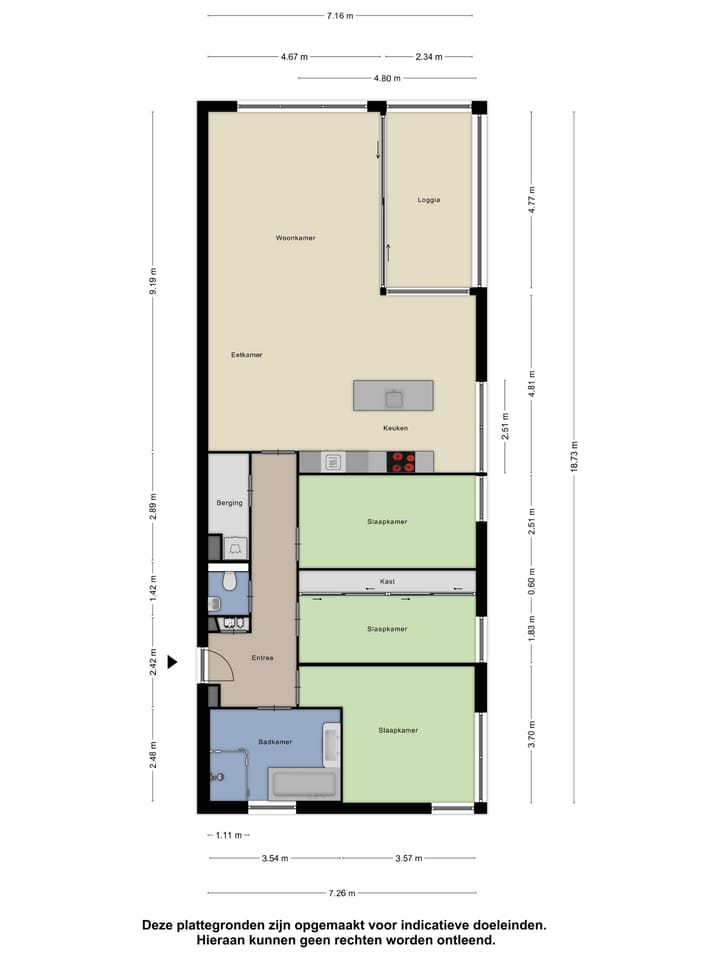
De lichte woonkamer met open keuken vormt het hart van het appartement. Met drie ruime slaapkamers, een badkamer met inloopdouche en ligbad, en een aparte wasruimte is dit een woning die aan alle gemakken voldoet. De loggia, voorzien van een glazen pui, biedt het hele jaar door een heerlijke buitenruimte met zomerzon tot laat in de avond.
Het complex telt slechts 10 appartementen en beschikt over een afgesloten parkeerkelder. Hier woont u comfortabel, ruim en op een unieke locatie aan het water.
Kenmerken:
- bouwjaar: 2007;
- gelegen op EIGEN GROND;
- woonoppervlakte: 123 m²;
- 3 slaapkamers, ruime woonkamer met open keuken en een afsluitbare loggia;
- schitterend uitzicht over de Zevenhuizerplas;
- moderne keuken met hoogwaardige inbouwapparatuur en luxe sanitair;
- eigen parkeerplaats in een afgesloten parkeerkelder;
- zéér actieve en gezonde VvE (kleinschalig en grote betrokkenheid);
- bijdrage VvE € 233,- per maand;
- eigen berging op de begane grond;
- afgesloten entree met intercominstallatie;
- verwarming en warm water via stadverwarming;
- energielabel: A;
- aanvaarding in overleg.
De Meetinstructie is gebaseerd op de NEN2580. De Meetinstructie is bedoeld om een meer eenduidige manier van meten toe te passen voor het geven van een indicatie van de gebruiksoppervlakte. De Meetinstructie sluit verschillen in meetuitkomsten niet volledig uit, door bijvoorbeeld interpretatieverschillen, afrondingen of beperkingen bij het uitvoeren van de meting.
Bovenstaande presentatie is niet meer dan een uitnodiging tot het doen van een bod, er kunnen geen rechten of verplichtingen aan worden ontleend.
Voorberg NVM makelaars behartigt de belangen van de verkopende partij, schakel uw eigen NVM aankoop makelaar in.
Makelaars zijn wettelijk verplicht een biedlogboek bij te houden bij de verkoop van bestaande woningen. Biedingen kunt u, indien gewenst, nog steeds mondeling met ons bespreken maar dient u daarna digitaal aan ons te bevestigen via uw MOVE-account.
Kenmerken
Overdracht
- Laatste vraagprijs
- € 650.000 kosten koper
- Vraagprijs per m²
- € 5.285
- Status
- Verkocht
- Bijdrage VvE
- € 233,00 per maand
Bouw
- Soort appartement
- Portiekflat (appartement)
- Soort bouw
- Bestaande bouw
- Bouwjaar
- 2007
- Specifiek
- Gedeeltelijk gestoffeerd
- Soort dak
- Plat dak bedekt met bitumineuze dakbedekking
- Keurmerken
- Energie Prestatie Advies
Oppervlakten en inhoud
- Gebruiksoppervlakten
- Wonen
- 123 m²
- Gebouwgebonden buitenruimte
- 11 m²
- Externe bergruimte
- 18 m²
- Inhoud
- 405 m³
Indeling
- Aantal kamers
- 4 kamers (3 slaapkamers)
- Aantal badkamers
- 1 badkamer en 1 apart toilet
- Badkamervoorzieningen
- Douche, dubbele wastafel, inloopdouche, ligbad, en wastafelmeubel
- Aantal woonlagen
- 1 woonlaag
- Voorzieningen
- Glasvezelkabel, lift, mechanische ventilatie, natuurlijke ventilatie, rolluiken, schuifpui, en TV kabel
- Gelegen op
- 1e woonlaag
Energie
- Energielabel
- A
- Isolatie
- Dakisolatie, dubbel glas, HR-glas, muurisolatie, vloerisolatie en volledig geïsoleerd
- Verwarming
- Stadsverwarming
- Warm water
- Stadsverwarming
Kadastrale gegevens
- ROTTERDAM BC 1910
- Kadastrale kaart
- Eigendomssituatie
- Volle eigendom
- ROTTERDAM BC 1910
- Kadastrale kaart
- Eigendomssituatie
- Volle eigendom
Buitenruimte
- Ligging
- In woonwijk en vrij uitzicht
Bergruimte
- Schuur/berging
- Box
- Voorzieningen
- Elektra
- Isolatie
- Geen isolatie
Parkeergelegenheid
- Soort parkeergelegenheid
- Betaald parkeren, op afgesloten terrein, openbaar parkeren en parkeergarage
VvE checklist
- Inschrijving KvK
- Ja
- Jaarlijkse vergadering
- Ja
- Periodieke bijdrage
- Ja (€ 233,00 per maand)
- Reservefonds aanwezig
- Ja
- Onderhoudsplan
- Ja
- Opstalverzekering
- Ja
Foto's 40
© 2001-2025 funda







































