
Omschrijving
Instapklaar 4-kamerappartement van 130 m2 in de populaire en groene wijk Blijdorp! Deze woning is in 2017 volledig gerenoveerd en beschikt o.a. over een 2 ruime woonkamers, 2 keukens, 2 badkamers, 2 slaapkamers en 2 balkons. Dit appartement is gelegen in de rustige en gewilde wijk Blijdorp, een fijne buurt waar het stedelijke leven goed te combineren is met groen en rust. Blijdorp staat bekend om zijn parkachtige uitstraling, met het Vroesenpark en Diergaarde Blijdorp in de directe omgeving. Deze wijk biedt veel voorzieningen op korte afstand, zoals diverse winkels, en de supermarkt is op slechts 2 minuten lopen. je hebt de rust en ruimte van een groene omgeving, maar tegelijkertijd ben je binnen een paar minuten in het bruisende stadscentrum van Rotterdam. Het stadscentrum is binnen 10 minuten fietsen te bereiken, wat de wijk erg populair maakt bij mensen die het gemak van de stad willen combineren. De uitvalswegen A13 en A20 zijn snel bereikbaar.
Indeling:
Open portiek met een gezamenlijke opgang met 2 voordeuren.
3e verdieping:
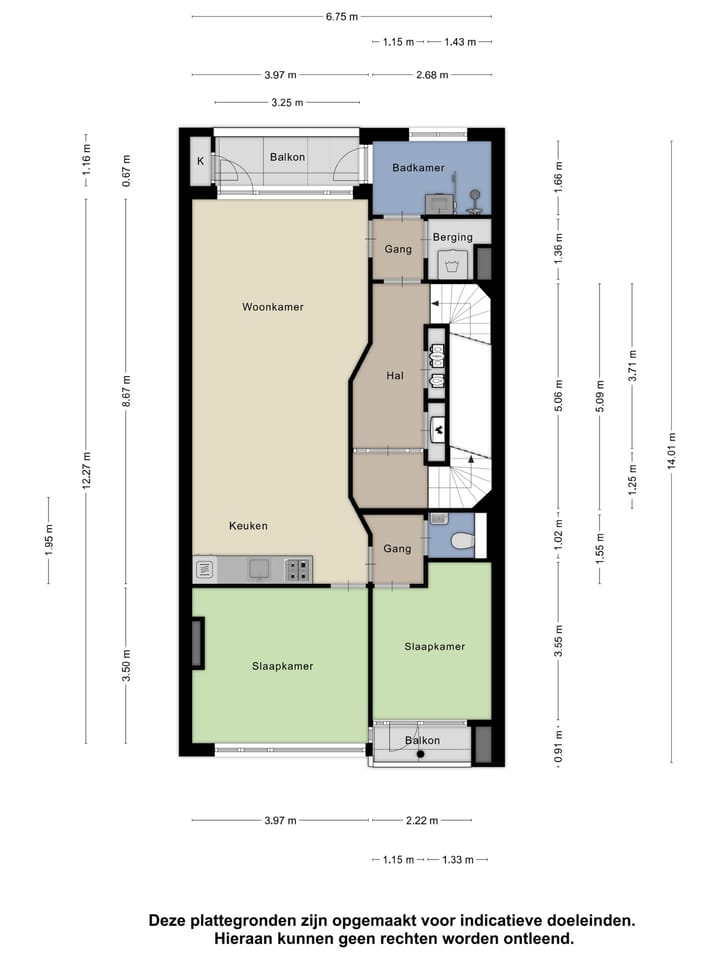
Ruime entree/hal met vaste kasten (CV-opstelling en meterkast), berging, separaat toilet en toegang tot alle vertrekken op deze verdieping. De royale woon-/eetkamer is gelegen aan de voorzijde van de woning. Er is meer dan voldoende ruimte voor een royale bank en eettafel. Door de grote raampartijen aan de voorzijde van de woning treedt er veel natuurlijk licht de woning binnen, wat zorgt voor een fijne en lichte sfeer. De gehele woning beschikt over laminaatvloer. Vanuit de woonkamer en badkamer is het balkon aan de achterzijde van de woning te betreden, gelegen op het noordwesten waar je heerlijk kan genieten van eind middag-/avondzon. De moderne open keuken beschikt over diverse inbouwapparatuur zoals een vaatwasser, koel-/vriescombinatie, 4-pits gasfornuis met afzuigkap en een combioven/magnetron. De master bedroom is gelegen aan de achterzijde van de woning. De 2e slaapkamer is multifunctioneel in te richtten als werk-, kinder-, slaapkamer. Via deze slaapkamer heb je toegang tot het 2e balkon, gelegen op het zuidoosten. Hier kan je heerlijk genieten van de zon met een kop koffie. De badkamer is volledig betegeld en beschikt over een douche en wastafel.
4e verdieping:
Riante overloop met toegang tot alle vertrekken op deze verdieping. De woonkamer is erg ruim te noemen en gelegen aan de voorzijde van de woning. De moderne open keuken beschikt over diverse inbouwapparatuur zoals een 4-pits gasfornuis met afzuigkap, vaatwasser, oven/magnetron en een koel-/vriescombinatie. Via de woonkamer heb je toegang tot de 3e slaapkamer, gelegen aan de voorzijde van het appartement. De volledig betegelde badkamer beschikt over een toilet, inloopdouche, wasmachineaansluiting, wastafel met wastafelmeubel.
Bijzonderheden:
- Bouwjaar 1937
- Woonoppervlakte 130 m2
- Gelegen op eigen grond
- In 2017 volledig gerenoveerd en voor dubbele bewoning geschikt gemaakt
- Gelegen in gebied dat is aangewezen tot beschermd stadsgezicht
- De woning is aangewezen als rijksmonument
- Volledig voorzien van dubbel glas
- VvE is actief, bijdrage € 167,33 per maand
- Geen energielabel vereist
- In de koopakte zal er gezien het bouwjaar een ouderdoms- en funderingsclausule worden opgenomen
- Niet-feitelijk-bewoond clausule van toepassing, verkoper heeft de woning zelf nooit bewoond
Wil je als eerste op de hoogte zijn van ons aanbod?
Volg ons op Instagram @vandevijver_makelaardij of TikTok @vandevijvermakelaardij
Oplevering:
-In overleg
vandeVijver Makelaardij behartigt de belangen van de verkopende partij, schakel uw eigen aankoopmakelaar in.
Bovenstaande presentatie is niet meer dan een uitnodiging tot het doen van een bod, er kunnen geen rechten of verplichtingen aan worden ontleend.
Kenmerken
Overdracht
- Laatste vraagprijs
- € 425.000 kosten koper
- Vraagprijs per m²
- € 3.269
- Status
- Verkocht
- Bijdrage VvE
- € 167,33 per maand
Bouw
- Soort appartement
- Bovenwoning (appartement)
- Soort bouw
- Bestaande bouw
- Bouwjaar
- 1937
- Specifiek
- Beschermd stads- of dorpsgezicht en monument
- Soort dak
- Plat dak bedekt met bitumineuze dakbedekking
Oppervlakten en inhoud
- Gebruiksoppervlakten
- Wonen
- 130 m²
- Overige inpandige ruimte
- 1 m²
- Gebouwgebonden buitenruimte
- 6 m²
- Inhoud
- 465 m³
Indeling
- Aantal kamers
- 5 kamers (3 slaapkamers)
- Aantal badkamers
- 2 badkamers en 1 apart toilet
- Badkamervoorzieningen
- Inloopdouche, 2 wastafels, 2 wastafelmeubels, en toilet
- Aantal woonlagen
- 2 woonlagen
- Voorzieningen
- TV kabel
- Gelegen op
- 3e woonlaag
Energie
- Energielabel
- F
- Isolatie
- Dubbel glas
- Verwarming
- Cv-ketel
- Warm water
- Cv-ketel
- Cv-ketel
- Gas gestookt combiketel, eigendom
Kadastrale gegevens
- ROTTERDAM Z 4106
- Kadastrale kaart
- Eigendomssituatie
- Volle eigendom
Buitenruimte
- Balkon/dakterras
- Balkon aanwezig
Parkeergelegenheid
- Soort parkeergelegenheid
- Betaald parkeren en parkeervergunningen
VvE checklist
- Inschrijving KvK
- Ja
- Jaarlijkse vergadering
- Ja
- Periodieke bijdrage
- Ja (€ 167,33 per maand)
- Reservefonds aanwezig
- Ja
- Onderhoudsplan
- Nee
- Opstalverzekering
- Ja
Foto's 45
© 2001-2025 funda












































