Omschrijving

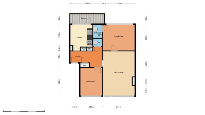
Op zoek naar een appartement in een fijne woonomgeving? Kom dan snel kijken bij dit 3-kamer appartement aan de van Wijngaardenlaan 45! De woning is gelegen op de 4e verdieping in de wijk 'Zomerland'. * Geheel voorzien van dubbele beglazing; * Eigen CV-Combiketel van 2022; * Gelegen in een fijne woonwijk. Indeling: * Hal met meterkast, vaste kasten, het toilet en toegang tot de overige vertrekken. * De keuken is gelegen aan de achterzijde voorzien van een eenvoudig keukenblok met een gaskookplaat, een afzuigkap en de CV-opstelling. De keuken geeft toegang tot het ruime balkon aan de achterzijde. * De woonkamer is aan de voorzijde gelegen voorzien van een laminaatvloer. * Slaapkamer I is bereikbaar via de woonkamer en geeft toegang tot de badkamer. * De badkamer is voorzien van een inloopdouche en wastafelmeubel. * Slaapkamer II is bereikbaar via de hal. Kenmerken: * Bouwjaar: 1958 * Eigen grond * Woonoppervlakte: 59 m2 * Inhoud: 197 m3 * Kunststof kozijnen met dubbele beglazing * CV-Combiketel Intergas (bouwjaar: 2022) * Eigen berging in de onderbouw (ca. 7 m2) * VvE bijdrage: € 120,00 per maand * Gewenste oplevering: z.s.m. De woning is gelegen in de wijk IJsselmonde. Deze wijk valt onder de opkoopbescherming. Dit houdt in dat de woning niet gekocht mag worden voor verhuur, al gelden er uitzonderingen zoals de verhuur aan een kind of familielid. Kijk voor meer informatie op de website van de gemeente Rotterdam. Ondanks dat grote zorgvuldigheid is betracht bij het samenstellen van de verkoopinformatie wordt voor de onjuistheid van de vermelde gegevens door de eigenaar noch door de verkopend makelaar enige aansprakelijkheid aanvaard. In de koopovereenkomst wordt een ouderdoms-, asbest- en niet-bewoningsclausule opgenomen. Rechtsgeldige koopovereenkomst pas ná ondertekening: Een mondelinge overeenstemming tussen de particuliere verkoper en de particuliere koper is niet rechtsgeldig. Met andere woorden: er is (nog) geen koop. Er is pas sprake van een rechtsgeldige koop als de particuliere verkoper en de particuliere koper de koopovereenkomst hebben ondertekend. Dit vloeit voort uit artikel 7:2 Burgerlijk Wetboek. Een bevestiging van de mondelinge overeenstemming per e-mail of een toegestuurd concept van de koopovereenkomst wordt overigens niet gezien als een ‘ondertekende koopovereenkomst’.

Kenmerken

Overdracht

Laatste vraagprijs
€ 230.000 kosten koper
Vraagprijs per m²
€ 3.898
Status
Verkocht
Bijdrage VvE
€ 120,00 per maand

Bouw

Soort appartement
Portiekflat (appartement)
Soort bouw
Bestaande bouw
Bouwjaar
1958
Soort dak
Plat dak bedekt met bitumineuze dakbedekking

Oppervlakten en inhoud

Gebruiksoppervlakten
Wonen
59 m²
Gebouwgebonden buitenruimte
4 m²
Externe bergruimte
7 m²
Inhoud
197 m³

Indeling

Aantal kamers
3 kamers (2 slaapkamers)
Aantal woonlagen
1 woonlaag
Gelegen op
4e woonlaag

Energie

Energielabel
Isolatie
Dubbel glas
Verwarming
Cv-ketel
Warm water
Cv-ketel
Cv-ketel
Intergas ( combiketel uit 2022, eigendom)

Kadastrale gegevens

IJSSELMONDE D 3842
Kadastrale kaart
Eigendomssituatie
Volle eigendom

Buitenruimte

Ligging
Aan rustige weg en in woonwijk

Bergruimte

Schuur/berging
Box

Parkeergelegenheid

Soort parkeergelegenheid
Betaald parkeren en openbaar parkeren

VvE checklist

Inschrijving KvK
Ja
Jaarlijkse vergadering
Ja
Periodieke bijdrage
Ja (€ 120,00 per maand)
Reservefonds aanwezig
Ja
Onderhoudsplan
Ja
Opstalverzekering
Ja

Foto's 24

  • Foto 1 van Van Wijngaardenlaan 45
  • Foto 2 van Van Wijngaardenlaan 45
  • Foto 3 van Van Wijngaardenlaan 45
  • Foto 4 van Van Wijngaardenlaan 45
  • Foto 5 van Van Wijngaardenlaan 45
  • Foto 6 van Van Wijngaardenlaan 45
  • Foto 7 van Van Wijngaardenlaan 45
  • Foto 8 van Van Wijngaardenlaan 45
  • Foto 9 van Van Wijngaardenlaan 45
  • Foto 10 van Van Wijngaardenlaan 45
  • Foto 11 van Van Wijngaardenlaan 45
  • Foto 12 van Van Wijngaardenlaan 45
  • Foto 13 van Van Wijngaardenlaan 45
  • Foto 14 van Van Wijngaardenlaan 45
  • Foto 15 van Van Wijngaardenlaan 45
  • Foto 16 van Van Wijngaardenlaan 45
  • Foto 17 van Van Wijngaardenlaan 45
  • Foto 18 van Van Wijngaardenlaan 45
  • Foto 19 van Van Wijngaardenlaan 45
  • Foto 20 van Van Wijngaardenlaan 45
  • Foto 21 van Van Wijngaardenlaan 45
  • Foto 22 van Van Wijngaardenlaan 45
  • Foto 23 van Van Wijngaardenlaan 45
  • Foto 24 van Van Wijngaardenlaan 45

© 2001-2025 funda