
Omschrijving
In een rustige en kindvriendelijke omgeving én op eigen grond ligt deze ruime eengezinswoning met zonnige tuin. Bovendien is de woning deels voorzien van kunststof kozijnen. De woning beschikt verder over vier slaapkamers, een badkamer, een open keuken en een ruime woonkamer. Gesitueerd in een plezierige woonomgeving, op korte afstand van het recreatiegebied Zevenhuizerplas en de metrohalte Nieuw Verlaat om de hoek. Ook diverse uitvalswegen, scholen, sportfaciliteiten en het grote winkelcentrum Woonmall Alexandrium zijn in de directe omgeving aanwezig.
Persoonlijke tekst eigenaar:
We hebben hier met plezier ruim 40 jaar in een rustige omgeving gewoond met alle voorzieningen rondom in de wijk.
Nu is het tijd om het, voor ons nu te groot geworden huis, in te ruilen voor een appartement en we hopen dat nieuwe eigenaren hier een fijne toekomst tegemoet gaan.
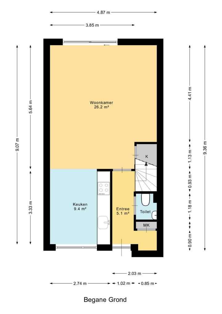
Begane grond:
Je komt binnen in de entree waarbij de hal je leidt naar de meterkast, het toilet met fonteintje, de woonkamer en de trap naar de eerste verdieping. De woonkamer is door de aluminium schuifpui voorzien van veel daglicht. Bovendien geeft deze schuifpui toegang tot de achtertuin van meer dan 10 meter lang. Bovendien is de achtertuin gelegen op het zuidwesten. Hier kan je optimaal genieten van de zon. Verder is de woonkamer voorzien van een ruime trapkast. De open keuken aan de voorzijde van de woning is voorzien van gemakken waaronder een oven, een keramische kookplaat, een afzuigkap en een aparte koelkast en vriezer.
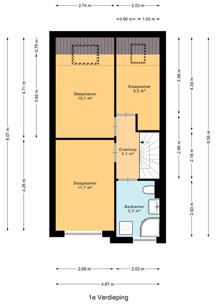
1e verdieping:
De overloop geeft toegang tot 3 slaapkamers en de badkamer. De grootste slaapkamer is gelegen aan de voorzijde, evenals de badkamer. De badkamer is voorzien van een toilet, een douche, een wastafel met meubel, de wasmachineaansluiting en een kiepraam, voor natuurlijk daglicht. De andere twee slaapkamers zijn gelegen aan de achterzijde en zijn beide voorzien van een zowel houten als kunststof dakraam.
2e verdieping:
De tweede verdieping waarborgt een grote open ruimte met twee kunststof dakramen met verduistering aan de achterzijde en een groot houten dakraam aan de voorzijde. De mechanische ventilatie unit hangt op de overloop.
Bijzonderheden:
De woning is deels voorzien van kunststof kozijnen en deels voorzien van hardhouten kozijnen. De woning is gelegen op eigen grond.
Afmetingen:
Zie de (interactieve) plattegronden voor de afmetingen van de woning.
Bouwjaar : 1983
Inhoud : 388 m³
Gebruiksoppervlakte wonen : 114 m²
Overige inpandige ruimte : 0 m²
Gebouwgebonden buitenruimte : 0 m²
Externe bergruimte : 8 m²
Gebruiksoppervlakte woningen:
De Meetinstructie is gebaseerd op de NEN2580. De Meetinstructie is bedoeld om een meer eenduidige manier van meten toe te passen voor het geven van een indicatie van de gebruiksoppervlakte. De Meetinstructie sluit verschillen in meetuitkomsten niet volledig uit, door bijvoorbeeld interpretatieverschillen, afrondingen of beperkingen bij het uitvoeren van de meting.
Rechtsgeldige koopovereenkomst pas ná ondertekening:
Een mondelinge overeenstemming tussen de particuliere verkoper en de particuliere koper is niet rechtsgeldig. Met andere woorden: er is geen koop. Er is pas sprake van een rechtsgeldige koop als de particuliere verkoper en de particuliere koper de koopovereenkomst hebben ondertekend. Dit vloeit voort uit artikel 7:2 Burgerlijk Wetboek. Een bevestiging van de mondelinge overeenstemming per e-mail of een toegestuurd concept van de koopovereenkomst wordt overigens niet gezien als een ‘ondertekende koopovereenkomst’.
Van der Panne woning- & bedrijfsmakelaardij is de makelaar van de verkoper. Neem uw eigen NVM-makelaar mee, voor goed advies bij de aankoop van uw nieuwe woning!
Kenmerken
Overdracht
- Laatste vraagprijs
- € 415.000 kosten koper
- Vraagprijs per m²
- € 3.640
- Status
- Verkocht
Bouw
- Soort woonhuis
- Eengezinswoning, tussenwoning
- Soort bouw
- Bestaande bouw
- Bouwjaar
- 1983
- Soort dak
- Zadeldak bedekt met pannen
Oppervlakten en inhoud
- Gebruiksoppervlakten
- Wonen
- 114 m²
- Externe bergruimte
- 8 m²
- Perceel
- 115 m²
- Inhoud
- 388 m³
Indeling
- Aantal kamers
- 5 kamers (4 slaapkamers)
- Aantal badkamers
- 1 badkamer en 1 apart toilet
- Badkamervoorzieningen
- Douche, toilet, en wastafelmeubel
- Aantal woonlagen
- 3 woonlagen
- Voorzieningen
- Buitenzonwering, mechanische ventilatie, en TV kabel
Energie
- Energielabel
- C
- Isolatie
- Dubbel glas
- Verwarming
- Stadsverwarming
- Warm water
- Stadsverwarming
Kadastrale gegevens
- ROTTERDAM BA 1193
- Kadastrale kaart
- Oppervlakte
- 115 m²
- Eigendomssituatie
- Volle eigendom
Buitenruimte
- Ligging
- Aan rustige weg en in woonwijk
- Tuin
- Achtertuin en voortuin
- Achtertuin
- 52 m² (10,50 meter diep en 4,97 meter breed)
- Ligging tuin
- Gelegen op het zuidwesten bereikbaar via achterom
Bergruimte
- Schuur/berging
- Vrijstaande houten berging
- Voorzieningen
- Elektra
Parkeergelegenheid
- Soort parkeergelegenheid
- Openbaar parkeren
Foto's 39
© 2001-2025 funda






































