Dit huis op Funda: https://www.funda.nl/detail/koop/rotterdam/huis-bovenstraat-49/43729754/

Omschrijving
Onder de indruk!
Wat een prachtig gerenoveerde, royale dijkwoning, gelegen in 1 van de mooiste en gezelligste straatjes van Oud IJsselmonde.
Werkelijk tot in de puntjes verzorgd en anders dan anders.
Bijna 200 m² woonplezier.
Dit mooie pand laat zich niet beschrijven; bekijk de foto’s en daarna laten wij de woning graag aan u zien!
Indeling:
Begane grond:
Entree, gang, meterkast, toilet.
Werk-/slaapkamer I (2.48 x 4.88) met lichtkoepel.
Badkamer (2.05 x 1.36) met wastafelmeubel en inloopdouche.
Slaapkamer II (3.20 x 3.52).
Slaapkamer III (3.00 x 3.52).
Zeer fraaie living (8.57 x 4.72) met robuust trappenhuis.
Tevens is er een berging (2.40 x 3.77) via de voorzijde bereikbaar.
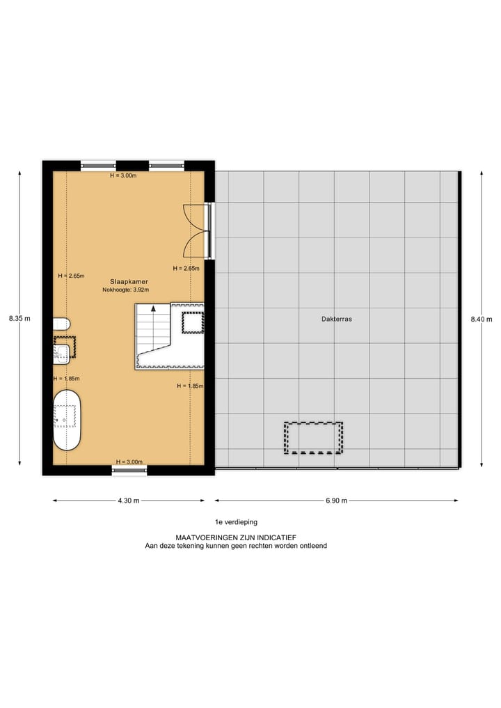
1e Verdieping:
Loftachtige open ruimte (4.30 x 8.35) met heerlijk hoog plafond, thans slaapkamer IV met open badkamer voorzien van vrijstaand ligbad, wastafel en toilet.
Toegang tot het zonovergoten terras (6.90 x 8.40) met doorkijk naar de Maas.
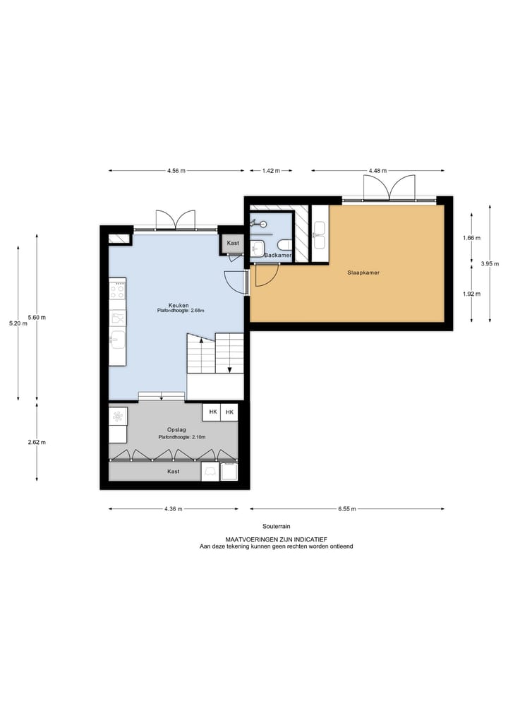
Onderverdieping:
Echt een heerlijke woonkeuken (4.56 x 5.60) met open opslagruimte (4.36 x 2.62) met wasmachineaansluiting.
De keuken is voorzien van:
- Quooker
- Vaatwasser
- Inductiekookplaat
- Koel-/vriescombinatie
- Oven
- Openslaande deuren naar de tuin met achterom.
Toegang tot zelfstandige studio:
- Slaap-/woonkamer met pantry (6.55/4.48 x 3.95)
- Badkamer (1.43 x 1.66)
Ook deze ruimte heeft openslaande deuren naar de tuin.
Bijzonderheden:
- Eigen grond.
- Woonoppervlakte 191 m².
- Inhoud: 817 m³.
- Perceel oppervlakte (3 percelen!): 170 m².
- Bouwjaar: 1910.
- Verwarming en warmwater doormiddel van C.V.-combiketel (2020) en vloerverwarming.
- Energielabel: C; deze woning is goed geïsoleerd; vloer-, dak- en gevelisolatie en voorzien van 13 zonnepanelen.
- Inpandige berging (9 m²).
- Nabij de uitvalswegen gelegen.
- Echt een woning met de absolute wow-factor!
Stad & Land NVM Makelaars is de makelaar van de verkoper. Wij adviseren u uw eigen NVM makelaar in te schakelen om uw belangen te behartigen bij de aankoop van dit object.
Deze informatie is door ons met de nodige zorgvuldigheid samengesteld. Onzerzijds wordt echter geen enkele aansprakelijkheid aanvaard voor enige onvolledigheid, onjuistheid of anderszins, dan wel de gevolgen daarvan.
Kenmerken
Overdracht
- Laatste vraagprijs
- € 750.000 kosten koper
- Vraagprijs per m²
- € 3.927
- Status
- Verkocht
Bouw
- Soort woonhuis
- Eengezinswoning, tussenwoning (dijkwoning)
- Soort bouw
- Bestaande bouw
- Bouwjaar
- 1910
Oppervlakten en inhoud
- Gebruiksoppervlakten
- Wonen
- 191 m²
- Overige inpandige ruimte
- 9 m²
- Gebouwgebonden buitenruimte
- 58 m²
- Externe bergruimte
- 1 m²
- Perceel
- 170 m²
- Inhoud
- 817 m³
Indeling
- Aantal kamers
- 5 kamers (5 slaapkamers)
- Aantal badkamers
- 3 badkamers en 2 aparte toiletten
- Badkamervoorzieningen
- Inloopdouche, wastafelmeubel, ligbad, toilet, en wastafel
- Aantal woonlagen
- 3 woonlagen
- Voorzieningen
- Zonnepanelen
Energie
- Energielabel
- C
- Isolatie
- Dakisolatie, muurisolatie en vloerisolatie
- Verwarming
- Cv-ketel en gedeeltelijke vloerverwarming
- Warm water
- Cv-ketel
- Cv-ketel
- Combiketel uit 2020
Kadastrale gegevens
- IJSSELMONDE D 644
- Kadastrale kaart
- Oppervlakte
- 74 m²
- Eigendomssituatie
- Volle eigendom
- IJSSELMONDE D 643
- Kadastrale kaart
- Oppervlakte
- 40 m²
- Eigendomssituatie
- Volle eigendom
- IJSSELMONDE D 642
- Kadastrale kaart
- Oppervlakte
- 56 m²
- Eigendomssituatie
- Volle eigendom
Buitenruimte
- Ligging
- In woonwijk
- Tuin
- Achtertuin en zonneterras
- Achtertuin
- 64 m² (4,85 meter diep en 13,10 meter breed)
- Balkon/dakterras
- Dakterras aanwezig
Bergruimte
- Schuur/berging
- Inpandig
Parkeergelegenheid
- Soort parkeergelegenheid
- Openbaar parkeren en parkeervergunningen
Foto's 42
© 2001-2025 funda









































