
Gerardus van Sillevoldtstraat 193065 LG Rotterdam's-Gravenland
€ 1.000.000 k.k.
Omschrijving
Welkom aan de Gerardus van Sillevoldtstraat 19, een rustige en geliefde straat in Rotterdam, waar u geniet van de perfecte combinatie van rust, ruimte en nabijheid van voorzieningen. Deze aantrekkelijke buurt kenmerkt zich door groene lanen, kindvriendelijke straten en een fijne sociale omgeving.
Scholen, speelgelegenheden, supermarkten en gezellige horecagelegenheden liggen op korte afstand, en met het openbaar vervoer en uitvalswegen bent u bovendien snel in het hart van Rotterdam of onderweg naar andere steden.
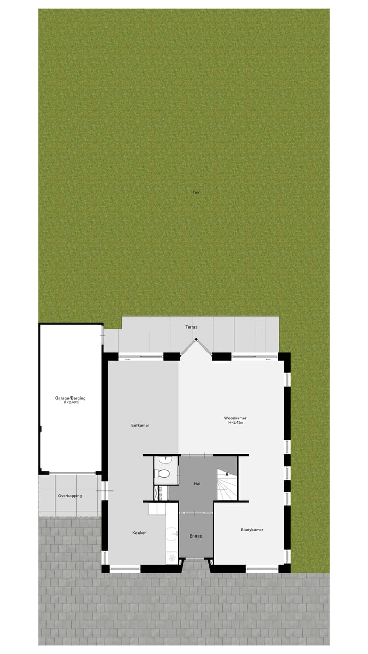
Deze vrijstaande gezinswoning staat op een riant perceel van 467 m² eigen grond en biedt voldoende parkeergelegenheid op de oprit voor 2 auto’s. De woning straalt ruimte en licht uit: de ruime woonkamer is voorzien van vloerverwarming en speels geplaatste raampartijen, waardoor u gedurende de dag kunt genieten van een prachtige lichtinval. Ideaal voor een gezellig gezin of voor het ontvangen van gasten.
Voor ontspanning of een rustige werkplek is er een aparte tv-ruimte op de begane grond, waardoor u volop flexibiliteit heeft in het gebruik van de woonruimte. De woning beschikt verder over een garage, vier ruime slaapkamers en twee badkamers, zodat zowel ouders als kinderen hun eigen privacy en comfort hebben.
De combinatie van een ruim perceel, goed doordachte indeling en een toplocatie maakt dit een uitzonderlijke kans voor gezinnen die op zoek zijn naar een vrijstaand huis in Rotterdam met veel wooncomfort en mogelijkheden.
Wilt u deze woning zelf ervaren? U bent van harte welkom voor een bezichtiging!
Indeling:
Begane grond:
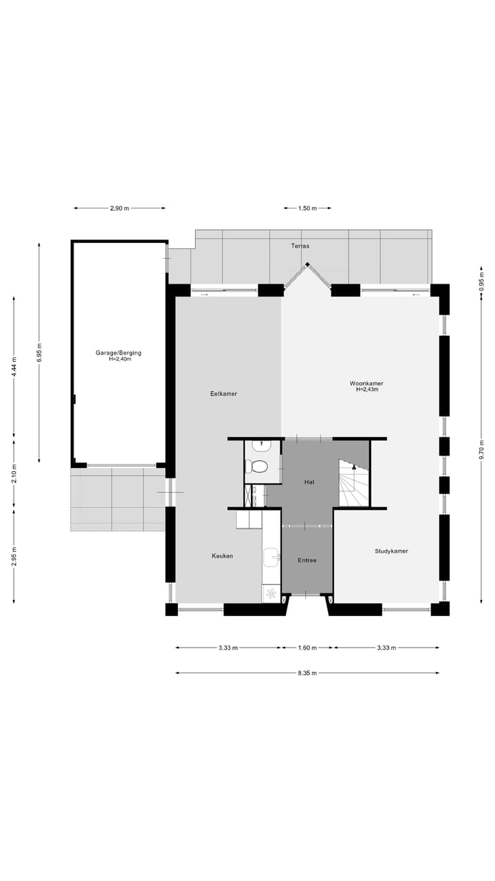
Via de verzorgde voortuin met plek voor twee auto’s bereikt u de afgesloten entree met garderobe en meterkast.
Vanuit de entree leidt een fraaie glazendeur naar de ruime woonkamer (4.44 x 8.35). Deze lichte woonkamer is voorzien van vloerverwarming, een gashaard en een bijzonder glazen atrium, dat een unieke sfeer geeft.
De keuken (2.95 x 3.33) is netjes en volledig uitgerust met een koel-vriescombinatie, oven, vaatwasmachine, elektrische kookplaat en strakke witte fronten. Vanuit de woonkamer is tevens de garage (6.95 x 2.90) direct bereikbaar.
Tv/study kamer (2.95 x 3.33).
1e Verdieping:
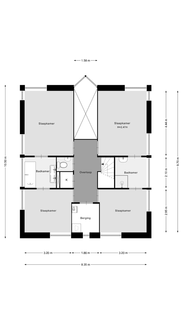
Op de eerste verdieping bevindt zich een ruime overloop met vaste kast voor de mechanische ventilatie. De praktische stookruimte biedt een wasmachineaansluiting en de opstelplaats voor de C.V.-combiketel (3 jaar oud). Daarnaast is er een separaat toilet met fonteintje.
De woning beschikt over vier slaapkamers.
Aan de achterzijde ligt slaapkamer 1 (4.44 x 3.20), met toegang tot de eerste badkamer (2.10 x 2.00), voorzien van een ligbad en een wastafel met dubbele kraan, met een doorloop naar de slaapkamer 2 aan de voorzijde. Slaapkamer 2 (2.95 x 3.20) ligt aan de voorzijde. Aan de andere kant van de overloop ligt slaapkamer 3 (4.44 x 3.20) aan de achterzijde, met toegang tot de tweede badkamer, voorzien van douche en wastafel, die doorloopt naar slaapkamer 4 (2.95 x 3.20) aan de voorzijde.
Bijzonderheden:
- Eigen grond
- Woonoppervlakte: 159 m².
- Inhoud: 626 m³.
- Bouwjaar: 1993.
- Energielabel: …
- Uitstekend geïsoleerd met onder andere dubbel glas, spouwmuren en vloerisolatie.
- Verwarming en warm water door C.V.-combi ketel.
- Mechanische ventilatie.
- Gelegen in een groene rustige buurt in de nabijheid van alle grootstedelijke voorzieningen.
Stad & Land NVM Makelaars is de makelaar van de verkoper. Wij adviseren u uw eigen NVM makelaar in te schakelen om uw belangen te behartigen bij de aankoop van dit object.
Deze informatie is door ons met de nodige zorgvuldigheid samengesteld. Onzerzijds wordt echter geen enkele aansprakelijkheid aanvaard voor enige onvolledigheid, onjuistheid of anderszins, dan wel de gevolgen daarvan.
Kenmerken
Overdracht
- Aangeboden sinds
- Aanvaarding
- In overleg
- Vraagprijs
- € 1.000.000 kosten koper
- Vraagprijs per m²
- € 6.289
- Status
- Beschikbaar
Bouw
- Soort woonhuis
- Eengezinswoning, vrijstaande woning
- Soort bouw
- Bestaande bouw
- Bouwjaar
- 1993
- Soort dak
- Plat dak bedekt met bitumineuze dakbedekking
Oppervlakten en inhoud
- Gebruiksoppervlakten
- Wonen
- 159 m²
- Overige inpandige ruimte
- 20 m²
- Gebouwgebonden buitenruimte
- 6 m²
- Perceel
- 467 m²
- Inhoud
- 626 m³
Indeling
- Aantal kamers
- 6 kamers (4 slaapkamers)
- Aantal badkamers
- 2 badkamers en 2 aparte toiletten
- Badkamervoorzieningen
- Dubbele wastafel, ligbad, douche, en wastafel
- Aantal woonlagen
- 2 woonlagen
- Voorzieningen
- Mechanische ventilatie
Energie
- Energielabel
- Niet beschikbaar
- Isolatie
- Dakisolatie, dubbel glas, muurisolatie, vloerisolatie en volledig geïsoleerd
- Verwarming
- Cv-ketel en gedeeltelijke vloerverwarming
- Warm water
- Cv-ketel
- Cv-ketel
- ATAG type P35SEC (gas gestookt combiketel uit 2024, eigendom)
Kadastrale gegevens
- KRALINGEN D 9821
- Kadastrale kaart
- Oppervlakte
- 467 m²
- Eigendomssituatie
- Volle eigendom
Buitenruimte
- Ligging
- Aan vaarwater en in woonwijk
- Tuin
- Achtertuin, voortuin en zijtuin
Garage
- Soort garage
- Aangebouwde stenen garage
- Capaciteit
- 1 auto
Parkeergelegenheid
- Soort parkeergelegenheid
- Op eigen terrein
Foto's 37
© 2001-2025 funda




































