
Omschrijving
Wonen op een hofje in Kralingen – een unieke kans voor jonge gezinnen
Soms stap je een huis binnen en weet je het meteen: Dit is zeldzaam. Midden op een rustig, kindvriendelijk en autovrije hofje, in het hart van het geliefde project “De Weg naar Kralingen”, staat deze prachtige hoekwoning te wachten op nieuw gezin dat hier net zo fijn gaat wonen als de huidige bewoners.
Vanaf het eerste moment valt op hoeveel licht en ruimte dit huis biedt. Doordat de woning op de hoek ligt, geniet je niet alleen van extra privacy, maar ook van de grootste tuin van het rijtje. Met vijf volwaardige slaapkamers biedt het huis volop mogelijkheden; of je nu ruimte zoekt voor een groot gezin, een werkkamer aan huis, of gewoon extra comfort.
De tuin is met zijn ligging op het zuiden zonnig, groen en verassend sfeervol. Zodra je via de openslaande deuren naar buiten stapt, komt de geur van bloeiende jasmijn je tegemoet. Achter in de tuin, verscholen achter de vrijstaande schuur, is er bovendien plek genoeg voor de bakfiets. Uit het zicht, maar altijd binnen handbereik.
De woning is in 2018 opgeleverd en voldoet aan alle hedendaagse gemakken. Echter is de oude, statige stijl waar Kralingen om bekend staat, gewaarborgd. Tevens behoort tot de woning een eigen parkeerplaats binnen een afgesloten garage.
Kortom: een uitzonderlijk fijne plek om te wonen, op een locatie die zelden beschikbaar komt.
Nieuwsgierig geworden? Dat begrijpen we. Maak snel een afspraak voor een bezichtiging. Onze makelaars vertellen u graag meer over dit unieke object.
DE WEG NAAR KRALINGEN
De locatie van dit sfeervolle nieuwbouwproject is perfect. De stad op fietsafstand, de winkels in de nabije omgeving en de Kralingse Plas ligt praktisch om de hoek! Hier woont u heerlijk met uw gezin. Het project bevindt zich tussen de dynamiek van de stad en de rust van de Kralingse Plas en het Bos. Het contrast tussen deze twee werelden maakt ‘De weg naar Kralingen’ uniek en zeer gewild.
INDELING
Entree in hal met meterkast, garderobe en modern toilet met fonteintje.
De ruime en lichte woonkamer is gelegen aan de achterzijde van de woning en sfeervol biedt middels openslaande deuren toegang tot de tuin. De woonkamer is afgewerkt met een eikenhouten visgraatvloer voorzien van vloerverwarming.
Aan de voorzijde van de woning bevindt zich een luxe keuken met groot kookeiland waar iedereen zich vanzelf omheen verzamelt. Ideaal voor gezellige etentjes, borrels of gewoon een rustige ochtend met een kop koffie. Tot slot is de woonkamer voorzien van een praktische bergkast.
Eerste verdieping:
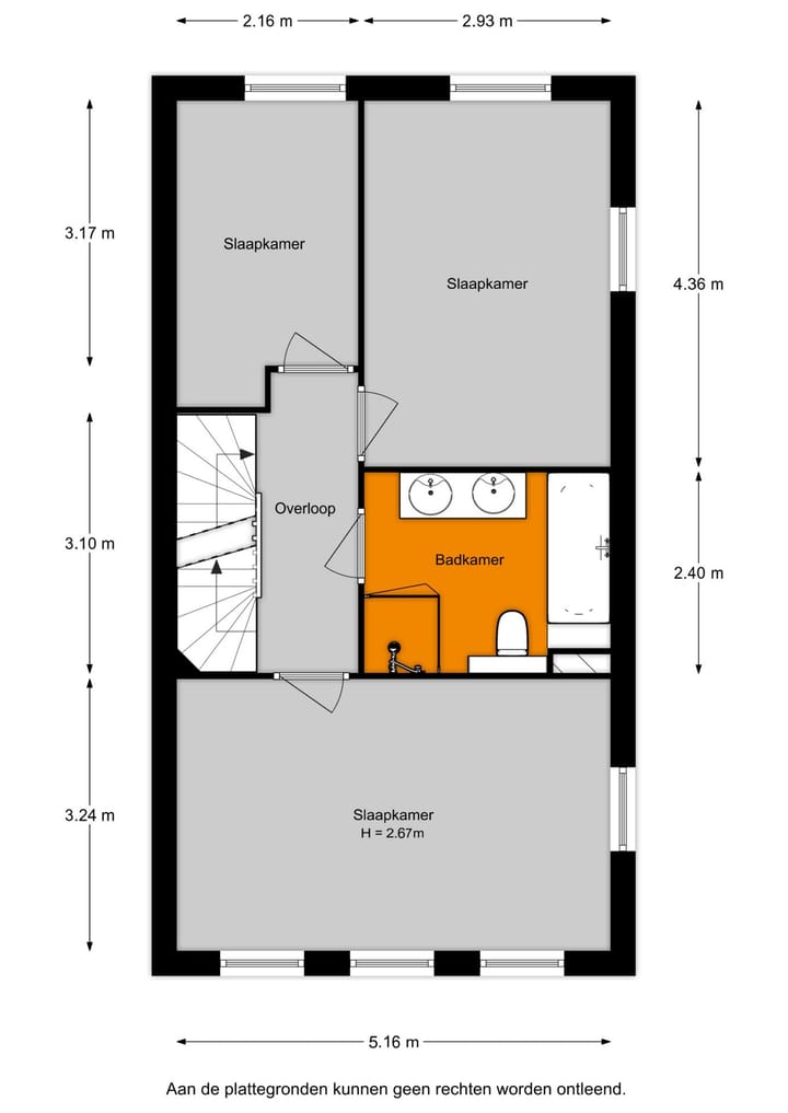
Overloop met trap naar de 2e verdieping en toegang tot de diverse vertrekken. 3 ruime slaapkamers (17, 13 en 6,5 m²) waarbij 2 verrassend licht zijn door de hoekligging alsmede de vele raampartijen. De luxe badkamer beschikt over vloerverwarming en is voorzien van een dubbele wastafel met meubel, ligbad en 2e toilet.
Tweede verdieping:
Overloop met toegang tot de 4e en 5e (14 en 16 m²) slaapkamers. Dankzij de twee grote dakkapellen voelen deze kamers verrassend ruim en licht aan – perfect als kinderkamers, werkkamers of logeerruimtes. Verder is er nog een technische ruimte met aansluitingen voor de wasmachine en droger, de unit mechanische ventilatie en de omvormer voor de 6 zonnepanelen.
Parkeren:
En parkeren? Dat doet u zorgeloos op uw eigen parkeerplaats op een afgesloten binnenterrein. De parkeerplaats is inbegrepen in de vraagprijs.
BIJZONDERHEDEN:
- Bouwjaar 2018;
- Eigen grond;
- HOEKwoning met circa 143 m² woonoppervlakte;
- 2 grote dakkapellen geplaatst;
- 5 (!) royale slaapkamers;
- eigen parkeerplaats in de garage (inbegrepen in de vraagprijs);
- vrijstaande schuur met stroomvoorziening en voorzien van 6 zonnepanelen;
- Verwarming middels stadsverwarming, warm water middels collectieve voorziening.
- energielabel A;
- vloerverwarming op begane grond;
- volledig geïsoleerd en voorzien van dubbelglas;
- oplevering in overleg.
KOOPOVEREENKOMST
Van een juridische overeenkomst is pas sprake als de koopovereenkomst door zowel verkoper als koper is ondertekend.
DISCLAIMER
Alle verstrekte informatie moet beschouwd worden als een uitnodiging tot het doen van een bod of om in onderhandeling te treden. Er kunnen geen rechten worden ontleend aan deze woninginformatie.
De Meetinstructie is gebaseerd op de NEN2580. De Meetinstructie is bedoeld om een meer eenduidige manier van meten toe te passen voor het geven van een indicatie van de gebruiksoppervlakte. De Meetinstructie sluit verschillen in meetuitkomsten niet volledig uit, door bijvoorbeeld interpretatieverschillen, afrondingen of beperkingen bij het uitvoeren van de meting.
De teksten en impressies bedoeld om een goede indruk te geven van het object. Aan de inhoud ervan is de grootst mogelijke zorg besteed. Desondanks is alle informatie nadrukkelijk onder voorbehoud. Hieraan kunnen geen rechten worden ontleend.
Kenmerken
Overdracht
- Laatste vraagprijs
- € 875.000 kosten koper
- Vraagprijs per m²
- € 6.119
- Status
- Verkocht
Bouw
- Soort woonhuis
- Eengezinswoning, hoekwoning
- Soort bouw
- Bestaande bouw
- Bouwjaar
- 2017
- Soort dak
- Zadeldak bedekt met pannen
Oppervlakten en inhoud
- Gebruiksoppervlakten
- Wonen
- 143 m²
- Externe bergruimte
- 11 m²
- Perceel
- 124 m²
- Inhoud
- 510 m³
Indeling
- Aantal kamers
- 6 kamers (5 slaapkamers)
- Aantal badkamers
- 1 badkamer en 1 apart toilet
- Badkamervoorzieningen
- Dubbele wastafel, ligbad, en toilet
- Aantal woonlagen
- 3 woonlagen
- Voorzieningen
- Dakraam, frans balkon, glasvezelkabel, mechanische ventilatie, TV kabel, en zonnepanelen
Energie
- Energielabel
- Isolatie
- Volledig geïsoleerd
- Verwarming
- Stadsverwarming en gedeeltelijke vloerverwarming
- Warm water
- Centrale voorziening
Kadastrale gegevens
- ROTTERDAM R 7831
- Kadastrale kaart
- Oppervlakte
- 124 m²
- Eigendomssituatie
- Volle eigendom
- ROTTERDAM R 7848
- Kadastrale kaart
- Eigendomssituatie
- Volle eigendom
Buitenruimte
- Balkon/dakterras
- Frans balkon aanwezig
- Ligging
- Aan rustige weg en in woonwijk
- Tuin
- Achtertuin
- Achtertuin
- 58 m² (10,70 meter diep en 5,45 meter breed)
- Ligging tuin
- Gelegen op het zuiden bereikbaar via achterom
Bergruimte
- Schuur/berging
- Vrijstaande houten berging
- Voorzieningen
- Elektra
Parkeergelegenheid
- Soort parkeergelegenheid
- Betaald parkeren, openbaar parkeren en parkeervergunningen
Foto's 64
© 2001-2026 funda































































