Dit huis op Funda: https://www.funda.nl/detail/koop/rotterdam/huis-grindweg-12/43072110/

Omschrijving
DRVM presenteert: Een karaktervolle jaren ’20 villa, waar tijdloos design en dagelijkse luxe elkaar ontmoeten
*English below*
Aan de rand van het geliefde Hillegersberg, op letterlijk loopafstand van de Bergse Dorpsstraat en de voor- en achterplas, wacht een woning die méér is dan een huis. Dit is een levensstijl. Een plek waar licht, ruimte en warmte samenkomen, waar elke verdieping zijn eigen verhaal vertelt, en waar je elke dag opnieuw wordt omarmd door rust, luxe en stijl.
Het gehele interieur van de woning is drie jaar geleden tot in detail ontworpen door Lotte Faassen x studio de Blieck. Elk element, van de keuken tot de cinewall, ademt een doordachte, harmonieuze stijl waarin materialen en kleuren elkaar moeiteloos versterken. Zo keert het marmer uit de keuken terug in de living en het warme hout van de living in het bed op de masterverdieping – een perfecte doorloop van elegantie en comfort.
RONDLEIDING
Buitenkomst & Entree – Karakter van de jaren ’20, luxe van nu
Een elektrisch hek opent naar een brede oprit met ruimte voor drie auto’s. De klassieke gevel uit 1924 nodigt je uit. De charmante erker met leiendak aan de voorzijde geeft dit huis direct z’n ziel – een favoriet detail dat je meteen bijblijft.
Via de zijingang kun je praktisch de boodschappen binnenbrengen, maar de echte entree is via de voordeur, halverwege de woning. Achter die voordeur begint de beleving.
Woonlaag aan de tuinzijde – het hart van het huis
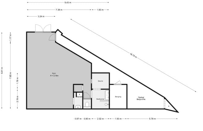
Stap een paar treden af naar de tuinlaag – de leefkeuken, tuinkamer, luxe aangelegde tuin en zeer royaal losstaand buitengebouw van ruim 94m2 vormen hier samen een indrukwekkend geheel. Deze verdieping voelt als een loft, ontworpen om te leven, te koken, te eten, te ontspannen.
De keuken is uitgerust met losse ABK-pitten, gaskookpit, Gaggenau-oven en warmhoudlade, royale koelkast, Quooker en wijnklimaatkast — perfect in stijl en functionaliteit. De bijkeuken biedt extra bergruimte en een praktische ingebouwde washoek met extra keuken.
De indrukwekkende cinewall met spiegelwand met ingebouwde TV bevindt zich aan de sfeervolle tuinzijde. Via de glazen aanbouw aan de tuinzijde bereik je de tuinkamer: een verlengstuk van het huis met heaters, lichtkoepel, TV-hoek en eettafel. Hier geniet je het hele jaar door van de vele zonuren en het uitzicht op de tuin.
De tuin – en een onverwachte verrassing
De tuin is onder handen genomen door een landschapsarchitect – stijlvol, overzichtelijk, met speelse hoekjes en veel zon.
Achterin de tuin wacht een echte verrassing: een ruim en compleet bijgebouw met eigen keuken, sauna, toilet en douche. Deze bijzondere extra leefruimte is ideaal als au pairwoning, verblijf voor een ouder thuiswonend kind, een ruime werk- of hobbyplek of een luxe gastenverblijf. Het tuinhuis voegt een geheel nieuwe dimensie toe aan het wooncomfort en de flexibiliteit van het huis.
Net als de glazen aanbouw aan de tuinlaag, wordt deze ruimte niet meegerekend in het officiële aantal vierkante meters, maar ze betekenen zeker een forse meerwaarde en vergroten het leefoppervlak en de belevingswaarde van de woning enorm.
Woonlaag boven – licht, lucht, leven
Terug op de woonlaag met de voordeur vind je de elegante living – licht, ruim en stijlvol. Een marmeren cinewall met ingebouwde TV, een gashaard, subtiele inbouwspots en warme houten accenten brengen sfeer.
Aan de overzijde bevinden zich twee sfeervolle kinderkamers – met maatwerkkasten, inbouwspots en slimme oplossingen. Eén van de kamers is voorzien van een eigen wastafel en inloopdouche.
Aan de zijkant van deze verdieping is een extra entree voor dagelijkse boodschappen – praktisch en onopvallend.
Bovenverdieping – het master retreat
De volledige bovenverdieping is ingericht als master suite. De slaapkamer is ruim, rustgevend en met veel daglicht. Karaktervolle houten balken aan het plafond zorgen voor extra sfeer, de vloer is voorzien van luxe vloerbedekking.
Aan weerszijden bevinden zich twee inloopkasten, waarvan één met centraal kleding-eiland – alsof je door je eigen boutique loopt. Vanuit de master heb je toegang tot een balkon aan de tuinzijde, een intieme plek om ’s ochtends te genieten van de frisse lucht en het groen van de tuin.
De badkamer sluit stijlvol aan bij de badkamer op de verdieping daaronder en is voorzien van een ruime inloopdouche, losstaand ligbad, toilet en dubbele wastafel – een plek voor wellness en comfort.
OMGEVING: luxe, groen en centraal
Grindweg 12 ligt in het gewilde Hillegersberg, een groene en rustige wijk waar luxe wonen samenkomt met een dorpse sfeer en toch dichtbij het bruisende stadsleven van Rotterdam. Met hoogwaardige woningen, nabijheid van de Bergse Dorpsstraat vol exclusieve winkels en restaurants, en prachtige natuurgebieden zoals de Bergse Plassen, biedt deze locatie een perfecte balans tussen rust, comfort en bereikbaarheid. Ideaal voor wie wil genieten van luxe, ruimte en hoogwaardige voorzieningen op een toplocatie.
PRAKTISCHE LUXE EN BIJZONDERHEDEN:
- woonoppervlakte 185 m2, tuinkamer 30 m2 + bijgebouw 94 m2
- Perceel oppervlakte 618 m2
- Energielabel A
- Airco door het gehele huis
- Spiegel-TV wand & cinewall
- Volledig maatwerk in kasten en afwerking
- Trapverlichting in de muur geïntegreerd
- Bouwjaar 1924, volledige verbouwing in 2017
- Spots en sfeerverlichting in alle hoeken
- Ruim losstaand tuinhuis met keuken, sauna, toilet en douche – ideaal als au pairwoning of gastenverblijf
- Elektrisch hek en oprit met ruimte voor 3 auto’s
- Letterlijk op loopafstand van winkels, horeca en natuur
Waar je woont is wie je bent
DRVM Makelaars. Wij zijn de makelaar van de verkoper. Wij adviseren u om bij aankoop uw eigen makelaar mee te nemen. Aan deze aanbiedingstekst kunnen geen rechten worden ontleend.
-----------------------
ENGLISH
DRVM presents: A characterful 1920s villa where timeless design meets everyday luxury
*Dutch above*
Nestled on the edge of beloved Hillegersberg, just a literal stroll from the Bergse Dorpsstraat and both lakes, awaits a home that is so much more than a house. This is a lifestyle. A place where light, space and warmth come together, where every floor tells its own story, and where you’re wrapped daily in calm, luxury and style.
The entire interior was redesigned in meticulous detail three years ago by Lotte Faassen x studio de Blieck. Every element—from the kitchen to the bespoke cinewall—embodies a thoughtful, harmonious style where materials and tones complement each other effortlessly. The marble in the kitchen returns in the living space, and the warm wood from the living room reappears in the master suite’s custom bed — a seamless flow of elegance and comfort.
PROPERTY TOUR
Arrival & Entrance – 1920s charm, modern-day luxury
An electric gate opens onto a wide driveway with space for three cars. The classic 1929 façade welcomes you in. The charming bay window with slate roof at the front instantly gives this house its soul — a standout detail that stays with you.
There’s a side entrance perfect for bringing in groceries, but the true arrival is through the main door, located halfway down the house. It’s where the experience begins.
Garden level – the heart of the home
Step a few stairs down to the garden level: the live-in kitchen, garden room, beautifully landscaped garden, and generous detached garden building together form an impressive ensemble. This level feels like a loft, designed for living, cooking, dining, and relaxing.
The kitchen is fitted with separate ABK burners, a gas hob, Gaggenau oven and warming drawer, a generous fridge, Quooker, and a wine climate cabinet — all perfectly matched in style and function. The adjoining utility room offers additional storage and a built-in laundry zone with secondary kitchenette.
An eye-catching cinewall with mirrored TV wall anchors the garden-facing side. Through the glass extension, you reach the garden room — an extension of the home complete with heaters, skylight, TV lounge, and dining table. Here, you can enjoy the sunlight and garden views all year round.
The garden – with a surprising twist
Designed by a landscape architect, the garden is stylish and well-structured, with playful nooks and all-day sun.
At the rear, a true surprise awaits: a spacious, fully-equipped garden building with its own kitchen, sauna, toilet, and shower. This exceptional extra living space is perfect for an au pair, a live-at-home adult child, a spacious home office or hobby area, or a luxurious guest retreat. It adds a whole new dimension to the home’s comfort and flexibility.
Just like the glass garden extension, this structure isn’t included in the official square meter count, but it undeniably adds significant value, both in lifestyle and usable space.
Main floor – light, air, life
Back on the main floor, where the front door opens, you’ll find the elegant living room — bright, spacious, and stylish. A marble cinewall with integrated TV, a gas fireplace, subtle recessed lighting, and warm wooden accents set the tone.
Across the hallway are two charming children’s bedrooms, each with custom cabinetry, integrated lighting, and smart solutions. One of the rooms features its own washbasin and walk-in shower.
There’s also a discreet side entrance on this floor, ideal for daily errands.
Upper floor – the master retreat
The entire top floor is dedicated to the master suite. The bedroom is spacious, serene, and bathed in daylight. Characterful exposed wooden beams add warmth, and the floor is finished with luxurious carpeting.
On either side are two walk-in closets, one of which includes a central island — like walking through your own boutique. The master bedroom opens onto a private balcony overlooking the garden — the perfect spot to enjoy your morning coffee amid the greenery.
The bathroom aligns in style with the one below and features a large walk-in shower, freestanding bathtub, toilet, and double vanity — your private wellness space.
SURROUNDINGS: luxury, greenery, and connection
Grindweg 12 is located in sought-after Hillegersberg, a leafy, peaceful neighborhood where upscale living meets village charm — just minutes from the vibrant heart of Rotterdam. With exclusive homes, proximity to the Bergse Dorpsstraat’s fine shops and restaurants, and the natural beauty of the Bergse Plassen, this location offers the perfect balance of peace, comfort, and accessibility. Ideal for those seeking luxury, space, and top-tier amenities in a premier setting.
PRACTICAL LUXURY & FEATURES
- Living space: approx. 185 m2, garden room 30 m2 en and garden building 94 m2
- Plot size: 618 m2
- Energy label A
- Air conditioning throughout the home
- Mirror-TV wall & cinewall
- Fully custom cabinetry and finishes
- Wall-integrated staircase lighting
- Built in 1924, fully renovated in 2017
- Ambient and spot lighting throughout
- Spacious detached garden building with kitchen, sauna, toilet, and shower — ideal as au pair unit or guesthouse
- Electric gate and driveway with space for 3 cars
- Truly walking distance to shops, restaurants, and nature
Where you live is who you are.
DRVM Makelaars
We represent the seller. We recommend that you engage your own buying agent. No rights can be derived from this listing.
Kenmerken
Overdracht
- Laatste vraagprijs
- € 2.150.000 kosten koper
- Vraagprijs per m²
- € 11.622
- Status
- Verkocht
Bouw
- Soort woonhuis
- Villa, vrijstaande woning
- Soort bouw
- Bestaande bouw
- Bouwperiode
- 1906-1930
- Specifiek
- Gedeeltelijk gestoffeerd
Oppervlakten en inhoud
- Gebruiksoppervlakten
- Wonen
- 185 m²
- Overige inpandige ruimte
- 30 m²
- Externe bergruimte
- 94 m²
- Perceel
- 618 m²
- Inhoud
- 640 m³
Indeling
- Aantal kamers
- 7 kamers (3 slaapkamers)
- Aantal badkamers
- 2 badkamers en 1 apart toilet
- Badkamervoorzieningen
- 2 inloopdouches, 2 wastafelmeubels, dubbele wastafel, toilet, en vloerverwarming
- Aantal woonlagen
- 2 woonlagen en een zolder
- Voorzieningen
- Airconditioning
Energie
- Energielabel
- Isolatie
- Dubbel glas
- Verwarming
- Cv-ketel
- Warm water
- Cv-ketel
- Cv-ketel
- ATAG (gas gestookt combiketel uit 2017, eigendom)
Kadastrale gegevens
- ROTTERDAM D 2319
- Kadastrale kaart
- Oppervlakte
- 618 m²
- Eigendomssituatie
- Volle eigendom
Buitenruimte
- Ligging
- In woonwijk
- Tuin
- Tuin rondom
Bergruimte
- Schuur/berging
- Vrijstaande stenen berging
- Voorzieningen
- Elektra, verwarming en stromend water
- Isolatie
- Dubbel glas en volledig geïsoleerd
Parkeergelegenheid
- Soort parkeergelegenheid
- Op eigen terrein en openbaar parkeren
Foto's 56
© 2001-2026 funda























































