Dit huis op Funda: https://www.funda.nl/detail/koop/rotterdam/huis-hordijk-124/43854111/

Omschrijving
Welkom bij deze karakteristieke HOEK-woning gelegen aan de Hordijk in Rotterdam-IJsselmonde! Deze woning is uniek vanwege de speelse indeling, de ruimte in de woning én wat zeker niet te missen is, is de diepe achtertuin met daarbij de ruime, vrijstaand tuinhuis. Maak snel een bezichtigingsafspraak om deze woning te bewonderen.
* Tuinhuis van maar liefst ca. 20m2 met een diepe achtertuin;
* Gelegen op EIGEN grond;
* Dubbelglas en gedeeltelijke vloerisolatie en dakisolatie.
Indeling:
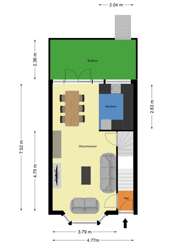
Dijkniveau:
* Hal met toegang tot de woonkamer en de trapopgang naar de eerste verdieping.
* Doorzon woonkamer met aan de voorzijde een erker, openslaande deuren aan de achterzijde en een houtkachel. De benedenverdieping is voorzien van vloerverwarming.
* Aan de achterzijde van de woonkamer bevindt zich de open keuken. Deze keuken is 2 jaar oud en voorzien van een inductiekookplaat, afzuigkap, koelkast, combimagnetron en een vaatwasser.
* Vanuit de woonkamer en keuken is er toegang tot het ruime balkon. Het onderhuis is 2,5 meter uitgebouwd waardoor er een ruim balkon is ontstaan. Vanaf het balkon is er ook toegang tot de achtertuin.
* De achtertuin is gelegen op het zuidwesten, heeft een eigen achterom en is voorzien van een ruime (ca. 20m2) vrijstaand tuinhuis. Het tuinhuis is op beton gefundeerd, voorzien van elektra en water én met kunststof delen afgewerkt.
Souterrain:
* Het souterrain heeft een woonoppervlakte van maar liefst 48 m2.
* Ruime overloop met het toilet, vaste kast met de wasmachineaansluiting en de meterkast.
* In het souterrain bevinden zich tevens drie slaapkamers, een toilet en een badkamer.
* De zeer ruime badkamer is voorzien van een douchecabine, wastafel en een extra keukenblok.
* Ook vanuit het souterrain is er toegang tot de achtertuin.
1e verdieping:
* Overloop met toegang tot de badkamer, de master bedroom en de vliering.
* De master bedroom is voorzien van twee vaste kasten. Er is een mogelijkheid om een wand te plaatsen zodat er twee (slaap)kamers ontstaan.
* De 2e badkamer is bereikbaar via de master bedroom en de overloop. Deze badkamer is voorzien van een inloopdouche, wastafel, toilet en een handdoekenradiator.
Kenmerken:
* Bouwjaar: 1928
* Eigen grond
* Ruim tuinhuis van maar liefst 20 m2
* Woonoppervlakte: 116 m2
* Perceeloppervlakte: 194 m2
* Inhoud: 428 m3
* Er bevinden zich 9 zonnepanelen op de schuur en 6 op het dak van de woning
* Vloerverwarming aanwezig op de benedenverdieping
* CV-Combiketel Ferrroli 2003
* Energielabel C
* Houten kozijnen met dubbele beglazing
* Gedeeltelijk voorzien van vloerisolatie en dakisolatie
* Gewenste oplevering: Eind april
De woning is gelegen in de wijk IJsselmonde. Deze wijk valt onder de opkoopbescherming. Dit houdt in dat de woning niet gekocht mag worden voor verhuur, al gelden er uitzonderingen zoals de verhuur aan een kind of familielid. Kijk voor meer informatie op de website van de gemeente Rotterdam.
Ondanks dat grote zorgvuldigheid is betracht bij het samenstellen van de verkoopinformatie wordt voor de onjuistheid van de vermelde gegevens door de eigenaar noch door de verkopend makelaar enige aansprakelijkheid aanvaard.
In de koopovereenkomst wordt een ouderdoms- en asbestclausule opgenomen.
Rechtsgeldige koopovereenkomst pas ná ondertekening:
Een mondelinge overeenstemming tussen de particuliere verkoper en de particuliere koper is niet rechtsgeldig. Met andere woorden: er is (nog) geen koop. Er is pas sprake van een rechtsgeldige koop als de particuliere verkoper en de particuliere koper de koopovereenkomst hebben ondertekend. Dit vloeit voort uit artikel 7:2 Burgerlijk Wetboek. Een bevestiging van de mondelinge overeenstemming per e-mail of een toegestuurd concept van de koopovereenkomst wordt overigens niet gezien als een ‘ondertekende koopovereenkomst’.
Kenmerken
Overdracht
- Laatste vraagprijs
- € 415.000 kosten koper
- Vraagprijs per m²
- € 3.578
- Status
- Verkocht
Bouw
- Soort woonhuis
- Eengezinswoning, hoekwoning (dijkwoning)
- Soort bouw
- Bestaande bouw
- Bouwjaar
- 1928
- Soort dak
- Zadeldak bedekt met pannen
Oppervlakten en inhoud
- Gebruiksoppervlakten
- Wonen
- 116 m²
- Gebouwgebonden buitenruimte
- 13 m²
- Externe bergruimte
- 20 m²
- Perceel
- 194 m²
- Inhoud
- 428 m³
Indeling
- Aantal kamers
- 5 kamers (4 slaapkamers)
- Aantal woonlagen
- 3 woonlagen
- Voorzieningen
- Buitenzonwering en zonnepanelen
Energie
- Energielabel
- C
- Isolatie
- Dakisolatie, dubbel glas en vloerisolatie
- Verwarming
- Cv-ketel
- Warm water
- Cv-ketel
- Cv-ketel
- Ferroli ( combiketel uit 2003, eigendom)
Kadastrale gegevens
- IJSSELMONDE E 2440
- Kadastrale kaart
- Oppervlakte
- 194 m²
- Eigendomssituatie
- Volle eigendom
Buitenruimte
- Ligging
- Aan rustige weg en in woonwijk
- Tuin
- Achtertuin en voortuin
Bergruimte
- Schuur/berging
- Vrijstaande stenen berging
Parkeergelegenheid
- Soort parkeergelegenheid
- Openbaar parkeren
Foto's 57
© 2001-2025 funda
























































