
Omschrijving
*** NU IN VERKOOP ***
EEN LEUKE EENGEZINSWONING IN ROTTERDAM - PRINSENLAND. DE WONING TELT O.A. 3 RUIME SLAAPKAMERS EEN INPANDIGE BERGING EN EEN VOORTUIN OP HET ZUIDEN.
DE MAHATMA GANDHISTRAAT IS EEN RUSTIGE STRAAT, GELEGEN OP EEN CENTRALE LOCATIE NABIJ VRIJWEL ALLE DENKBAAR BENODIGDE VOORZIENINGEN.
WETENSWAARDIGHEDEN & MATEN:
De begane grond is opgedeeld in een entree (2m²) met meterkast, een woonkamer (23m²) met schuifpui naar voortuin,
een eenvoudige half open keuken (7m²) met inbouw apparatuur en een tussenhal (1.2m²) met trapopgang, deur naar berging en deur naar toilet.
De berging (5m²) is ook via het achterpad van buitenaf bereikbaar.
In deze berging is de aansluiting voor wasmachine en droger aanwezig.
Het toilet is in 2021 compleet vernieuwd, evenals de trap met eiken houten traptreden.
Op de begane grond zijn de muren in de woonkamer vorig jaar strak gestuct, en er ligt een houten/grenen vloer.
Op vrijwel de begane grond ligt een houten / grenen vloer.
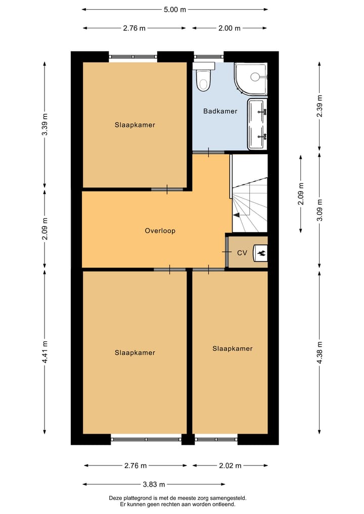
Op de eerste etage treffen we 3 slaapkamers: 2 kamers aan de voorzijde (12.71m² & 8.85m²) en 1 kamer (9.36m²) aan de achterzijde.
Alle 3 de slaapkamers zijn voorzien van rolluiken.
De badkamer (5m²) is geheel betegeld en is voorzien van een wandcloset, dubbel wastafelmeubel met verlichte spiegelkast, radiator
en douche cabine met regendouche.
Op de overloop (9m²) treffen we ook een kast met ruimte voor de C.V. ketel.
De gang op deze etage is extra breed en biedt zelfs de mogelijkheid om een vierde slaapkamer of een inloopkast te creëren.
De gehele eerste etage (m.u.v. badkamer) is voorzien van een doorlopende laminaat vloer.
De hoofd tuin / voortuin is gelegen op het zuiden en meet 7.7x5.6= 43,12m².
Deze is geheel afgezet en voorzien van bestrating met daar omheen vaste, kleurrijke beplanting, plus een buitenkraan.
Voor de benodigde schaduw is er elektrische zonwering aanwezig.
Aan de achterzijde bevindt zich nog een kleine achtertuin (2.88x5.6=16.13m²), welke vanuit de berging bereikbaar is.
LOCATIE;
De Mahatma Gandhistraat is een rustige, brede straat in de wijk Prinsenland.
Winkels, openbaar vervoer, dagopvang, scholen, sport, recreatie, uitvalswegen en medische voorzieningen
zijn vanaf dit adres op korte afstand te voet, met de fiets of per auto bereikbaar.
Op 'winkelcentrum Prinsenland' kunt u terecht voor de dagelijkse boodschappen.
Het verderop gelegen 'Alexandrium' biedt een breed scala aan winkels om uitgebreid te shoppen.
Recreëren kan in het nabij gelegen park. Of je pakt de fiets richting het Kralingse bos, wat op 10 minuten
afstand ligt.
Naast een medisch centrum in de wijk is ook het IJsselland ziekenhuis binnen enkele minuten bereikbaar.
In Prinsenland bevinden zich een drietal basisscholen.
Diverse scholen in het voortgezet onderwijs treft u even buiten Prinsenland en zijn eveneens snel bereikbaar.
Er zijn in de wijk ook goede voorzieningen voor wat betreft O.V. (bus & metro).
Treinstation Alexander ligt op slechts 5 minuten afstand.
Plus de uitvalswegen A16 & A20 ; ook deze zijn in slechts enkele minuten bereikbaar.
SPECIFICATIES:
Bouwjaar: 1994
Woonoppervlakte: 99m²
Overig inpandige ruimte: 5m²
Inhoud: 344m³
Gelegen op een perceel van 107m² waarvan de canon is afgekocht t/m 27-10-2053. De einddatum van het recht is 22-10-2091
Isolatie: dak, muur & vloerisolatie, nagenoeg geheel voorzien van dubbel glas (uitgezonderd het badkamerraam)
Energielabel: A einddatum 22-06-2032
Verwarming & warm water: C.V. combi ketel d.d. 2010 'Intergas'
Mechanische ventilatie d.d. 2018
Oplevering in overleg
INTERESSE? MAAK DAN SNEL EEN AFSPRAAK!
Ons advies is om bij het kopen van je nieuwe huis je eigen NVM-makelaar mee te nemen.
TOELICHTINGSCLAUSULE NEN2580
De Meetinstructie is gebaseerd op de NEN2580.
De Meetinstructie is bedoeld om een meer eenduidige manier van meten toe te passen voor het geven van een indicatie van de gebruiksoppervlakte.
De Meetinstructie sluit verschillen in meetuitkomsten niet volledig uit, door bijvoorbeeld interpretatieverschillen,
afrondingen of beperkingen bij het uitvoeren van de meting.
KOOPOVEREENKOMST PAS RECHTSGELDIG NA ONDERTEKENING
Een mondelinge overeenstemming tussen de particuliere verkoper en de particuliere koper is niet rechtsgeldig.
Met andere woorden: er is geen koop. Er is pas sprake van een rechtsgeldige koop als de particuliere verkoper en de particuliere koper de koopovereenkomst hebben ondertekend.
Dit vloeit voort uit artikel 7:2 Burgerlijk Wetboek.
Een bevestiging van de mondelinge overeenstemming per e-mail of een toegestuurd concept van de koopovereenkomst wordt overigens niet gezien als een 'ondertekende koopovereenkomst'
“Deze informatie is door ons met de nodige zorgvuldigheid samengesteld.
Onzerzijds wordt echter geen enkele aansprakelijkheid aanvaard voor enige onvolledigheid, onjuistheid of anderszins, dan wel de gevolgen daarvan.
Alle opgegeven maten en oppervlakten zijn indicatief.”
Kenmerken
Overdracht
- Laatste vraagprijs
- € 410.000 kosten koper
- Vraagprijs per m²
- € 4.141
- Status
- Verkocht
Bouw
- Soort woonhuis
- Eengezinswoning, tussenwoning
- Soort bouw
- Bestaande bouw
- Bouwjaar
- 1994
- Specifiek
- Gedeeltelijk gestoffeerd
- Soort dak
- Plat dak bedekt met bitumineuze dakbedekking
Oppervlakten en inhoud
- Gebruiksoppervlakten
- Wonen
- 99 m²
- Overige inpandige ruimte
- 5 m²
- Gebouwgebonden buitenruimte
- 2 m²
- Perceel
- 107 m²
- Inhoud
- 344 m³
Indeling
- Aantal kamers
- 4 kamers (3 slaapkamers)
- Aantal badkamers
- 1 badkamer en 1 apart toilet
- Badkamervoorzieningen
- Douche, dubbele wastafel, toilet, en wastafelmeubel
- Aantal woonlagen
- 2 woonlagen
- Voorzieningen
- Buitenzonwering, glasvezelkabel, mechanische ventilatie, rolluiken, en schuifpui
Energie
- Energielabel
- A
- Isolatie
- Dakisolatie, grotendeels dubbelglas, muurisolatie en vloerisolatie
- Verwarming
- Cv-ketel
- Warm water
- Cv-ketel
- Cv-ketel
- Intergas (gas gestookt combiketel uit 2010, eigendom)
Kadastrale gegevens
- KRALINGEN C 5358
- Kadastrale kaart
- Oppervlakte
- 107 m²
- Eigendomssituatie
- Gemeentelijk eigendom belast met erfpacht (einddatum erfpacht: 22-10-2091)
- Lasten
- Afgekocht tot 27-10-2053
Buitenruimte
- Ligging
- Aan rustige weg en in woonwijk
- Tuin
- Achtertuin en voortuin
- Voortuin
- 43 m² (7,70 meter diep en 5,60 meter breed)
- Ligging tuin
- Gelegen op het zuiden
Bergruimte
- Schuur/berging
- Inpandig
- Voorzieningen
- Elektra en stromend water
Parkeergelegenheid
- Soort parkeergelegenheid
- Openbaar parkeren
Foto's 39
© 2001-2025 funda






































