Dit huis op Funda: https://www.funda.nl/detail/koop/rotterdam/huis-volmarijnstraat-32/43919749/

Omschrijving
KOM KIJKEN EN WORDT VERLIEFD OP DEZE RUIME, GOED ONDERHOUDEN EN BIJZONDER CHARMANTE 4-KAMER TUSSENWONING MET BESLOTEN STADSTUIN OP DE ZONKANT, WAAR HET HEERLIJK TOEVEN IS.
Rustige ligging aan karakteristieke straat met actieve en betrokken bewoners, op loopafstand van de Nieuwe Binnenweg met diverse leuke horecagelegenheden, openbaar vervoer, designwinkels en winkels voor de dagelijkse voorzieningen.
Tevens nabij alle Centrumvoorzieningen, Musea en uitvalswegen.
INDELING:
Eigen entree vanaf straatzijde, vestibule/hal met garderobe, doorzon-woonkamer met apart zit- en eetgedeelte, open keuken met kookeiland, diverse apparatuur, Quooker, doorlopend hardhouten vloer, Finoven/houtkachel en deur naar achtertuin, trapkast met meterkast, opgang naar 1e verdieping.
1e verdieping: Grote multifunctionele werkkamer met mooie lichtinval en inbouwkasten, toilet (hangcloset), doorloop naar ruime slaapkamer met aansluitend doucheruimte met wastafel.
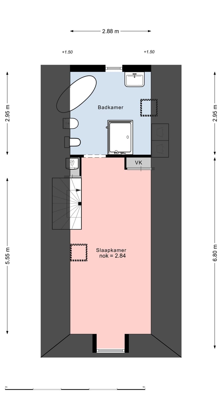
2e verdieping: zeer ruime slaapkamer met hoge nok, fraaie balkenstructuur en dakvenster, doorloop met o.a. CV-ketel, riante badkamer met luxe inrichting: design bad, aparte douche, hangcloset en wastafelmeubel, nis met w.m.a. en droger.
De grote kamer biedt de mogelijkheid om hier een extra slaapkamer te maken.
De beide verdiepingen zijn voorzien van een mooie Bamboe vloer
OVERIGE INFORMATIE:
-Bouwjaar 1895/ 78 m2 eigen grond
-Woonoppervlakte 117 m2
-Plattegronden met (exacte) maten aanwezig
-Rustige ligging aan karakteristieke straat met actieve bewoners
-Betaald parkeren/vergunninghouders
-Kozijnen met dubbel glas (achterzijde kuinststof, voorzijde hout)
-Kozijnen aan de voorzijde zijn recent geschilderd
-Energielabel C
-CV-gas en Finoven/houtkachel (zeer duurzaam; verbrandingsrendement van 92%, voldoet aan de Ecodesignnorm
NEN-EN 15250)
-Glasvezelkabel-aansluiting
-Sfeervolle tuin op het Zuiden
-Oplevering in overleg
-In de koopovereenkomst wordt een ouderdomsclausule opgenomen
Maak snel een afspraak voor een bezichtiging van deze aantrekkelijke eengezinswoning achter fraaie gevel met stadstuin op gewilde locatie.
Bakker & Steffen behartigt de belangen van de verkopende partij. U kunt een aankoopmakelaar aanstellen.
Alle verstrekte informatie moet beschouwd worden als een uitnodiging tot het doen van een bod of om in onderhandeling te treden. Er kunnen geen rechten worden ontleend aan deze woninginformatie. Heeft u een eigen woning en is deze nog niet verkocht? Wij komen graag bij u langs voor een vrijblijvende waarde bepaling.
Kenmerken
Overdracht
- Laatste vraagprijs
- € 585.000 kosten koper
- Vraagprijs per m²
- € 5.000
- Status
- Verkocht
Bouw
- Soort woonhuis
- Eengezinswoning, tussenwoning
- Soort bouw
- Bestaande bouw
- Bouwjaar
- 1895
- Soort dak
- Zadeldak bedekt met pannen
Oppervlakten en inhoud
- Gebruiksoppervlakten
- Wonen
- 117 m²
- Perceel
- 78 m²
- Inhoud
- 395 m³
Indeling
- Aantal kamers
- 4 kamers (3 slaapkamers)
- Aantal badkamers
- 2 badkamers en 1 apart toilet
- Badkamervoorzieningen
- 2 douches, 2 wastafelmeubels, ligbad, en toilet
- Aantal woonlagen
- 3 woonlagen
- Voorzieningen
- Dakraam en rookkanaal
Energie
- Energielabel
- Isolatie
- Dakisolatie, HR-glas en vloerisolatie
- Verwarming
- Cv-ketel en open haard
- Warm water
- Cv-ketel
- Cv-ketel
- Atag (gas gestookt combiketel uit 2009, eigendom)
Kadastrale gegevens
- DELFSHAVEN C 4184
- Kadastrale kaart
- Oppervlakte
- 78 m²
- Eigendomssituatie
- Volle eigendom
Buitenruimte
- Ligging
- Aan rustige weg en in woonwijk
- Tuin
- Achtertuin
- Achtertuin
- 29 m² (6,00 meter diep en 4,75 meter breed)
- Ligging tuin
- Gelegen op het zuiden
Parkeergelegenheid
- Soort parkeergelegenheid
- Betaald parkeren en parkeervergunningen
Foto's 41
© 2001-2026 funda








































