Dit huis op Funda: https://www.funda.nl/detail/koop/ruurlo/huis-beukenoot-25/43955205/

Omschrijving
WAT EEN RUIMTE ZIT ER IN DEZE geschakelde HALFVRIJSTAANDE WONING.
Op een prachtplek, in een rustige kindvriendelijke woonwijk, nabij bossen, NS-station, scholen, zwembad, tennisbanen en centrum, ligt deze ZEER ROYALE UITGEBOUWDE-, GESCHAKELDE HALFVRIJSTAANDE WONING met carport, inpandige garage en bijkeuken. De woning heeft aan de voorzijde uitzicht op de ruim opgezette speeltuin, en de ruime achtertuin ligt op het westen en heeft de mogelijkheid voor diverse zitjes en terrassen.
Indeling:
Begane grond:
Via de voordeur welke grenst aan de royale carport kom je in de hal met open trap, vernieuwd toilet met fontein, meterkast, L-vormige woonkamer, ruimte studeerhoek en grote uitgebouwde en tuingerichte keuken met laminaatvloer. De speelse keukenopstelling is voorzien van inbouwapparatuur (oven, magnetron, gaskookplaat, vaatwasser, koelkast), aansluitend de ruime bijkeuken.
Via de bijkeuken met veel bergruimte naar de inpandige garage/berging.
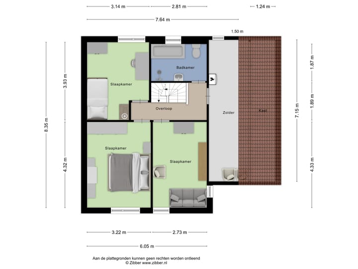
1e verdieping:
Overloop, 3 grote slaapkamers waarvan 2 slaapkamers met vaste kasten, de leuke ruimte boven de garage, CV-ruimte. De badkamer heeft een ligbad, douche, toilet en wastafel.
2e verdieping:
Middels een vaste trap naar overloop, 2 ruime slaapkamers met veel bergruimte achter de knieschotten.
Bijzonderheden:
- Bouwjaar 1992
- CV ketel bouwjaar 1993
- Schilderwerk buiten 2020
- De woning is geheel voorzien van dubbel glas (m.u.v. zolder en zolder boven garage)
- Dak-, vloer- en muurisolatie
- Energielabel C (oud label)
Kenmerken
Overdracht
- Laatste vraagprijs
- € 425.000 kosten koper
- Vraagprijs per m²
- € 2.742
- Status
- Verkocht
Bouw
- Soort woonhuis
- Eengezinswoning, geschakelde 2-onder-1-kapwoning
- Soort bouw
- Bestaande bouw
- Bouwjaar
- 1993
- Soort dak
- Zadeldak bedekt met pannen
Oppervlakten en inhoud
- Gebruiksoppervlakten
- Wonen
- 155 m²
- Overige inpandige ruimte
- 29 m²
- Gebouwgebonden buitenruimte
- 20 m²
- Perceel
- 285 m²
- Inhoud
- 661 m³
Indeling
- Aantal kamers
- 6 kamers (5 slaapkamers)
- Aantal badkamers
- 1 badkamer en 1 apart toilet
- Badkamervoorzieningen
- Ligbad, toilet, en wastafel
- Aantal woonlagen
- 3 woonlagen
- Voorzieningen
- Glasvezelkabel en mechanische ventilatie
Energie
- Energielabel
- Isolatie
- Dakisolatie, dubbel glas, muurisolatie en vloerisolatie
- Verwarming
- Cv-ketel
- Warm water
- Cv-ketel
- Cv-ketel
- Gas gestookt combiketel uit 1993, eigendom
Kadastrale gegevens
- RUURLO I 2904
- Kadastrale kaart
- Oppervlakte
- 285 m²
- Eigendomssituatie
- Volle eigendom
Buitenruimte
- Ligging
- Aan park, aan rustige weg, in bosrijke omgeving, in woonwijk en vrij uitzicht
- Tuin
- Achtertuin, voortuin en zonneterras
- Achtertuin
- 100 m² (10,00 meter diep en 10,00 meter breed)
- Ligging tuin
- Gelegen op het westen
Garage
- Soort garage
- Carport en inpandig
- Capaciteit
- 1 auto
- Voorzieningen
- Elektra
Parkeergelegenheid
- Soort parkeergelegenheid
- Op eigen terrein en openbaar parkeren
Foto's 44
© 2001-2026 funda











































