Dit huis op Funda: https://www.funda.nl/detail/koop/s-graveland/huis-noordereinde-249/43748631/

Omschrijving
***Bijzonder wonen***
Royaal en bijzonder herenhuis gelegen aan de ’s-Gravelandse vaart met prachtig uitzicht over de weilanden van 's-Graveland aan de voorzijde en aan de achterzijde direct aan het water.
Het gemeentelijke monument biedt een overdaad aan prachtige Jugendstil stijlkenmerken uit de bouwperiode van rond 1910. Er zijn nog volop originele elementen uit die periode bewaard gebleven, zoals de gevel met mozaïek, het glas-in-lood en de hoge plafonds met ornamenten.
Het herenhuis maakt onderdeel uit van het prestigieuze nieuwbouwproject "Noordereinde 249", waarin drie hoogwaardige villa’s worden ontwikkeld.
De woning dient gerenoveerd te worden; hiervoor is een herindelingsplan opgesteld welke toegevoegd is aan de presentatie. De woning biedt diverse indelingsmogelijkheden, waardoor u volop de kans krijgt om uw droomwoning naar wens te realiseren.
De woning ligt vlakbij de landgoederen van Natuurmonumenten en jachthavens met vaargebied (o.a. de Kortenhoefse en Loosdrechtse Plassen). Voor uw dagelijkse boodschappen kunt u terecht in winkelcentrum Kortenhoef of Kerkelanden. Meer stadse faciliteiten alsmede meerdere NS stations vindt u, op enkele kilometers afstand, in het nabijgelegen Hilversum. Grote steden als Amsterdam en Utrecht en Schiphol zijn via de nabijgelegen uitvalswegen binnen ca. 30 minuten bereikbaar.
Indeling
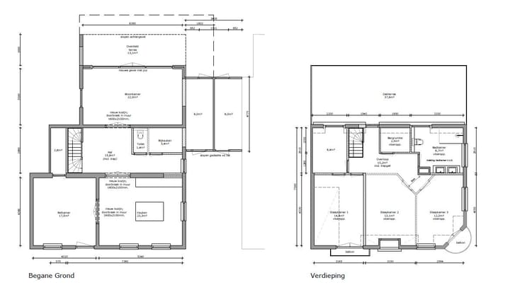
Begane grond: binnenkomst in hal, woonkeuken aan de achterzijde welke voorzien is van diverse inbouwapparatuur en toegang geeft tot zonnig terras met uitkijk op de vaart. Aan de voorzijde treft u een separaat toilet en twee kamers welke als woon-/studeerkamer kunnen dienen, uiteraard bent u vrij een eigen indeling te creëren met in acht name van de gemeentelijke monumentenstatus.
Eerste verdieping: grote master bedroom met hoge plafonds en badkamer v.v. douche en wastafel. Op deze verdieping kunt u bijvoorbeeld drie slaapkamers en een grote badkamer met inloopdouche, bad, toilet en dubbele wastafel creëren.
Bijzonderheden:
- monumentaal herenhuis met Jugendstil stijlkenmerken;
- gelegen op een bijzondere plek aan de ’s-Gravelandse vaart;
- bestemming "gemengd 1" dus mogelijkheid voor gebruik als woonruimte, dienstverlening, detailhandel etc.
- parkeermogelijkheden voor de deur;
- de indeling staat u vrij te creëren;
- ingang rechterzijde wordt gesplitst in twee en zal een breedte van 1.50 m krijgen.
- oplevering in overleg.
Herontwikkeling
JeeGee Vastgoed heeft overeenstemming bereikt over de herontwikkeling van de winkel en de loods aan het Noordereinde 249 in ’s-Graveland. Deze zullen omgezet worden naar wonen en zal bestaan uit drie geschakelde gezinsvilla's. (zie bijgevoegde foto's)
De wens van JeeGee Vastgoed is om het karakter van dit gedeelte aan het Noordereinde verder te versterken. De mooie ligging van het herontwikkelingsplan vraagt om een net zo'n mooie invulling. Dus kortom: naast u zullen drie mooie woonvilla's ontstaan en dient u rekening te houden met een bouwperiode van ca. 1 jaar.
Inmeting kadaster
De kavel dient nog exact ingemeten te worden door het kadaster, u kunt ervan uitgaan dat het grondoppervlak om en nabij 190M2 is.
Voor meer informatie en inzage van de documenten kunt u contact opnemen met kantoor.
+++++++++
***Exceptional living***
Spacious and special mansion located on the 's-Graveland canal with beautiful views over the meadows of 's-Graveland at the front and at the rear directly on the water.
The municipal monument offers an abundance of beautiful Jugendstil style features from the construction period of around 1910. Plenty of original elements from that period remain, including the mosaic facade, stained glass and high ceilings with ornaments.
The mansion is part of the prestigious new construction project “Noordereinde 249”, in which three high-quality villas are being developed.
The house needs to be renovated; for this purpose a reclassification plan has been drawn up which has been added to the presentation. The property offers various layout possibilities, giving you ample opportunity to realize your dream home as desired.
The house is located near the estates of Natuurmonumenten and marinas with boating area (including the Kortenhoefse and Loosdrechtse Plassen). For your daily shopping you can go to shopping center Kortenhoef or Kerkelanden. More city facilities as well as several railway stations can be found, a few kilometers away, in nearby Hilversum. Large cities such as Amsterdam and Utrecht and Schiphol Airport are via the nearby roads within about 30 minutes.
Layout
First floor: entrance hall, kitchen at the rear which is equipped with various appliances and access to sunny terrace overlooking the canal. At the front you will find a separate toilet and two rooms which can serve as living / study room, of course you are free to create your own layout taking into account the municipal monument status.
Second floor: large master bedroom with high ceilings and bathroom with shower and sink. On this floor you can, for example, create three bedrooms and a large bathroom with walk-in shower, bathtub, toilet and double sink.
Details:
- monumental mansion with Jugendstil style features;
- located in a special place on the 's-Gravelandse vaart;
- destination “mixed 1” so possibility for use as housing, services, retail, etc.
- parking in front of the door;
- the division is free to create;
- entrance on the right will be split in two and will have a width of 1.50 m.
- delivery in consultation.
Redevelopment
JeeGee Vastgoed has reached agreement on the redevelopment of the store and shed at Noordereinde 249 in 's-Graveland. These will be converted to residential use and will consist of three attached family villas. (See attached photos)
JeeGee Vastgoed's desire is to further enhance the character of this section on Noordereinde. The beautiful location of the redevelopment plan calls for an equally beautiful infill. So in short: next to you three beautiful residential villas will arise and you should take into account a construction period of approximately 1 year.
Land register measurements
The plot must be exactly measured by the land registry, you can assume that the ground area is about 190M2.
For more information and inspection of the documents please contact the office.
Kenmerken
Overdracht
- Laatste vraagprijs
- € 695.000 kosten koper
- Vraagprijs per m²
- € 3.697
- Status
- Verkocht
Bouw
- Soort woonhuis
- Herenhuis, eindwoning
- Soort bouw
- Bestaande bouw
- Bouwjaar
- 1910
- Specifiek
- Monument
- Soort dak
- Samengesteld dak bedekt met pannen
Oppervlakten en inhoud
- Gebruiksoppervlakten
- Wonen
- 188 m²
- Gebouwgebonden buitenruimte
- 22 m²
- Perceel
- 190 m²
- Inhoud
- 759 m³
Indeling
- Aantal kamers
- 6 kamers (3 slaapkamers)
- Aantal badkamers
- 1 badkamer en 1 apart toilet
- Badkamervoorzieningen
- Dubbele wastafel en inloopdouche
- Aantal woonlagen
- 2 woonlagen
- Voorzieningen
- Natuurlijke ventilatie en TV kabel
Energie
- Energielabel
- Niet verplicht
- Isolatie
- Geen spouw
Kadastrale gegevens
- 'S GRAVELAND A 1287
- Kadastrale kaart
- Oppervlakte
- 190 m² (deelperceel)
- Eigendomssituatie
- Volle eigendom
Buitenruimte
- Ligging
- Aan vaarwater en in woonwijk
- Tuin
- Zonneterras
Parkeergelegenheid
- Soort parkeergelegenheid
- Openbaar parkeren
Foto's 52
© 2001-2026 funda



















































