Dit huis op Funda: https://www.funda.nl/detail/koop/s-gravenzande/huis-tourmalijn-44/43194828/

Omschrijving
Ruime gezinswoning met uitbouw, kunststof kozijnen met HR++ glas en zonnige tuin op het zuidwesten
Ben jij op zoek naar een royale eengezinswoning op een rustige, groene locatie in ’s-Gravenzande?
Dan is Tourmalijn 44 absoluut een buitenkans. Met ca. 145 m² woonoppervlak, drie volwaardige woonlagen, een uitgebouwde woonkamer en een zonnige tuin op het zuidwesten, heb je hier alle ruimte om comfortabel te wonen én om je eigen woonwensen te realiseren. De ligging is ideaal: rustig en groen, maar toch dicht bij het centrum, voorzieningen en het strand. De goed onderhouden woning vraagt om modernisering, maar biedt volop potentie om er jouw droomhuis van te maken.
Begane grond
De uitgebouwde woonkamer is een royale en lichte leefruimte, met een sfeervolle open haard. Dankzij de glazen pui over de volle breedte geniet je van een prachtig uitzicht op de groene achtertuin en veel natuurlijk licht. Aan de voorzijde ligt de keuken, voorzien van diverse inbouwapparatuur. Deze ruimte is functioneel, maar leent zich uitstekend voor een moderne make-over.
Buitenruimte
De achtertuin is verzorgd aangelegd met groen en bestrating. Dankzij de ligging op het zuidwesten kun je hier tot in de avond genieten van de zon. In de voortuin staat een stenen berging met elektra, ideaal voor fietsen, tuingereedschap of hobbyspullen.
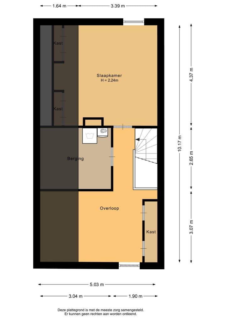
Eerste verdieping
De open trap op de eerste verdieping is dichtgemaakt met een doorzichtige schuifwand, wat voorkomt dat de warmte van de woonkamer naar boven verdwijnt. Hier vind je twee ruime slaapkamers. De grote slaapkamer aan de tuinzijde was oorspronkelijk opgedeeld in 2 slaapkamers. Hier creëer je dus gemakkelijk weer een derde slaapkamer of een droom van een inloopkast. De badkamer beschikt over een ligbad, douche, wastafel en tweede toilet. Ook hier kun je met een frisse blik en wat liefde een eigentijdse ruimte creëren.
Tweede verdieping
De zolderverdieping biedt een royale slaapkamer en veel bergruimte. Door de voorzolder af te sluiten, kun je hier gemakkelijk een extra slaapkamer realiseren. De CV-installatie (Remeha Avanta, 2013) is recent onderhouden in 2025 en bevindt zich ook op deze verdieping.
De omgeving
Je woont hier in een kleinschalig blok van vier huizen met een unieke ligging aan de Tourmalijn. De achtertuin grenst aan openbaar groen, waardoor je geen directe achterburen hebt en geniet van maximale privacy en een parkachtige sfeer. De wijk is rijk aan groen en ligt vlak bij een park, sportverenigingen en scholen. De Albert Heijn is op slechts 800 meter loopafstand. De uitvalswegen, strand en groen zijn vanaf de Tourmalijn altijd dichtbij.
Bijzonderheden
- Perceeloppervlakte: ca. 154 m²
- Woonoppervlakte: ca. 146 m²
- Bouwjaar: ca. 1976
- Drie slaapkamers welke eenvoudig uit te breiden zijn tot 5 slaapkamers (voorheen 4 slaapkamers)
- Kunststof kozijnen met HR++ glas (2001)
- Uitgebouwde woonkamer met glazen pui en open haard
- Zonnige achtertuin op het zuidwesten, grenzend aan openbaar groen
- Maximale privacy en parkachtige omgeving
- Drie volwaardige woonlagen
- Stenen berging met elektra
- CV-ketel Remeha Avanta (2013), onderhoud 2025
- Rustige, groene ligging nabij scholen, winkels en sportvoorzieningen
- Niet-zelfbewoningsclausule van toepassing
- Oplevering in overleg
- Notariskeuze koper, regio Westland
Overige bepalingen
In de koopovereenkomst worden standaard een ouderdomsclausule en een materialenclausule opgenomen, omdat deze woning ouder is dan 20 jaar. Omdat de woning voor 1990 is gebouwd, wordt eveneens standaard een asbestclausule opgenomen.
De gegeven informatie is met zorgvuldigheid opgesteld, aan de juistheid kunnen echter geen rechten worden ontleend. Alle verstrekte informatie moet beschouwd worden als een uitnodiging tot het doen van een aanbod of om in onderhandeling te treden.
De verkoopcondities en basis verkoopovereenkomst van Helm & Heus Makelaars zijn bij deze verkoop van toepassing. Bekijk de documenten op onze website.
Kenmerken
Overdracht
- Laatste vraagprijs
- € 499.000 kosten koper
- Vraagprijs per m²
- € 3.418
- Status
- Verkocht
Bouw
- Soort woonhuis
- Eengezinswoning, tussenwoning
- Soort bouw
- Bestaande bouw
- Bouwjaar
- 1976
- Specifiek
- Gedeeltelijk gestoffeerd
- Soort dak
- Lessenaardak bedekt met pannen
Oppervlakten en inhoud
- Gebruiksoppervlakten
- Wonen
- 146 m²
- Externe bergruimte
- 6 m²
- Perceel
- 154 m²
- Inhoud
- 490 m³
Indeling
- Aantal kamers
- 4 kamers (3 slaapkamers)
- Aantal badkamers
- 1 badkamer en 1 apart toilet
- Badkamervoorzieningen
- Douche, ligbad, toilet, en wastafel
- Aantal woonlagen
- 3 woonlagen
- Voorzieningen
- Buitenzonwering, natuurlijke ventilatie, rookkanaal, schuifpui, en TV kabel
Energie
- Energielabel
- Verwarming
- Cv-ketel
- Warm water
- Cv-ketel
- Cv-ketel
- Remeha (gas gestookt combiketel uit 2013, eigendom)
Kadastrale gegevens
- 'S-GRAVENZANDE K 3900
- Kadastrale kaart
- Oppervlakte
- 154 m²
- Eigendomssituatie
- Volle eigendom
Buitenruimte
- Ligging
- Aan rustige weg en in woonwijk
- Tuin
- Achtertuin en voortuin
- Achtertuin
- 77 m² (13,66 meter diep en 5,61 meter breed)
- Ligging tuin
- Gelegen op het zuidwesten bereikbaar via achterom
Bergruimte
- Schuur/berging
- Vrijstaande stenen berging
- Voorzieningen
- Elektra
Parkeergelegenheid
- Soort parkeergelegenheid
- Openbaar parkeren
Foto's 56
© 2001-2026 funda























































