
Omschrijving
Een leuk sfeervol en ruim 4-kamer appartement van maar liefst 121 m² biedt volop mogelijkheden om helemaal naar jouw smaak te worden ingericht. Gelegen in de populaire wijk Groenoord combineert deze woning ruimte, comfort en een ideale locatie. Of je nu kiest voor open ruimtes of liever een aantal knusse kamers creëert, de mogelijkheden zijn eindeloos. Laat je inspireren door onze unieke ideeën in de art impressies en ontdek hoe jij hier je droomwoning kunt realiseren!
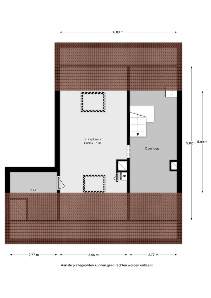
INDELING
Met een woonoppervlakte van 121 m² geniet je hier van alle ruimte die je nodig hebt. De praktische indeling maakt het mogelijk om zowel samen te genieten als je eigen plek te creëren. Via de entree, met brievenbussen en het trappenhuis kom je op de 3e etage, hier vind je een ruime woonkamer, een dichte keuken, een badkamer en een werkkamer danwel slaapkamer. Dankzij de flexibele indelingsopties kun je hier naar eigen inzicht wonen en werken combineren.
Via de vaste trap bereik je de 4e etage, een ware bonusruimte met een ruime voorhal die perfect kan worden gebruikt als werkplek, wasruimte of bergruimte. Hier bevindt zich ook een royale master bedroom, die eenvoudig kan worden opgesplitst in twee aparte slaapkamers. Kortom: een woning die meegroeit met jouw woonwensen!
LIGGING EN OMGEVING
Heijermansplein 229 ligt centraal in Schiedam, waardoor je profiteert van een uitstekende bereikbaarheid en een levendige omgeving. Winkels, scholen en openbaar vervoer bevinden zich allemaal op loopafstand, wat het dagelijks leven heerlijk gemakkelijk maakt.
Winkels en Restaurants in de Buurt
In de directe omgeving zijn tal van voorzieningen:
• Winkelcentrum Hof van Spaland: Hier vind je supermarkten, speciaalzaken en boetieks
• Restaurants: Van gezellige cafés tot internationale keukens, er is voor ieder wat wils.
Uitstekende Openbaar Vervoer Verbindingen
De wijk Groenoord is ideaal bereikbaar:
• Tramverbindingen: Tramlijnen 21 en 24
• Buslijnen: Diverse buslijnen verbinden de wijk met omliggende steden
• Metrostation Schiedam Centrum: Snelle verbindingen naar Rotterdam en Den Haag
Een Unieke Kans in Schiedam
Heijermansplein 229 is dé plek waar ruimte, comfort en een centrale ligging samenkomen. Of je nu op zoek bent naar een woning met groeipotentieel of een plek om direct van te genieten, dit appartement biedt alles wat je nodig hebt. Hier woon je centraal, met alle voorzieningen binnen handbereik, in een woning die je volledig naar eigen wens kunt inrichten.
BIJZONDERHEDEN
• Bouwjaar 1974
• Erfpacht, afgekocht tot 1 juli 2049
• Energielabel B
• Woonoppervlak 121 m²
• Balkon op westen
• Eigen berging in de onderbouw
• Actieve VvE
• Bijdrage VvE: € 127,40 per maand
• CV ketel 2006
• Overdracht in overleg
Zie jij jezelf hier al wonen? Plan dan snel een bezichtiging en ontdek wat Heijermansplein 229 te bieden heeft!
Eigen woning nog verkopen? We geven je gratis advies en een gratis waardebepaling.
Verkopen doe je met RE/MAX Totaal Makelaars | Libby Voormeulen.
Deze informatie is met de nodige zorgvuldigheid samengesteld. Hierbij zijn wij deels afhankelijk van informatie die wij van derden ontvangen. Onzerzijds wordt geen aansprakelijkheid aanvaard voor enige onvolledigheid, onjuistheid of anderszins, dan wel de gevolgen daarvan. Alle opgegeven maten en oppervlakten zijn indicatief.
MAKELAAR Libby Voormeulen
Kenmerken
Overdracht
- Laatste vraagprijs
- € 320.000 kosten koper
- Vraagprijs per m²
- € 2.645
- Status
- Verkocht
- Bijdrage VvE
- € 127,40 per maand
Bouw
- Soort appartement
- Portiekflat (appartement)
- Soort bouw
- Bestaande bouw
- Bouwjaar
- 1974
- Soort dak
- Plat dak bedekt met bitumineuze dakbedekking
Oppervlakten en inhoud
- Gebruiksoppervlakten
- Wonen
- 121 m²
- Overige inpandige ruimte
- 4 m²
- Gebouwgebonden buitenruimte
- 5 m²
- Externe bergruimte
- 6 m²
- Inhoud
- 432 m³
Indeling
- Aantal kamers
- 4 kamers (2 slaapkamers)
- Aantal badkamers
- 1 badkamer en 1 apart toilet
- Badkamervoorzieningen
- Douche, ligbad, en wastafel
- Aantal woonlagen
- 2 woonlagen
- Voorzieningen
- Dakraam, glasvezelkabel, natuurlijke ventilatie, en TV kabel
- Gelegen op
- 3e woonlaag
Energie
- Energielabel
- B
- Isolatie
- Dubbel glas, muurisolatie en vloerisolatie
- Verwarming
- Cv-ketel
- Warm water
- Cv-ketel
- Cv-ketel
- Vaillant VHR 18-22 (gas gestookt combiketel uit 2006, eigendom)
Kadastrale gegevens
- SCHIEDAM Q 7181
- Kadastrale kaart
- Eigendomssituatie
- Gemeentelijke erfpacht (einddatum erfpacht: 30-06-2073)
- Lasten
- Afgekocht tot 01-07-2049
Buitenruimte
- Ligging
- Aan drukke weg, aan rustige weg, in woonwijk, open ligging en vrij uitzicht
- Balkon/dakterras
- Balkon aanwezig
Bergruimte
- Schuur/berging
- Box
- Voorzieningen
- Elektra
Parkeergelegenheid
- Soort parkeergelegenheid
- Openbaar parkeren
VvE checklist
- Inschrijving KvK
- Ja
- Jaarlijkse vergadering
- Ja
- Periodieke bijdrage
- Ja (€ 127,40 per maand)
- Reservefonds aanwezig
- Ja
- Onderhoudsplan
- Ja
- Opstalverzekering
- Ja
Foto's 60
© 2001-2025 funda



























































