
Omschrijving
Prachtig hoek-herenhuis met zeer diepe voor- en achtertuin, gelegen in het geliefde Oranjekwartier in Schiedam West. Dit heerlijke familiehuis is zeer ruim en onder andere voorzien van een royale woonkamer (kamer en suite met originele schuifdeuren), vijf grote slaapkamers, een ruime badkamer, gelegenheid voor tweede badkamer, kelder en een vliering.
Gelegen op maar liefst 297m2 eigen grond. De woning is altijd met veel liefde bewoond maar behoeft flink onderhoud! Ben jij op zoek naar een woning die volledig naar eigen inzicht en smaak opgeknapt en gemoderniseerd kan worden, dan is dit jouw nieuwe thuis!
De woning is gelegen in een prachtige wijk met een diversiteit aan woningen en veel aandacht voor groen. Op afloopafstand vindt u het Julianapark en het Sterrenbos.
De bereikbaarheid is zeer goed, u bent binnen enkele minuten op de ring A16/A13/A20/A4 richting Dordrecht, Utrecht of Den Haag. Openbaar vervoer treft u op korte afstand, met de metro zit u zo midden in het gezellige centrum van Rotterdam of op het strand. De tram is eveneens dichtbij. Op wandel- of fietsafstand ligt het gezellige centrum van Schiedam en het Centraal Station van Schiedam. De voorzieningen in het centrum van Schiedam zijn o.a. winkels, restaurants, terrassen, theater, bioscoop, bibliotheek, tennisbaan en vele uitgaansgelegenheden en dit allemaal op loopafstand!
Tevens bevindt zich op slechts 3 minuten loopafstand een goede basisschool en diverse buurtwinkels (onder ander met een Albert Heijn).
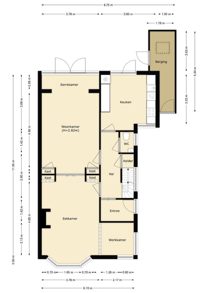
Voor de afmetingen en indeling verwijzen wij naar de plattegrond tekeningen. Onderstaand treft u alvast aan aantal bijzonderheden, maar we staan te popelen om u deze woning live te laten zien.
Bijzonderheden:
* een voortuin van circa 50m2
* de diepe achtertuin (circa 13m diep) is een oase van groen en rust met nagenoeg volledige privacy.
* naast de berging in de achtertuin is er ook veel bergruimte in de kelder en op de vliering.
* via een lange oprit c.q. diepe zijtuin betreedt u de woning.
* in de ruim hal treft u een deur naar de kelder. Een ideale opslagruimte of wijnkelder.
* de diepe kamer-en-suite is samengevoegd met de zijkamer en aan de achterzijde voorzien van een uitbouw/serrekamer waardoor een fantastische ruime en lichte living is ontstaan. Deze woonkamer is voorzien van schuifdeuren tussen de en-suite, vaste kasten, originele stuc plafonds, een fraaie erker aan de voorzijde en openslaande deuren naar de achtertuin.
* de gezellige woonkeuken is royaal, voorzien van een eenvoudige en gedateerde keukeninrichting met inbouwapparatuur. Ook vanuit de keuken is de tuin bereikbaar.
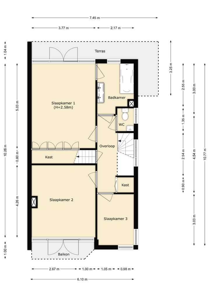
* de woning is in totaal voorzien van vijf slaapkamers; de twee ruime slaapkamers op de eerste verdieping zijn beiden voorzien van openslaande deuren naar een balkon/terras, de derde slaapkamer is voorzien van een fraai hoekraam en op de tweede verdieping bevinden zich de vierde en de vijfde slaapkamer. De vijfde slaapkamer, aan voorzijde, is voorzien van een dakkapel.
* de badkamer op de eerste verdieping is voorzien van een ligbad en wastafelmeubel. Op de tweede verdieping is er een voorbereiding gemaakt voor een tweede badkamer.
* vanaf de overloop is er een luik met toegang tot de vliering. De nokhoogte is 2.95m. Een praktische bergruimte voor heel veel spullen.
* gelegen op eigen grond.
* oplevering in overleg.
* de NVM vragenlijst ontbreekt.
* de woning heeft achterstallig onderhoud en behoeft onderhoud.
* in de koopovereenkomst wordt in ieder geval opgenomen "asbest clausule", "zelf niet bewoond clausule" en "ouderdomsclausule"
Deze informatie is door ons met de nodige zorgvuldigheid samengesteld. Onzerzijds wordt echter geen enkele aansprakelijkheid aanvaard voor enige onvolledigheid, onjuistheid of anderszins, dan wel de gevolgen daarvan. Noch kan aan de vermelde informatie enig recht worden ontleend. Alle opgegeven maten en oppervlakten zijn indicatief.
Kenmerken
Overdracht
- Laatste vraagprijs
- € 690.000 kosten koper
- Vraagprijs per m²
- € 3.538
- Status
- Verkocht
Bouw
- Soort woonhuis
- Eengezinswoning, hoekwoning
- Soort bouw
- Bestaande bouw
- Bouwjaar
- 1930
Oppervlakten en inhoud
- Gebruiksoppervlakten
- Wonen
- 195 m²
- Overige inpandige ruimte
- 50 m²
- Gebouwgebonden buitenruimte
- 15 m²
- Perceel
- 297 m²
- Inhoud
- 840 m³
Indeling
- Aantal kamers
- 7 kamers (5 slaapkamers)
- Aantal badkamers
- 2 badkamers en 2 aparte toiletten
- Badkamervoorzieningen
- Dubbele wastafel, 2 ligbaden, en toilet
- Aantal woonlagen
- 3 woonlagen
Energie
- Energielabel
- F
- Isolatie
- Gedeeltelijk dubbel glas
- Verwarming
- Cv-ketel
- Warm water
- Cv-ketel
- Cv-ketel
- Gas gestookt combiketel, eigendom
Kadastrale gegevens
- SCHIEDAM M 4980
- Kadastrale kaart
- Oppervlakte
- 297 m²
- Eigendomssituatie
- Volle eigendom
Buitenruimte
- Ligging
- In centrum
- Tuin
- Achtertuin, voortuin en zijtuin
- Achtertuin
- 114 m² (13,00 meter diep en 8,75 meter breed)
- Ligging tuin
- Gelegen op het zuidoosten
Bergruimte
- Schuur/berging
- Aangebouwde houten berging
Parkeergelegenheid
- Soort parkeergelegenheid
- Openbaar parkeren
Foto's 53
© 2001-2025 funda




















































