Dit huis op Funda: https://www.funda.nl/detail/koop/schinnen/huis-dr-poelsstraat-17/43744167/

Omschrijving
Op een goede locatie in Schinnen bieden wij deze levensloopbestendige woning aan, het betreft het voormalige Groene Kruisgebouw. De woning heeft een fijne ligging nabij dagelijkse voorzieningen, waaronder een visvijver, basisschool, scouting en huisartsenpraktijk op loopafstand. Schinnen staat bekend om zijn groene en landelijke karakter, met prachtige wandel- en fietsroutes in de nabije omgeving, zoals het natuurgebied Geleenbeekdal en het Thullerbos. Tevens heeft Schinnen een goede aansluiting op de autosnelwegen A76 en A79, waardoor steden zoals Heerlen, Sittard en Maastricht eenvoudig bereikbaar zijn.
INDELING
Begane grond:
Royale oprit voor meerdere auto's en metalen tuinhuis.
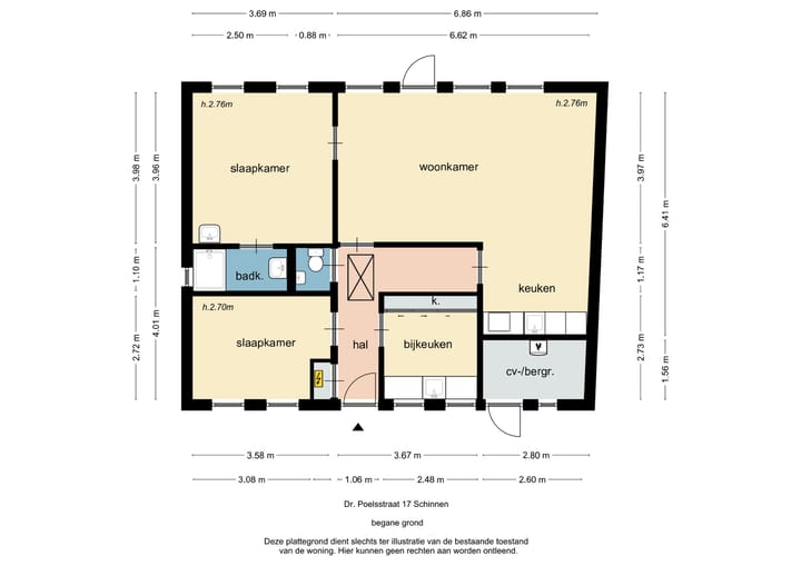
Entree, hal met tegelvloer, meterkast, volledig betegelde toiletruimte en vlizotrap naar de ruime bergzolder.
De woonkamer (circa 27m2) is voorzien van een plavuizenvloer en een deur naar het terras.
De open keuken (2.45*2.80/2.60m) is uitgevoerd in een rechte opstelling en voorzien van de navolgende apparatuur; 4-pits gaskookplaat, afzuigkap en koelkast.
Slaapkamer 1) (3.98*3.69m) met tegelvloer, vaste wastafel en toegang tot de badkamer.
Slaapkamer 2) (3.58*2.72m) met tegelvloer.
Volledig betegelde badkamer (2.50*1.10m) met douche, vaste wastafel en design radiator.
Bijkeuken (2.73*2.48m) met inbouwkasten, terrazzo aanrechtblad en aansluitmogelijkheden voor witgoed apparatuur.
Aan de voorzijde van de woning is een bergruimte (2.80/2.60*1.56m), welke van buitenaf bereikbaar is en waar tevens de standplaats van de cv-installatie is.
De tuin is geheel omsloten, heeft een zij-ingang, biedt veel privacy en is deels beklinkerd en deels voorzien van gazon.
Eerste verdieping:
Royale bergzolder bereikbaar middels een vlizotrap
Diversen:
- Bouwjaar 1959.
- Perceeloppervlakte 350m2.
- Cv-installatie middels een combisysteem, Nefit, huur.
- Het betreft het voormalige groene kruis gebouw.
- Kunststof kozijnen voorzien van dubbele beglazing.
- Aanvaarding per direct.
Kenmerken
Overdracht
- Laatste vraagprijs
- € 235.000 kosten koper
- Vraagprijs per m²
- € 2.938
- Status
- Verkocht
Bouw
- Soort woonhuis
- Eengezinswoning, halfvrijstaande woning
- Soort bouw
- Bestaande bouw
- Bouwjaar
- 1959
- Soort dak
- Zadeldak bedekt met pannen
Oppervlakten en inhoud
- Gebruiksoppervlakten
- Wonen
- 80 m²
- Overige inpandige ruimte
- 10 m²
- Externe bergruimte
- 6 m²
- Perceel
- 350 m²
- Inhoud
- 423 m³
Indeling
- Aantal kamers
- 6 kamers (2 slaapkamers)
- Aantal woonlagen
- 1 woonlaag
Energie
- Energielabel
- D
- Isolatie
- Dakisolatie en dubbel glas
- Verwarming
- Cv-ketel
- Warm water
- Cv-ketel
- Cv-ketel
- Nefit Eco Comfort HRC 2-4 (gas gestookt combiketel, huur)
Kadastrale gegevens
- SCHINNEN C 4646
- Kadastrale kaart
- Oppervlakte
- 350 m²
- Eigendomssituatie
- Volle eigendom
Buitenruimte
- Tuin
- Achtertuin, voortuin en zijtuin
Bergruimte
- Schuur/berging
- Inpandig
Garage
- Soort garage
- Niet aanwezig, wel mogelijk
Parkeergelegenheid
- Soort parkeergelegenheid
- Op eigen terrein
Foto's 33
© 2001-2025 funda
































