
BlikvangerRuime uitgebouwde hoekwoning in rustige en kindvriendelijke omgeving
Omschrijving
In een rustige en kindvriendelijke woonomgeving staat deze ruime, uitgebouwde hoekwoning met maar liefst vijf slaapkamers, twee badkamers en een zeer royale tuin met veranda en grote berging (voormalige garage). Dankzij de uitbouw aan zowel de zij- als achterzijde (2017) beschikt de woning over een opvallend grote living en extra veel leefruimte. Met voorzieningen zoals scholen, winkels en sportfaciliteiten in de directe omgeving is dit een ideale gezinswoning.
Bouwjaar 1966, woonoppervlakte ca. 138 m², berging ca. 18m², inhoud ca. 472 m³.
Indeling begane grond
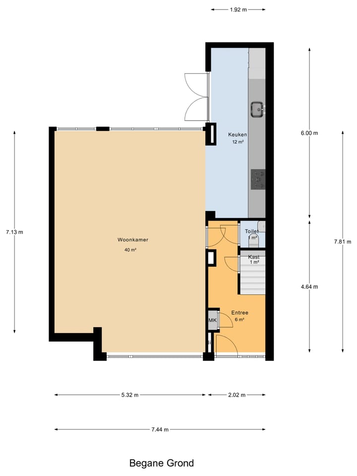
De entreehal beschikt over een meterkast (8 groepen en 2 aardlekschakelaars), trapkast en toiletruimte met fontein. Vanuit hier komt u in de zeer royale woonkamer van ca. 40 m², voorzien van vloerverwarming, openslaande deuren naar de tuin en veel lichtinval. De moderne open keuken is uitgerust met een 5-pits gasfornuis, oven, magnetron, vaatwasser en kokend waterkraan.
De tuin is uitzonderlijk ruim en onderhoudsvriendelijk aangelegd. Achterin bevindt zich een overdekte veranda en een grote schuur (voormalige garage).
Eerste verdieping
De overloop geeft toegang tot drie slaapkamers en de badkamer.
Slaapkamer 1 (ca. 15 m²) aan de voorzijde.
Slaapkamer 2 (ca. 5 m²) aan de voorzijde.
Slaapkamer 3 (ca. 13 m²) aan de achterzijde.
De moderne badkamer is voorzien van vloerverwarming, toilet, dubbele wastafel met meubel en een dubbele inloopdouche.
Tweede verdieping
Op de tweede verdieping bevinden zich nog twee slaapkamers en een tweede badkamer.
Slaapkamer 4 (ca. 10 m²) aan de voorzijde, voorzien van kunststof dakkapel.
Slaapkamer 5 (ca. 8 m²) aan de achterzijde, eveneens met kunststof dakkapel.
Daarnaast vindt u hier de technische ruimte met cv-ketel (Nefit Topline HR-combiketel, 2009), separate ruimte met aansluitingen voor wasmachine en droger, en een douchegelegenheid.
Algemeen
* Bouwjaar 1966, woonoppervlakte ca. 138 m², berging ca. 18m², inhoud ca. 472 m³;
* Voorzien van energielabel C;
* Uitbouw aan zij- en achterzijde (2017);
* Voorzien van vloerverwarming (begane grond en badkamer);
* Kunststof dakkapellen en dakraam;
* Eerste en tweede verdieping voorzien van laminaat vloeren;
* Geheel voorzien van dubbele beglazing en elektrische screens;
* Zeer royale tuin met veranda en grote berging;
* Maar liefst vijf slaapkamers en twee badkamers;
* Gelegen in een kindvriendelijke buurt, nabij voorzieningen;
* Wij verwijzen je tot slot naar de “nadere informatie bij het kopen van een onroerende zaak” welke in Move is toegevoegd aan de informatie bij deze woning.
Boer Makelaardij brengt je graag in contact met onze vaste hypotheekpartners Raymond Imbens of John Olsthoorn van Avant Groep Gouda voor een professioneel en onafhankelijk hypotheekadvies. Bel 085-8226222 of mail naar /
Kenmerken
Overdracht
- Aangeboden sinds
- Aanvaarding
- In overleg
- Vraagprijs
- € 550.000 kosten koper
- Vraagprijs per m²
- € 3.986
- Status
- Onder bod
Bouw
- Soort woonhuis
- Eengezinswoning, hoekwoning
- Soort bouw
- Bestaande bouw
- Bouwjaar
- 1966
- Specifiek
- Gedeeltelijk gestoffeerd
- Soort dak
- Samengesteld dak bedekt met bitumineuze dakbedekking en pannen
Oppervlakten en inhoud
- Gebruiksoppervlakten
- Wonen
- 138 m²
- Externe bergruimte
- 18 m²
- Perceel
- 225 m²
- Inhoud
- 472 m³
Indeling
- Aantal kamers
- 6 kamers (5 slaapkamers)
- Aantal badkamers
- 2 badkamers en 1 apart toilet
- Badkamervoorzieningen
- Dubbele wastafel, inloopdouche, toilet, en douche
- Aantal woonlagen
- 3 woonlagen
- Voorzieningen
- Buitenzonwering, glasvezelkabel, en mechanische ventilatie
Energie
- Energielabel
- Isolatie
- Dakisolatie, dubbel glas, muurisolatie en vloerisolatie
- Verwarming
- Cv-ketel en gedeeltelijke vloerverwarming
- Warm water
- Cv-ketel
- Cv-ketel
- Gas gestookt combiketel uit 2018, eigendom
Kadastrale gegevens
- SCHOONHOVEN C 2546
- Kadastrale kaart
- Oppervlakte
- 225 m²
- Eigendomssituatie
- Volle eigendom
Buitenruimte
- Ligging
- In woonwijk
- Tuin
- Achtertuin, voortuin en zijtuin
- Achtertuin
- 93 m² (11,00 meter diep en 9,00 meter breed)
- Ligging tuin
- Gelegen op het westen bereikbaar via achterom
Bergruimte
- Schuur/berging
- Vrijstaande stenen berging
- Voorzieningen
- Elektra
Parkeergelegenheid
- Soort parkeergelegenheid
- Openbaar parkeren
Foto's 40
© 2001-2026 funda







































