
Omschrijving
Soms word je zelfs als makelaar verrast... Dat is hier zeker het geval. Je gaat hier zitten en wil er eigenlijk niet meer weg!
Deze zeer charmante stadswoning met een grote, zonnige tuin aan het water en uitzicht op de watertoren is uniek! Instapklaar is het enige en juiste woord voor dit huis!
Extra leuk om te benoemen is dat de berging links naast de woning er ook bij hoort. Deze ruimte voelt bijna aan als een garage en is perfect te gebruiken als werkplaats/hobbyruimte/stalling voor motor/bakfiets etc.
Wonen aan de Havenstraatse Wal 2G betekent wonen in alle luxe en comfort, midden in de historische binnenstad van Schoonhoven. Je loopt binnen 1 minuut langs het water of tussen de winkels en/of leuke horecagelegenheden die deze mooie stad rijk is!
Indeling
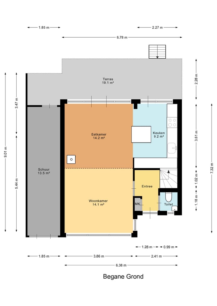
Begane grond:
Je komt de hal in en het voelt gelijk goed. Strak, netjes, neutraal en ruim. Een prachtig accent zie je aan de rechterzijde bij de trap een muur van ruwe stenen. Een mooi detail, goed gemaakt, voorzien van een oppervlaktebehandeling en vooral erg decoratief. Gelijk naast de voordeur is het toilet. Fraai van uitvoering met een hangcloset en een fonteintje.
Een oude paneeldeur met klassiek gefigureerd glas geeft toegang tot de woonkamer. Een zeer fijne ruimte die één geheel vormt met de open keuken en voorzien is van veel glas in de voor- en achtergevel waardoor het daglicht ongehinderd naar binnen komt. De ruimte is visueel in twee delen verdeeld door het hoogteverschil in de vloer. Een zogenaamd zitgedeelte aan de voorzijde, bij de straat en de erker en het eetgedeelte aan de achterzijde bij de keuken en de tuin.
In zijn geheel perfect afgewerkt, een strakke vloer met vloerverwarming, gestuukte wanden en plafond en ingebouwde verlichting. Een leuk detail is de houtkachel die prominent en centraal in de ruimte staat voor het zicht en de warmteverdeling.
Natuurlijk heb je openslaande tuindeuren, heerlijk op de zomerdagen om de woonkamer te verbinden met de tuin.
De keuken (2022/2024) is fors van formaat en heel prettig in de opzet. Met een recht meubel voorzien van een aanrechtblad en een separaat meubel met diverse ingebouwde apparaten. Twee kleurstellingen maken het tot een chique geheel. Het extra werkeiland maakt het compleet.
1e Verdieping:
Ook deze verdieping is verbouwd en vooral erg mooi gemaakt. Met drie slaapkamers, een badkamer en een overloop heb je alle mogelijkheden.
Alle drie de slaapkamers zijn gelijkwaardig afgewerkt met stuukwerk op wanden en plafonds, een prachtige houten vloer, nieuwe radiatoren, keurig afgewerkte kozijnen etc.
Leuk is dat de grootste slaapkamer aan de voorzijde openslaande deuren heeft naar een balkon. De tweede kamer ligt er direct naast en is uitstekend geschikt als kleedkamer of werkkamer. De derde slaapkamer tref je aan de achterzijde.
De badkamer is een plaatje en nog geen drie jaar oud. Luxe tegels op de wanden en de vloer, een inloopdouche, wastafelmeubel en een hangcloset. Leuk is de nis met vaste plankjes voor het plaatsen van je badspullen en tot slot: vloerverwarming!
2e Verdieping:
Een fijne zolder! Open met bergruimte onder het schuine gedeelte, lekker licht met een groot dakraam aan de voorzijde en stoer door de oude vloerdelen die helemaal opgeknapt zijn. Een superleuke kamer voor een van de kids of als werk-/logeerkamer.
De cv-ketel hangt naast de trap en is in 2024 vernieuwd.
Buitenzijde:
De tuin is volledig opnieuw aangelegd in 2023/2024. Het is werkelijk een plaatje, met veel zon (gelegen op het westen), aan het water van de Oude Singel en heerlijk breed. Eigenlijk is dit uniek voor de binnenstad!
Onder het vlonderterras is nog extra bergruimte aanwezig. Ook is er op afstand bedienbare tuinverlichting (in verschillende kleuren leverbaar).
Algemeen:
Bij deze woning is een definitief energielabel C aanwezig.
Dakisolatie en vloerisolatie aangebracht in 2022.
Vloerverwarming in woonkamer, keuken en badkamer.
Oplevering in overleg.
Grotendeels gerenoveerd in 2022/2024.
Hoge berging naast de woning ca. 7.00x1.85m met vernieuwd dak.
Bijlage bepalingen bij verkoopprocedure zijn van toepassing.
Deze woning beschikt over een energielabel C. Hierdoor is het mogelijk om een hoger bedrag te financieren. Dit betreft een bedrag van € 5.000,-. Daarnaast is het mogelijk om een extra bedrag van € 15.000,- te financieren voor energiebesparende voorzieningen.
Voor meer informatie kan je terecht bij jouw hypotheekadviseur en op Meetinstructie is gebaseerd op de NEN2580. De Meetinstructie is bedoeld om een meer eenduidige manier van meten toe te passen voor het geven van een indicatie van de gebruiksoppervlakte. De Meetinstructie sluit verschillen in meetuitkomsten niet volledig uit, door bijvoorbeeld interpretatieverschillen, afrondingen of beperkingen bij het uitvoeren van de meting.
Het daadwerkelijke woonoppervlakte is thans 81 m2. De tweede verdieping is benoemd als "overige inpandige ruimte" en bedraagt 12 m2. Om binnen de normering van de NEN 2580 te vallen dient bijvoorbeeld een dakkapel van 2m2 geplaatst te worden. Aan het benoemde woonoppervlakte van 93 m2 in deze presentatie kan derhalve geen recht ontleend worden.
Deze informatie is door ons met de nodige zorgvuldigheid samengesteld. Onzerzijds wordt echter geen enkele aansprakelijkheid aanvaard voor enige onvolledigheid, onjuistheid of anderszins, dan wel de gevolgen daarvan. Alle opgegeven maten en oppervlakten zijn indicatief.
Kenmerken
Overdracht
- Laatste vraagprijs
- € 469.000 kosten koper
- Vraagprijs per m²
- € 5.043
- Status
- Verkocht
Bouw
- Soort woonhuis
- Eengezinswoning, geschakelde woning
- Soort bouw
- Bestaande bouw
- Bouwjaar
- 1918
- Specifiek
- Beschermd stads- of dorpsgezicht
- Soort dak
- Zadeldak bedekt met pannen
Oppervlakten en inhoud
- Gebruiksoppervlakten
- Wonen
- 93 m²
- Gebouwgebonden buitenruimte
- 16 m²
- Externe bergruimte
- 17 m²
- Perceel
- 156 m²
- Inhoud
- 338 m³
Indeling
- Aantal kamers
- 5 kamers (3 slaapkamers)
- Aantal badkamers
- 1 badkamer en 1 apart toilet
- Badkamervoorzieningen
- Inloopdouche, toilet, vloerverwarming, wastafel, en wastafelmeubel
- Aantal woonlagen
- 2 woonlagen en een zolder
- Voorzieningen
- Buitenzonwering, dakraam, mechanische ventilatie, en rookkanaal
Energie
- Energielabel
- Isolatie
- Dakisolatie, dubbel glas, muurisolatie en vloerisolatie
- Verwarming
- Cv-ketel, houtkachel en gedeeltelijke vloerverwarming
- Warm water
- Cv-ketel
- Cv-ketel
- HR (gas gestookt combiketel uit 2024, huur)
Kadastrale gegevens
- SCHOONHOVEN C 1915
- Kadastrale kaart
- Oppervlakte
- 156 m²
- Eigendomssituatie
- Volle eigendom
Buitenruimte
- Ligging
- Aan rustige weg, in centrum en open ligging
- Tuin
- Achtertuin
- Achtertuin
- 100 m² (10,00 meter diep en 10,00 meter breed)
- Ligging tuin
- Gelegen op het westen bereikbaar via achterom
Bergruimte
- Schuur/berging
- Aangebouwde houten berging
- Voorzieningen
- Elektra
- Isolatie
- Geen isolatie
Parkeergelegenheid
- Soort parkeergelegenheid
- Openbaar parkeren
Foto's 43
© 2001-2026 funda










































