
Omschrijving
Niet ieder huis is hetzelfde. Dat spreekt voor zich. Maar er zijn dingen die je niet kan veranderen en die uniek zijn voor een woning. Dat is bijvoorbeeld de ligging. Een lekkere ruime eengezinswoning in een rustige en kindvriendelijke wijk, met een achtertuin grenzend aan een achterpad en een slootje. Dichtbij alle voorzieningen en op loopafstand van de polder.
De woning is er een van het type ‘lekker ruime eengezinswoning’. Een uitgebouwde woonkamer, tuingericht, twee dakkapellen en voldoende slaapkamers op de verdiepingen.
Mooier kunnen wij het niet maken!
Indeling:
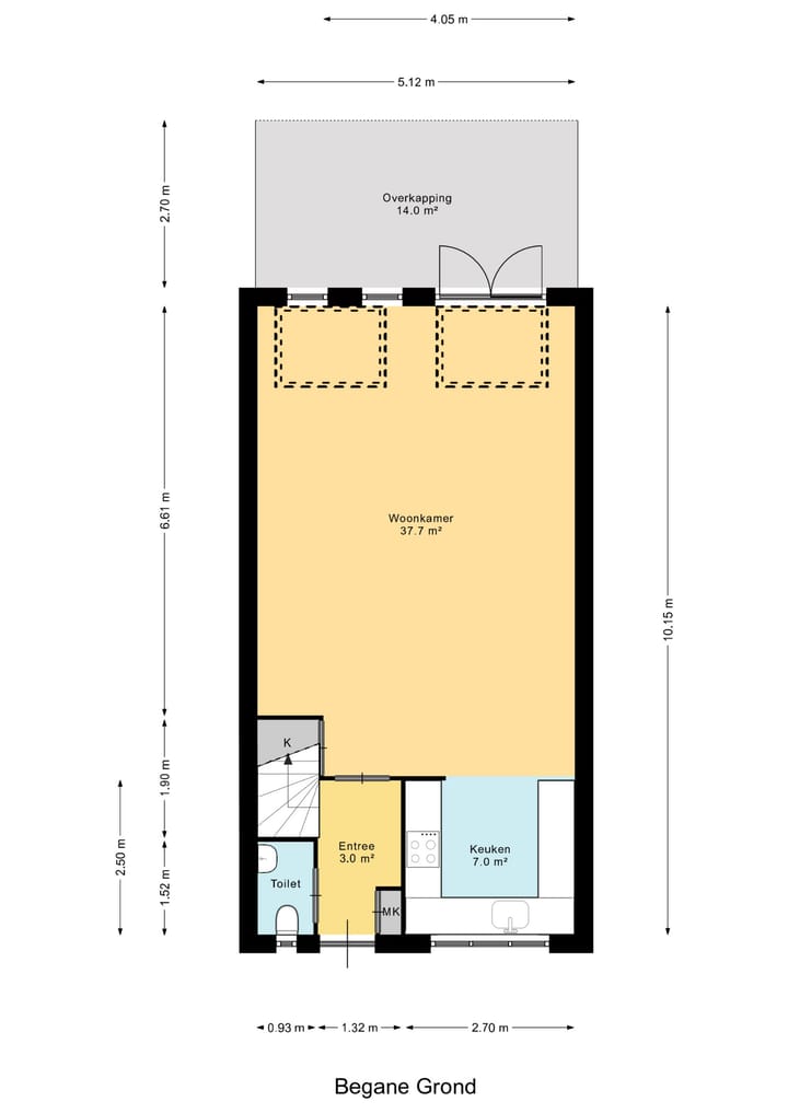
Begane grond:
Entree, hal, meterkast, trapopgang en toilet. Het toilet ziet er keurig uit en is uitgevoerd met een hangcloset en fonteintje. De woonkamer is tuingericht en dankzij de uitbouw, die voorzien is van extra lichtkoepels, ruim 40 m2 groot. De keuken ligt aan de straatzijde en is ruimer dan gedacht. Bijna 8 m2 en opgesteld in een L-vorm, voorzien van inbouwapparatuur zoals een keramische kookplaat en afzuigkap.
Op de vloer ligt een fraaie plavuis met vloerverwarming, alle wanden zijn gestuukt en er is een schuurplafond.
1e verdieping:
Overloop, drie slaapkamers waarvan er twee aan de achterzijde liggen en voorzien zijn van een dakkapel over bijna de gehele breedte van de woning. De derde kamer ligt aan de voorzijde. Alle slaapkamers zijn keurig afgewerkt. De badkamer is eveneens aan de voorzijde, deze is voorzien van een ligbad met douchegelegenheid, wastafelmeubel en wit gekleurd tegelwerk.
2e verdieping:
Overloop met de aansluiting voor de wasmachine/droger en opstelling van de cv-ketel. Een ruime vierde slaapkamer met dakkapel aan de voorzijde en dakraam aan de achterzijde.
Algemeen:
Veranda met zijramen
Gedeeltelijk voorzien van rolluiken
CV HR bouwjaar 2020
Onderheide tuin
Bij deze woning is een definitief energielabel B aanwezig
Bijlage bepalingen bij verkoopprocedure zijn van toepassing
Deze woning beschikt over een energielabel B Hierdoor is het mogelijk om een hoger bedrag te financieren. Dit betreft een bedrag van € 10.000,-. Daarnaast is het mogelijk om een extra bedrag van € 10.000,- te financieren voor energiebesparende voorzieningen.
Voor meer informatie kan je terecht bij jouw hypotheekadviseur en op Meetinstructie is gebaseerd op de NEN2580. De Meetinstructie is bedoeld om een meer eenduidige manier van meten toe te passen voor het geven van een indicatie van de gebruiksoppervlakte. De Meetinstructie sluit verschillen in meetuitkomsten niet volledig uit, door bijvoorbeeld interpretatieverschillen, afrondingen of beperkingen bij het uitvoeren van de meting.
Deze informatie is door ons met de nodige zorgvuldigheid samengesteld. Onzerzijds wordt echter geen enkele aansprakelijkheid aanvaard voor enige onvolledigheid, onjuistheid of anderszins, dan wel de gevolgen daarvan. Alle opgegeven maten en oppervlakten zijn indicatief.
Kenmerken
Overdracht
- Laatste vraagprijs
- € 399.000 kosten koper
- Vraagprijs per m²
- € 3.627
- Status
- Verkocht
Bouw
- Soort woonhuis
- Eengezinswoning, tussenwoning
- Soort bouw
- Bestaande bouw
- Bouwjaar
- 1984
- Soort dak
- Zadeldak bedekt met pannen
Oppervlakten en inhoud
- Gebruiksoppervlakten
- Wonen
- 110 m²
- Externe bergruimte
- 6 m²
- Perceel
- 117 m²
- Inhoud
- 325 m³
Indeling
- Aantal kamers
- 5 kamers (4 slaapkamers)
- Aantal badkamers
- 1 badkamer en 1 apart toilet
- Badkamervoorzieningen
- Ligbad
- Aantal woonlagen
- 3 woonlagen
- Voorzieningen
- Dakraam
Energie
- Energielabel
- B
- Isolatie
- Gedeeltelijk dubbel glas
- Verwarming
- Cv-ketel en gedeeltelijke vloerverwarming
- Warm water
- Cv-ketel
- Cv-ketel
- HR (gas gestookt combiketel uit 2020, eigendom)
Kadastrale gegevens
- SCHOONHOVEN A 1808
- Kadastrale kaart
- Oppervlakte
- 117 m²
- Eigendomssituatie
- Volle eigendom
Buitenruimte
- Ligging
- Aan rustige weg en in woonwijk
- Tuin
- Achtertuin en voortuin
- Achtertuin
- 28 m² (5,00 meter diep en 5,50 meter breed)
- Ligging tuin
- Gelegen op het oosten bereikbaar via achterom
Bergruimte
- Schuur/berging
- Vrijstaande stenen berging
- Voorzieningen
- Elektra
- Isolatie
- Geen isolatie
Parkeergelegenheid
- Soort parkeergelegenheid
- Openbaar parkeren
Foto's 42
© 2001-2025 funda









































