
Augustinusweg 305853 ED SiebengewaldSiebengewald Buitengebied
€ 525.000 k.k.
Omschrijving
Augustinusweg 30 en 30 B te Siebengewald.
Riante woonboerderij met bijgebouwen in het buitengebied van Siebengewald.
In het landelijke buitengebied van Siebengewald vindt u deze ruime woonboerderij met een vrijstaande schuur, berging en een perceel van ruim 9.000 m². De woonboerderij biedt volop potentie, maar dient gerenoveerd te worden om aan de moderne woonwensen te voldoen. Dankzij de royale indeling en het grote perceel is deze woning bij uitstek geschikt voor dubbele bewoning of een combinatie van wonen en werken aan huis. Een unieke kans voor wie ruimte, rust en mogelijkheden zoekt! Volgens het bestemmingsplan is splitsing van de woonboerderij in twee wooneenheden toegestaan.
Indeling:
Begane grond: hal met toegang tot de provisiekleder, 3 slaapkamers, woonkamer, open keuken met een functionele keukenopstelling, bijkeuken, toilet, badkamer, inpandige opslagruimte/ werkplaats.
1e verdieping: zolderberging, ingebouwde noodwoning.
Diverse gegevens:
De keukenopstelling is voorzien van de volgende inbouwapparatuur:
Het bouwjaar van de woning is 1901.
Het bouwjaar van de cv-ketel is 2023.
Links langs de woning is een recht van overpad gevestigd om te komen en te gaan van de Augustinusweg naar het achterste gedeelte van het perceel.
Meerdere bijgebouwen zijn gedekt met asbesthoudende golfplaten.
Kenmerken
Overdracht
- Aangeboden sinds
- Aanvaarding
- In overleg
- Vraagprijs
- € 525.000 kosten koper
- Vraagprijs per m²
- € 2.933
- Status
- Beschikbaar
Bouw
- Soort woonhuis
- Woonboerderij, vrijstaande woning
- Soort bouw
- Bestaande bouw
- Bouwjaar
- 1901
- Specifiek
- Dubbele bewoning mogelijk en kluswoning
- Soort dak
- Zadeldak bedekt met pannen
- Toegankelijkheid
- Toegankelijk voor mensen met een beperking en toegankelijk voor ouderen
Oppervlakten en inhoud
- Gebruiksoppervlakten
- Wonen
- 179 m²
- Overige inpandige ruimte
- 413 m²
- Externe bergruimte
- 325 m²
- Perceel
- 9.014 m²
- Inhoud
- 2.685 m³
Indeling
- Aantal kamers
- 7 kamers (4 slaapkamers)
- Aantal badkamers
- 1 badkamer en 2 aparte toiletten
- Badkamervoorzieningen
- Ligbad en wastafel
- Aantal woonlagen
- 2 woonlagen
- Voorzieningen
- Natuurlijke ventilatie
Energie
- Energielabel
- Isolatie
- Dakisolatie en dubbel glas
- Verwarming
- Cv-ketel
- Warm water
- Cv-ketel
- Cv-ketel
- HR (2023)
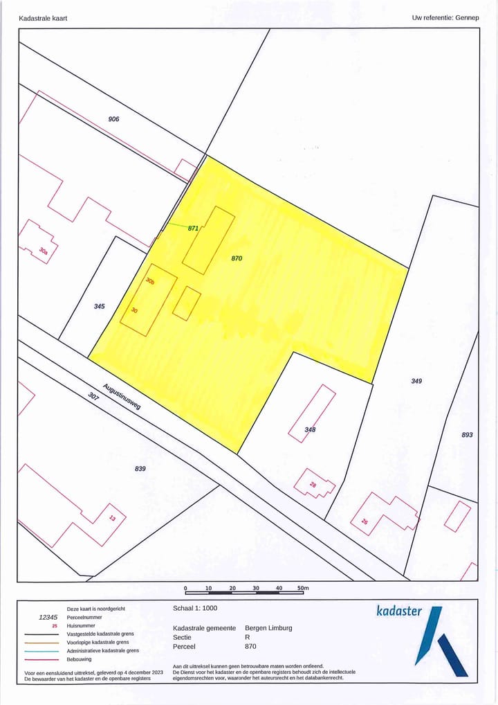
Kadastrale gegevens
- BERGEN LIMBURG R 870
- Kadastrale kaart
- Oppervlakte
- 9.014 m²
- Eigendomssituatie
- Volle eigendom
Buitenruimte
- Ligging
- Aan rustige weg, buiten bebouwde kom, in bosrijke omgeving, landelijk gelegen, open ligging en vrij uitzicht
- Tuin
- Achtertuin, tuin rondom, voortuin en zijtuin
- Achtertuin
- 760 m² (20,00 meter diep en 38,00 meter breed)
- Ligging tuin
- Gelegen op het zuidwesten bereikbaar via achterom
Bergruimte
- Schuur/berging
- Vrijstaande stenen berging
- Isolatie
- Geen isolatie
Garage
- Soort garage
- Vrijstaande stenen garage
- Capaciteit
- 1 auto
- Isolatie
- Geen isolatie
Parkeergelegenheid
- Soort parkeergelegenheid
- Op eigen terrein en openbaar parkeren
Foto's 39
© 2001-2026 funda






































