
Omschrijving
Deze ruime twee-onder-één-kapwoning in Sint Jansteen biedt volop mogelijkheden voor wie op zoek is naar een huis om naar eigen smaak te moderniseren en verduurzamen. De woning beschikt over veel ruimte, een diepe tuin, een garage en karakteristieke elementen, maar vraagt ook om de nodige opknapwerkzaamheden.
Indeling
Begane grond:
Bij binnenkomst in de hal heb je toegang tot het toilet, de woonkamer en de keuken. De woonkamer is ruim en kan met schuifdeuren in twee afzonderlijke ruimtes worden verdeeld. Aan de achterzijde is een lichte serre aangebouwd, met tuindeuren naar de achtertuin.
De dichte keuken is eenvoudig en gedateerd, maar biedt voldoende ruimte om er een moderne leefkeuken van te maken.
Eerste verdieping:
Op de eerste verdieping zijn drie slaapkamers en een badkamer aanwezig. De badkamer is voorzien van een ligbad, douche, toilet en wastafel met meubel.
Tweede verdieping:
Op de tweede verdieping bevinden zich een vierde slaapkamer en een bergruimte. Met enige aanpassing kan hier een vijfde slaapkamer worden gerealiseerd.
Tuin:
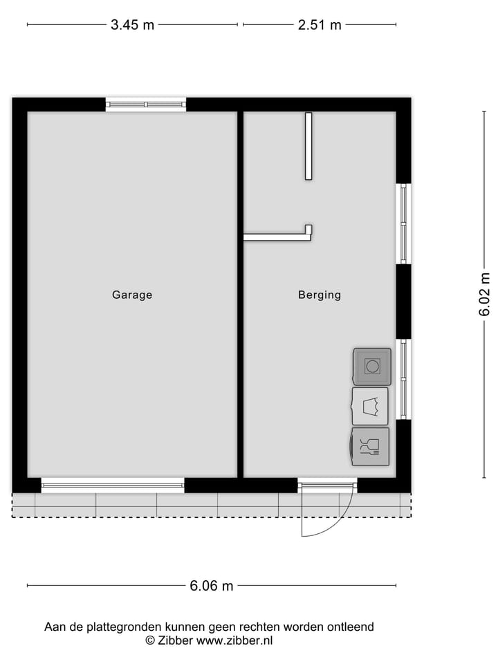
De achtertuin is diep en beschut, met achterin een vrijstaande stenen berging. Hier zijn aansluitingen voor de wasmachine en droger aanwezig. Daarnaast is er een vrijstaande garage met ruimte voor één auto. Op de oprit kunnen nog twee auto’s worden geparkeerd.
Kenmerken van deze woning:
* Twee-onder-één-kapwoning met karakter
* Vier slaapkamers, mogelijkheid tot vijf
* Lichte serre met toegang tot de tuin
* Vrijstaande stenen berging en garage
* Parkeergelegenheid voor meerdere auto’s op eigen terrein
* Woning dient te worden gemoderniseerd en verduurzaamd
Let op: tussen de foto's staan twee artist impressions om aan te geven hoe de woonkamer en keuken kunnen worden ingericht.
Kenmerken
Overdracht
- Laatste vraagprijs
- € 299.000 kosten koper
- Vraagprijs per m²
- € 2.048
- Status
- Verkocht
Bouw
- Soort woonhuis
- Eengezinswoning, 2-onder-1-kapwoning
- Soort bouw
- Bestaande bouw
- Bouwjaar
- 1957
- Soort dak
- Zadeldak bedekt met pannen
Oppervlakten en inhoud
- Gebruiksoppervlakten
- Wonen
- 146 m²
- Externe bergruimte
- 37 m²
- Perceel
- 352 m²
- Inhoud
- 519 m³
Indeling
- Aantal kamers
- 5 kamers (4 slaapkamers)
- Aantal badkamers
- 1 badkamer en 1 apart toilet
- Badkamervoorzieningen
- Douche, ligbad, toilet, wastafel, en wastafelmeubel
- Aantal woonlagen
- 3 woonlagen en een kelder
- Voorzieningen
- Natuurlijke ventilatie, rookkanaal, en TV kabel
Energie
- Energielabel
- Isolatie
- Gedeeltelijk dubbel glas
- Verwarming
- Cv-ketel
- Warm water
- Cv-ketel
- Cv-ketel
- Nefit (gas gestookt combiketel uit 2014, eigendom)
Kadastrale gegevens
- HULST L 42
- Kadastrale kaart
- Oppervlakte
- 352 m²
- Eigendomssituatie
- Volle eigendom
Buitenruimte
- Ligging
- Aan rustige weg en beschutte ligging
- Tuin
- Achtertuin, voortuin en zijtuin
- Achtertuin
- 110 m² (11,00 meter diep en 10,00 meter breed)
- Ligging tuin
- Gelegen op het noordoosten bereikbaar via achterom
Bergruimte
- Schuur/berging
- Vrijstaande stenen berging
- Voorzieningen
- Elektra en stromend water
Garage
- Soort garage
- Vrijstaande stenen garage
- Capaciteit
- 1 auto
- Voorzieningen
- Elektra
Parkeergelegenheid
- Soort parkeergelegenheid
- Op eigen terrein
Foto's 33
© 2001-2026 funda
































