
Omschrijving
Aan de rand van Sittard, in de wijk Overhoven nabij het centrum, ligt dit appartement op de tweede verdieping. Het appartement beschikt o.a. over een woonkamer met dichte keuken, badkamer, twee slaapkamers en een fijn balkon met vrij uitzicht. Op de begane grond is nog een privéberging aanwezig. Dankzij de gunstige ligging zijn het station, het centrum, diverse uitvalswegen en voorzieningen snel en eenvoudig bereikbaar.
Begane grond:
Het complex heeft een centrale entree met brievenbussen, een bellentableau en een trappenhuis. Op de begane grond bevindt zich tevens de privéberging, ideaal voor seizoensspullen en een fiets.
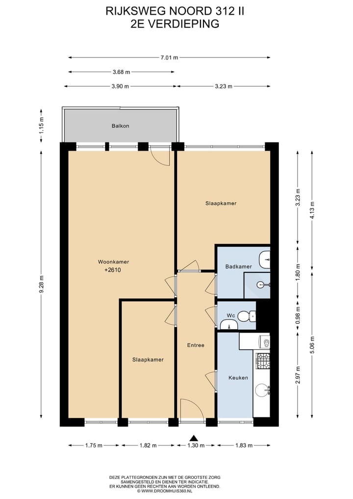
2e Verdieping:
Via de hal voorzien van een laminaatvloer, is de woonkamer, de 2 slaapkamers en separaat toilet met fonteintje bereikbaar.
De woonkamer, eveneens met een laminaatvloer heeft een toegangsdeur naar het balkon met optimale bezonning.
De gesloten keuken van ca. 2.97/ 1.83 heeft een laminaatvloer en is voorzien van een gaskookplaat en afzuigkap.
Tevens bevinden zich hier de aansluitpunten voor witgoed.
Er zijn 2 slaapkamers: ca. 3.30/ 3.23 en ca. 3.97/ 1.83. Beide slaapkamers hebben een laminaatvloer.
De badkamer van ca. 1.80/ 1.83 heeft een douche en een vaste wastafel.
Bijzonderheden:
- Bijdrage VvE: € 180,- per maand, inclusief verwarming, water, schoonmaak, onderhoud en opstalverzekering.
- Grotendeels kunststof kozijnen met dubbele beglazing.
- Voldoende parkeerruimte.
- Autoweg is goed bereikbaar.
Kenmerken
Overdracht
- Aangeboden sinds
- Aanvaarding
- In overleg
- Vraagprijs
- € 175.000 kosten koper
- Vraagprijs per m²
- € 2.692
- Status
- Beschikbaar
- Bijdrage VvE
- € 180,00 per maand
Bouw
- Soort appartement
- Galerijflat (appartement)
- Soort bouw
- Bestaande bouw
- Bouwjaar
- 1965
- Soort dak
- Plat dak
Oppervlakten en inhoud
- Gebruiksoppervlakten
- Wonen
- 65 m²
- Gebouwgebonden buitenruimte
- 5 m²
- Externe bergruimte
- 10 m²
- Inhoud
- 210 m³
Indeling
- Aantal kamers
- 7 kamers (2 slaapkamers)
- Aantal badkamers
- 1 badkamer en 1 apart toilet
- Badkamervoorzieningen
- Douche en wastafel
- Aantal woonlagen
- 1 woonlaag
- Voorzieningen
- Glasvezelkabel
- Gelegen op
- 3e woonlaag
Energie
- Energielabel
- F
- Verwarming
- Blokverwarming
- Warm water
- Elektrische boiler
Buitenruimte
- Ligging
- Aan rustige weg en vrij uitzicht
- Balkon/dakterras
- Balkon aanwezig
Parkeergelegenheid
- Soort parkeergelegenheid
- Openbaar parkeren
VvE checklist
- Inschrijving KvK
- Ja
- Jaarlijkse vergadering
- Ja
- Periodieke bijdrage
- Ja (€ 180,00 per maand)
- Reservefonds aanwezig
- Ja
- Onderhoudsplan
- Ja
- Opstalverzekering
- Ja
Foto's 32
Plattegronden 2
© 2001-2025 funda

































