Dit huis op Funda: https://www.funda.nl/detail/koop/sittard/huis-bremstraat-28/43271030/

Bremstraat 286134 TZ SittardSanderbout
€ 315.000 k.k.
Omschrijving
Smaakvolle 2-onder kap woning met een heerlijke leefkeuken en veel lichtinval.
De royale tuin rondom biedt volop privacy en een zonnige ligging op het zuiden.
Een fijne, stijlvolle plek voor wie ruim en comfortabel wil wonen.
BIJZONDERHEDEN
* Woonoppervlakte: 134 m²
* Overige inpandige ruimte: 39 m²
* Gebouwgebonden buitenruimte: 4 m²
* Perceeloppervlakte: 426 m²
* Inhoud: 627 m³
* Voorzieningen: rolluiken (deels), tv-kabel
* Energielabel: F
* Isolatie: dakisolatie, dubbel glas (deels)
* Verwarming & warm water: Bosch cv-combiketel, huur
* Bouwjaar: 1955
* Ligging: gelegen in een rustige woonomgeving
* Tuin: voortuin en grote zijtuin op het zuiden
* Garage: aangebouwd, met elektra en kantelpoort
* Parkeren: openbaar parkeren + oprit
* Cv ketel (bouwjaar 2015) gehuurd via Hesi, huurprijs €43,35 per maand, overname verplicht voor koper of afkopen
ALGEMEEN
Deze halfvrijstaande woning aan de Bremstraat 28 in Sittard biedt een stijlvolle en comfortabele woonomgeving met opvallend veel ruimte.
De woning is netjes onderhouden, beschikt over kunststof kozijnen met deels enkel en deels dubbel glas en is voorzien van rolluiken op diverse ramen.
Dankzij de royale tuin rondom en de rustige ligging in een woonwijk is dit een ideale plek voor wie ruim, licht en prettig wil wonen.
LIGGING
De woning ligt op korte afstand van dagelijkse voorzieningen.
Scholen, winkels en openbaar vervoer bevinden zich in de directe omgeving.
De uitvalswegen richting Maastricht, Heerlen en Eindhoven zijn goed bereikbaar, waardoor ook forenzen hier comfortabel wonen.
INDELING
KELDER
* Praktische kelderruimte, ideaal als provisiekelder en extra bergruimte.
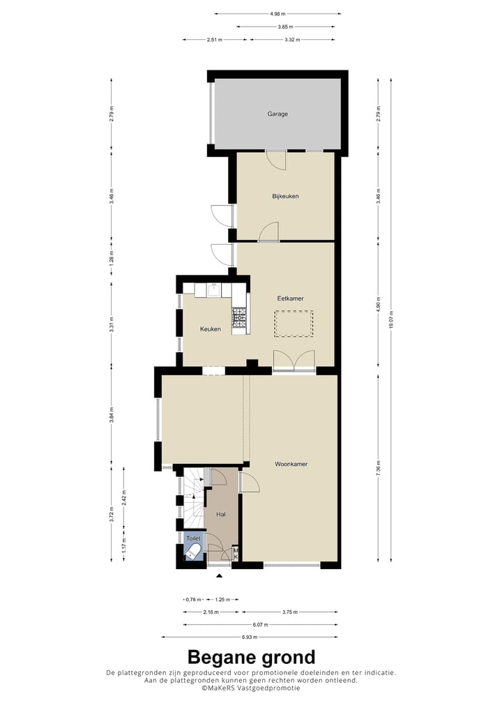
BEGANE GROND
* Entree met laminaatvloer, met toegang tot de trapopgang, toilet en meterkast.
* Ruime en lichte woonkamer met laminaatvloer en prettig uitzicht op de tuin.
* Nette leefkeuken, eveneens voorzien van laminaat, in open verbinding met de woonkamer en uitgerust met een 5-pits gaskookplaat, afzuigkap en oven.
* Praktische bijkeuken met tegelvloer, extra bergruimte en toegang tot de tuin.
* Inpandig bereikbare garage met elektra en kantelpoort.
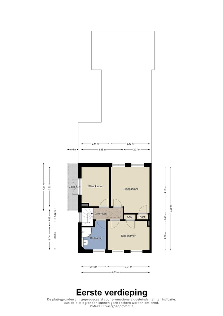
1E VERDIEPING
* Overloop met toegang tot drie slaapkamers, alle voorzien van laminaatvloeren.
* Nette badkamer met douche en wastafel.
* Slaapkamers met prettig licht en zicht op zowel de voor- als achterzijde van de woning.
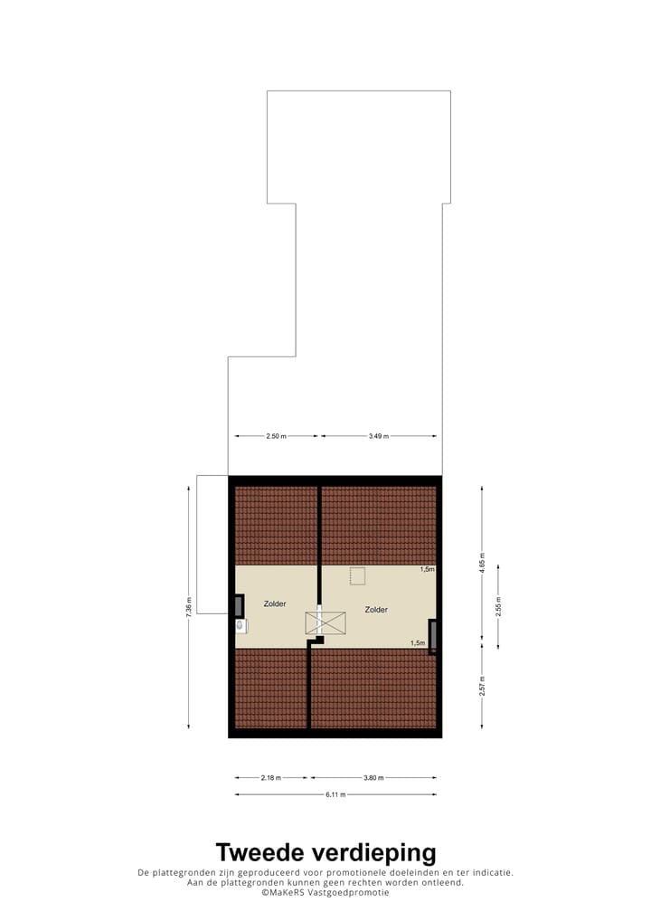
2E VERDIEPING
* Via vaste trap bereikbaar.
* Voorzolder met cv-opstelling (Bosch, huur) en bergruimte.
* Ruime zolderkamer, ideaal als hobbyruimte, werkkamer of extra slaapkamer.
BUITENRUIMTE
* Royale tuin rondom de woning, met een zeer ruime zijtuin en een zonnige ligging op het zuiden.
* Gazon, terras en volop mogelijkheden voor diverse zitplekken.
* Achterom aanwezig.
* Oprit naast de woning voor extra parkeergelegenheid.
GARAGE / BERGING
* Aangebouwde garage, inpandig bereikbaar.
* Voorzien van elektra en een kantelpoort.
* Praktisch als stalling, extra bergruimte of hobbyruimte.
Kortom: Een sfeervolle en ruime halfvrijstaande woning met een nette staat van onderhoud, een royale zonnige tuin en volop mogelijkheden voor comfortabel wonen.
Dankzij de leefkeuken, de drie slaapkamers en de zolderruimte is dit een ideaal huis voor wie stijlvol en rustig wil wonen met veel ruimte binnen én buiten.
Ter bescherming van de belangen van zowel koper als verkoper, wordt uitdrukkelijk gesteld dat een koopovereenkomst met betrekking tot deze onroerende zaak eerst dan tot stand komt nadat koper en verkoper de koopovereenkomst hebben getekend (“schriftelijkheidsvereiste”).
De termijn die wordt opgenomen voor eventuele (overeengekomen) ontbindende voorwaarden (bv. Financiering) is in de regel 4 tot 6 weken na het sluiten van de mondelinge wilsovereenkomst.
De waarborgsom/bankgarantie is 10% van de koopsom. De koper dient deze 2 weken ná het vervallen van de ontbindende voorwaarden bij de desbetreffende notaris te deponeren.
Koper is te allen tijde gerechtigd voor eigen rekening een bouwkundige keuring te (laten) verrichten dan wel andere adviseurs te raadplegen teneinde een goed inzicht te verkrijgen over de staat van onderhoud.
Deze informatie is door ons met de nodige zorgvuldigheid samengesteld. Onzerzijds wordt echter geen enkele aansprakelijkheid aanvaard voor enige onvolledigheid, onjuistheid of anderszins, dan wel de gevolgen daarvan. Alle opgegeven maten en oppervlakten zijn indicatief.
In de koopovereenkomst zal een niet-bewoningsclausule en een ouderdomsclausule worden opgenomen.
Kenmerken
Overdracht
- Aangeboden sinds
- Aanvaarding
- In overleg
- Vraagprijs
- € 315.000 kosten koper
- Vraagprijs per m²
- € 2.351
- Status
- Beschikbaar
Bouw
- Soort woonhuis
- Eengezinswoning, 2-onder-1-kapwoning
- Soort bouw
- Bestaande bouw
- Bouwjaar
- 1955
- Soort dak
- Zadeldak bedekt met pannen
Oppervlakten en inhoud
- Gebruiksoppervlakten
- Wonen
- 134 m²
- Overige inpandige ruimte
- 39 m²
- Gebouwgebonden buitenruimte
- 4 m²
- Perceel
- 426 m²
- Inhoud
- 627 m³
Indeling
- Aantal kamers
- 6 kamers (3 slaapkamers)
- Aantal badkamers
- 1 badkamer en 1 apart toilet
- Badkamervoorzieningen
- Douche en wastafel
- Aantal woonlagen
- 2 woonlagen, een zolder, en een kelder
- Voorzieningen
- Rolluiken en TV kabel
Energie
- Energielabel
- F
- Isolatie
- Dakisolatie en dubbel glas
- Verwarming
- Cv-ketel
- Warm water
- Cv-ketel
- Cv-ketel
- Bosch (gas gestookt combiketel uit 2015, huur)
Kadastrale gegevens
- SITTARD D 5457
- Kadastrale kaart
- Oppervlakte
- 426 m²
- Eigendomssituatie
- Volle eigendom
Buitenruimte
- Ligging
- Aan rustige weg en in woonwijk
- Tuin
- Voortuin en zijtuin
- Zijtuin
- 336 m² (14,00 meter diep en 24,00 meter breed)
- Ligging tuin
- Gelegen op het zuiden
Garage
- Soort garage
- Aangebouwde stenen garage
- Capaciteit
- 1 auto
- Voorzieningen
- Elektra
- Isolatie
- Geen isolatie
Parkeergelegenheid
- Soort parkeergelegenheid
- Openbaar parkeren
Foto's 38
© 2001-2025 funda





































